Maison 87m² à cazaubon

— Cazaubon 32150 —
72 000 €
87 m² / 58 m²
3 pièces
parkingjardin

Maison de ville située dans le c?ur historique du village , pas de gros travaux à prévoir, idéal pour un premier achat ou investissement locatif.

Rendement Brut avec un loyer de 550 E / 8.3%

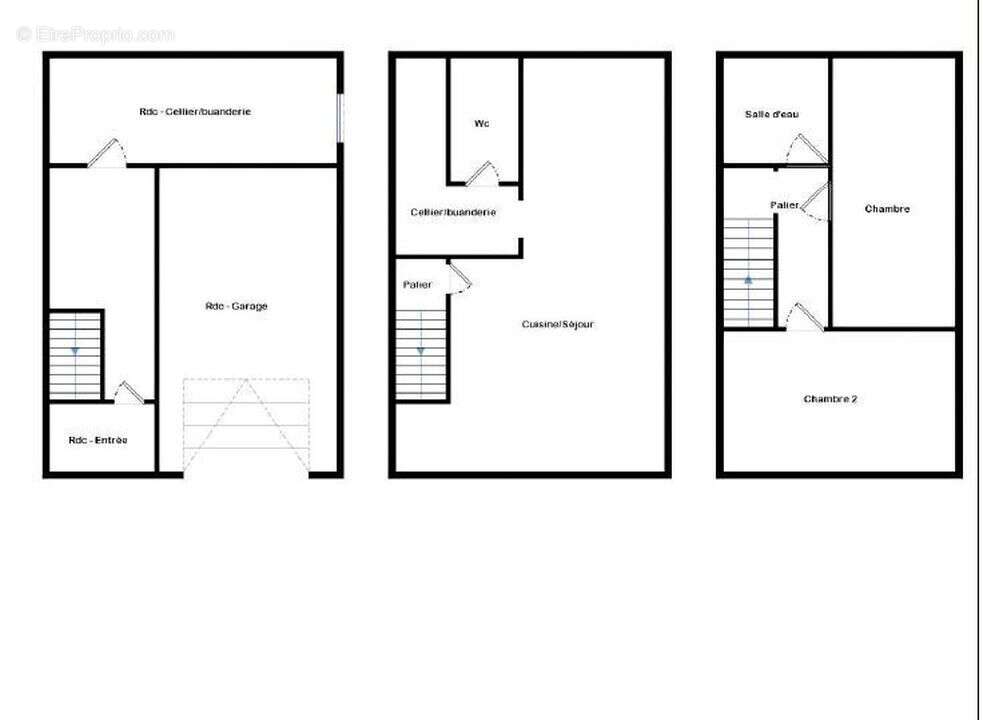
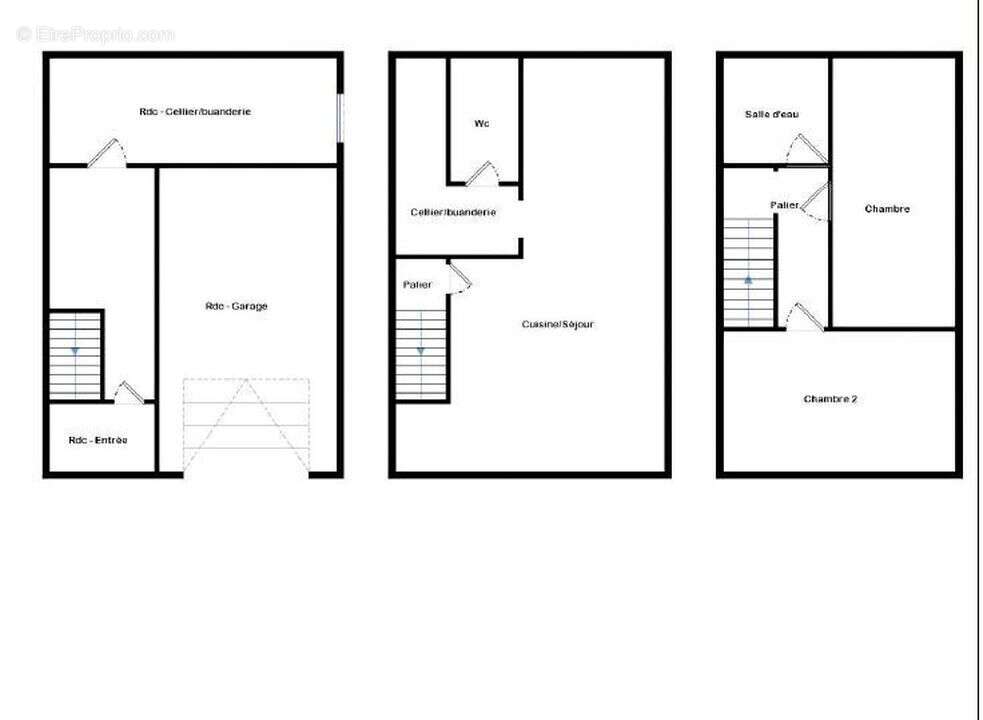
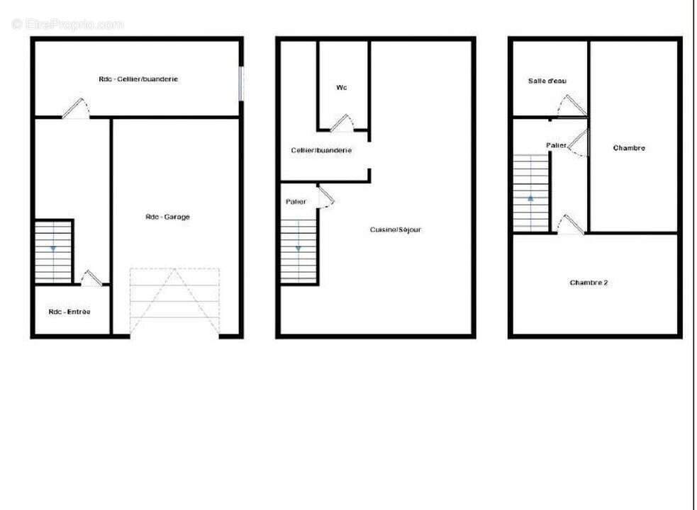
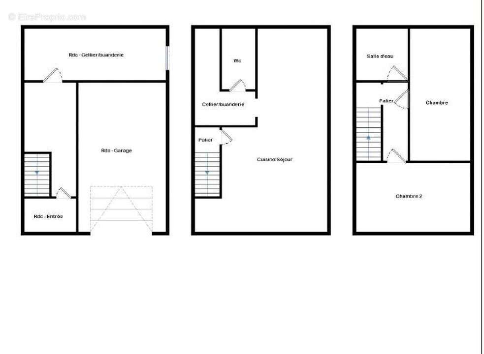
Au rez-de-chaussée, vous trouverez une entrée de 4,99 m² menant à un escalier qui accède à l'espace de vie, ainsi qu'un garage de 19,10 m² avec un accès direct à un cellier de 13,69 m².

Au 1er étage, l'agencement comprend : un palier de 1,19 m², une cuisine ouverte de 7,41 m² non équipée, un salon spacieux de 22,88 m², une buanderie de 2,89 m² et des toilettes séparées.

Le 2ème étage se compose de : une salle d'eau de 3,74 m² avec toilettes, une chambre de 9,50 m² avec dressing, une seconde chambre de 10,99 m², et un dégagement de 2,73 m².



INFORMATIONS DIVERSES:

Double vitrage, tout-à-l'égout, radiateurs électriques, production d'eau chaude par cumulus électrique.

TAXE FONCIERE: 830 E

Les informations sur les risques auxquels ce bien est exposé sont disponibles sur le site Géorisques : www. georisques. gouv. fr.Pour plus d'informations et pour une visite, contactez Hervé DESPLAT : CLAIRIMMO Barbotan - 3 avenue des Thermes 32150 CAZAUBON - Service Transaction : [Coordonnées masquées] Service Location : [Coordonnées masquées] email : [Coordonnées masquées] RCS 851 986 620 Agent commercial indépendant du réseau national Clairimmo N° RSAC : 495 108 755
Voir plus

Référence: 11808DQ612
Honoraires à la charge du vendeur.
DPE
A
B
C
D
E
F
G
GES
A
B
C
D
E
F
G

Prêt immobilier

Vous souhaitez connaître votre capacité d’emprunt et trouver le meilleur crédit immobilier ?
Réaliser une simulation gratuite

#maison #t3 #garage #gers #pascher #cazaubon  - Maison à CAZAUBON
#maison #t3 #garage #gers #pascher #cazaubon
#maison #t3 #garage #gers #pascher #cazaubon  - Maison à CAZAUBON
#maison #t3 #garage #gers #pascher #cazaubon
#maison #t3 #garage #gers #pascher #cazaubon  - Maison à CAZAUBON
#maison #t3 #garage #gers #pascher #cazaubon
#maison #t3 #garage #gers #pascher #cazaubon  - Maison à CAZAUBON
#maison #t3 #garage #gers #pascher #cazaubon
#maison #t3 #garage #gers #pascher #cazaubon  - Maison à CAZAUBON
#maison #t3 #garage #gers #pascher #cazaubon
#maison #t3 #garage #gers #pascher #cazaubon  - Maison à CAZAUBON
#maison #t3 #garage #gers #pascher #cazaubon
#maison #t3 #garage #gers #pascher #cazaubon  - Maison à CAZAUBON
#maison #t3 #garage #gers #pascher #cazaubon
#maison #t3 #garage #gers #pascher #cazaubon  - Maison à CAZAUBON
#maison #t3 #garage #gers #pascher #cazaubon
#maison #t3 #garage #gers #pascher #cazaubon  - Maison à CAZAUBON
#maison #t3 #garage #gers #pascher #cazaubon
#maison #t3 #garage #gers #pascher #cazaubon  - Maison à CAZAUBON
#maison #t3 #garage #gers #pascher #cazaubon
#maison #t3 #garage #gers #pascher #cazaubon  - Maison à CAZAUBON
#maison #t3 #garage #gers #pascher #cazaubon
#maison #t3 #garage #gers #pascher #cazaubon  - Maison à CAZAUBON
#maison #t3 #garage #gers #pascher #cazaubon
#maison #t3 #garage #gers #pascher #cazaubon  - Maison à CAZAUBON
#maison #t3 #garage #gers #pascher #cazaubon
#maison #t3 #garage #gers #pascher #cazaubon  - Maison à CAZAUBON
#maison #t3 #garage #gers #pascher #cazaubon
#maison #t3 #garage #gers #pascher #cazaubon  - Maison à CAZAUBON
#maison #t3 #garage #gers #pascher #cazaubon
#maison #t3 #garage #gers #pascher #cazaubon  - Maison à CAZAUBON
#maison #t3 #garage #gers #pascher #cazaubon
#maison #t3 #garage #gers #pascher #cazaubon  - Maison à CAZAUBON
#maison #t3 #garage #gers #pascher #cazaubon
#maison #t3 #garage #gers #pascher #cazaubon  - Maison à CAZAUBON
#maison #t3 #garage #gers #pascher #cazaubon
#maison #t3 #garage #gers #pascher #cazaubon  - Maison à CAZAUBON
#maison #t3 #garage #gers #pascher #cazaubon
#maison #t3 #garage #gers #pascher #cazaubon  - Maison à CAZAUBON
#maison #t3 #garage #gers #pascher #cazaubon
#maison #t3 #garage #gers #pascher #cazaubon  - Maison à CAZAUBON
#maison #t3 #garage #gers #pascher #cazaubon
#maison #t3 #garage #gers #pascher #cazaubon  - Maison à CAZAUBON
#maison #t3 #garage #gers #pascher #cazaubon
#maison #t3 #garage #gers #pascher #cazaubon  - Maison à CAZAUBON
#maison #t3 #garage #gers #pascher #cazaubon
#maison #t3 #garage #gers #pascher #cazaubon  - Maison à CAZAUBON
#maison #t3 #garage #gers #pascher #cazaubon
#maison #t3 #garage #gers #pascher #cazaubon  - Maison à CAZAUBON
#maison #t3 #garage #gers #pascher #cazaubon
#maison #t3 #garage #gers #pascher #cazaubon  - Maison à CAZAUBON
#maison #t3 #garage #gers #pascher #cazaubon
#maison #t3 #garage #gers #pascher #cazaubon  - Maison à CAZAUBON
#maison #t3 #garage #gers #pascher #cazaubon
#maison #t3 #garage #gers #pascher #cazaubon  - Maison à CAZAUBON
#maison #t3 #garage #gers #pascher #cazaubon
#maison #t3 #garage #gers #pascher #cazaubon  - Maison à CAZAUBON
#maison #t3 #garage #gers #pascher #cazaubon
#maison #t3 #garage #gers #pascher #cazaubon  - Maison à CAZAUBON
#maison #t3 #garage #gers #pascher #cazaubon
#maison #t3 #garage #gers #pascher #cazaubon  - Maison à CAZAUBON
#maison #t3 #garage #gers #pascher #cazaubon
#maison #t3 #garage #gers #pascher #cazaubon  - Maison à CAZAUBON
#maison #t3 #garage #gers #pascher #cazaubon
#maison #t3 #garage #gers #pascher #cazaubon  - Maison à CAZAUBON
#maison #t3 #garage #gers #pascher #cazaubon
#maison #t3 #garage #gers #pascher #cazaubon  - Maison à CAZAUBON
#maison #t3 #garage #gers #pascher #cazaubon
#maison #t3 #garage #gers #pascher #cazaubon  - Maison à CAZAUBON
#maison #t3 #garage #gers #pascher #cazaubon
#maison #t3 #garage #gers #pascher #cazaubon  - Maison à CAZAUBON
#maison #t3 #garage #gers #pascher #cazaubon
Ce site est protégé par reCAPTCHA la Politique de confidentialité et les Conditions d’utilisation de Google s’appliquent.
Obtenir un prêt immobilier au meilleur taux ?

En poursuivant votre navigation sans modifier vos paramètres, vous acceptez l'utilisation de cookies susceptibles de réaliser des statistiques de visite. Cliquez ici pour plus d'informations