Bénéficiez des services de nos partenaires locaux soigneusement sélectionnés
pour vous accompagner dans votre parcours d'achat immobilier

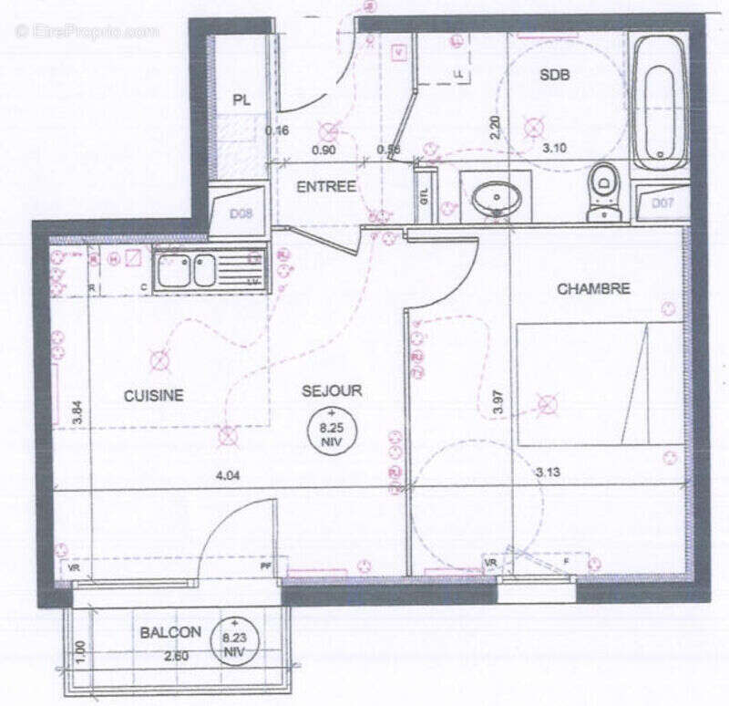
Appartement sucy en brie 2 pièce(s) 39 m2

— Sucy-En-Brie 94370 —
199 000 €
39 m²
2 pièces
balcon/terrasseascenseur

Nos partenaires locaux
SUCY EN BRIE - Secteur Mairie Proche de toutes commodités, Dans un immeuble de Standing récent (2012), En étage élevé avec ascenseur, APPARTEMENT de DEUX pièces comprenant ; Entrée avec placards, Séjour avec BALCON (vue dégagée) Cuisine ouverte sur séjour, Chambre spacieuse, salle de bains avec wc et partie buanderie, PARKING en sous-sol, EN PARFAIT ETAT ! Copropriété de 236 lots - dont 84 lots habitation. (Pas de procédure en cours). Charges annuelles : 1866.96 euros. Saïd SABIR (EI) Agent Commercial - Numéro RSAC : 832 499 073 - Crteil.
Voir plus

Référence: 3011
Bien en copropriété. Nombre de lots : 236. Charges de copropriété : 1866 €.
Honoraires à la charge du vendeur.
Barème des honoraires
DPE
A
B
C
D
E
F
G
GES
A
B
C
D
E
F
G

Prêt immobilier

Vous souhaitez connaître votre capacité d’emprunt et trouver le meilleur crédit immobilier ?
Réaliser une simulation gratuite

Appartement à SUCY-EN-BRIE
Appartement à SUCY-EN-BRIE
Appartement à SUCY-EN-BRIE
Appartement à SUCY-EN-BRIE
Appartement à SUCY-EN-BRIE
Appartement à SUCY-EN-BRIE
Appartement à SUCY-EN-BRIE
Ce site est protégé par reCAPTCHA la Politique de confidentialité et les Conditions d’utilisation de Google s’appliquent.
Obtenir un prêt immobilier au meilleur taux ?

En poursuivant votre navigation sans modifier vos paramètres, vous acceptez l'utilisation de cookies susceptibles de réaliser des statistiques de visite. Cliquez ici pour plus d'informations