Bénéficiez des services de nos partenaires locaux soigneusement sélectionnés
pour vous accompagner dans votre parcours d'achat immobilier

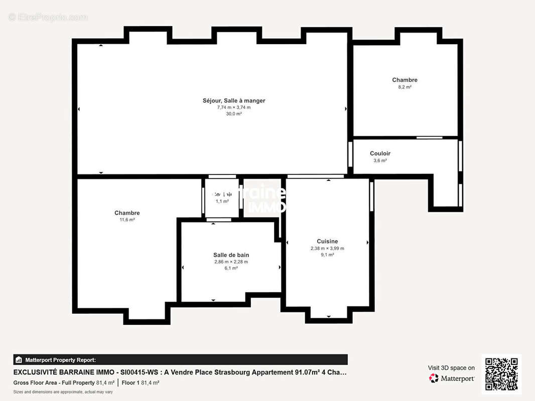
A vendre brest jaures exclusivite appartement t6 4 chambres 91m² colocation meublée

— Brest 29200 —
189 570 €
91 m²
6 pièces

Nos partenaires locaux
EXCLUSIVITÉ - BREST - JAURES. Réf : SI00415-WS A vendre, à proximité de l'arrêt de tramway Place de Strasbourg (ligne A), l'Agence Barraine IMMO Brest - Siam vous présente à BREST (29200), cet appartement T6 de 91.21 m² composé comme suit : un vaste salon/séjour double de 28 m², quatre chambres de 9 m² à 12 m², une cuisine américaine équipée, une salle d'eau et deux toilettes. Cet appartement sera vendu entièrement meublé. Les fenêtres sont en PVC double vitrage et le chauffage est individuel électrique. Vendu loué, il est situé au 3e et dernier étage d'un immeuble du XIXe siècle avec interphone. 19 680 euros charges comprises de revenus locatifs annuel (quand toutes les chambres sont pourvues).16 800 euros hors charges. Il est proposé à l'achat pour 189 570 euros HAI. Le prix net est de 178.000 euros. Honoraires à la charge de l'acquéreur : 6,5% soit 11.570 euros TTC. Le mandat de cet appartement est exclusif. Il s'inscrit au sein d'une petite copropriété sans procédure en cours et avec des charges annuelles de 1326 euros pour ce lot. Cet appartement affiche une classe énergie D qui découle d'une consommation énergétique à hauteur de 225 kWh/m2/an. Quant à la classe climat, elle est également notée D (chiffre annuel : 49 Kg CO2/m²). Les informations sur les risques auxquels ce bien est exposé sont disponibles sur le site Géorisques : www.georisques.gouv.fr. Ce bien est disponible en visite virtuelle. Envie d'en savoir plus sur cet appartement en vente ? Prenez contact avec votre agence immobilière Barraine IMMO Brest - Siam. (6.50 % honoraires TTC à la charge de l'acquéreur.) Copropriété de 5 lots - dont 3 lots habitation. (Pas de procédure en cours). Charges annuelles : 1326.16 euros.
Voir plus

Référence: SI00415-WS
Bien en copropriété. Nombre de lots : 5. Charges de copropriété : 1326 €.
Honoraires d'agence de 6.5% à la charge de l'acquéreur
Barème des honoraires
DPE
A
B
C
D
E
F
G
GES
A
B
C
D
E
F
G

Prêt immobilier

Vous souhaitez connaître votre capacité d’emprunt et trouver le meilleur crédit immobilier ?
Réaliser une simulation gratuite

Appartement à BREST
Appartement à BREST
Appartement à BREST
Appartement à BREST
Appartement à BREST
Appartement à BREST
Appartement à BREST
Appartement à BREST
Appartement à BREST
Appartement à BREST
Appartement à BREST
Appartement à BREST
Appartement à BREST
Appartement à BREST
Appartement à BREST
Appartement à BREST
Ce site est protégé par reCAPTCHA la Politique de confidentialité et les Conditions d’utilisation de Google s’appliquent.
Obtenir un prêt immobilier au meilleur taux ?

En poursuivant votre navigation sans modifier vos paramètres, vous acceptez l'utilisation de cookies susceptibles de réaliser des statistiques de visite. Cliquez ici pour plus d'informations