Bénéficiez des services de nos partenaires locaux soigneusement sélectionnés
pour vous accompagner dans votre parcours d'achat immobilier

Appartement sur quai, ascenseur, terrasse

— Sete 34200 —
894 000 €
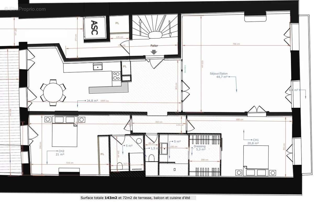
139 m²
3 pièces
parkingbalcon/terrasseascenseur

Nos partenaires locaux
Bienvenue dans cet élégant appartement situé sur un quai prisé, entre le cur animé du centre-ville et le quartier dynamique de la gare de Sète. Niché au sein d'un immeuble entièrement rénové avec un ascenseur, cet appartement de 139 m² habitable a été entièrement repensé avec des matériaux de qualité, offrant une ambiance raffinée et contemporaine. Les larges fenêtres inondent les espaces de lumière naturelle et offrent une vue imprenable sur les canaux pittoresques de Sète.Cet appartement se compose dune suite parentale, une chambre spacieuse et d'un espace de vie ouvert, idéal pour recevoir ou se détendre en famille. Pour couronner le tout, une terrasse de 65 m² invite à profiter de douces soirées d'été. son prix : 894 000 Bien soumis au statut juridique de la Copropriété. Nb de lots : 4. Charges annuelles de copropriété (Montant moyen annuel quote-part du budget prévisionnel vendeur) : 1 560 . Pas de procédure en cours. Prix TTC et Honoraires à charge vendeur. Contacter MARIANNE IMMOBILIER [Coordonnées masquées] (réf. 344176353)
Voir plus

Référence: 344176353_2
DPE
A
B
C
D
E
F
G
GES
A
B
C
D
E
F
G

Prêt immobilier

Vous souhaitez connaître votre capacité d’emprunt et trouver le meilleur crédit immobilier ?
Réaliser une simulation gratuite

Appartement à SETE
Appartement à SETE
Appartement à SETE
Appartement à SETE
Appartement à SETE
Appartement à SETE
Appartement à SETE
Appartement à SETE
Appartement à SETE
Ce site est protégé par reCAPTCHA la Politique de confidentialité et les Conditions d’utilisation de Google s’appliquent.
Obtenir un prêt immobilier au meilleur taux ?

En poursuivant votre navigation sans modifier vos paramètres, vous acceptez l'utilisation de cookies susceptibles de réaliser des statistiques de visite. Cliquez ici pour plus d'informations