Vente d'une maison de ville f4 (94 m²) à suresnes

— Suresnes 92150 —
680 000 €
101 m²
4 pièces
balcon/terrasse

Trianon Immobilier vous propose à la vente cet appartement de ville, Atypique style "Loft" de101 m2, à Suresnes limite Puteaux.

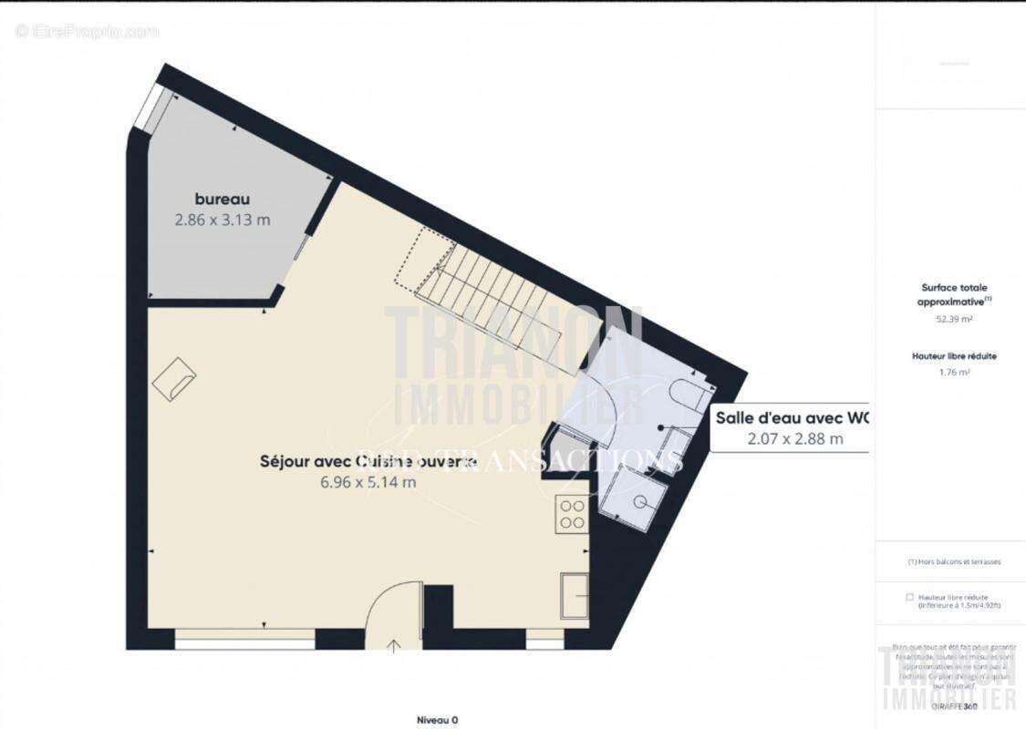
5 Pièces / 3 chambres pour une surface carrez de 94 m2.
Quartier Carnot Gambetta, située dans le bas de Suresnes, proche rue Bas Rogers , à proximité de la station Tramway Belvédére.
Ce charmant appartement de ville style loft industriel (pas lié à une copropropriété), lumineux, bénéficie d'une terrasse en hauteur avec vue ciel et se situe sur deux niveaux (rez de chaussée -1er étage).
Aves son design moderne et ses finitions soignées, il allie charme et fonctionnalité.

Au rez de chaussée, vous serez séduit par un salon / salle à manger spacieux de 33 m2, baignés de lumière grâce à ses grandes fenêtres double vitrage.
La cuisine américaine, fonctionnelle, est équipée d'une cuisine en bon état, parfaite pour accueillir autour d'une table jusqu'à cinq personnes.
Une buanderie sur mesure, offrant de nombreux rangements, ainsi qu'une salle d'eau / douche et WC, complète cet étage.
Un bel escalier en béton ciré, mène à l'étage.

L'étage supérieur, dispose de 3 chambres modulables, lumineuses grâce à une verrière qui traverse tout l'étage et de nombreux rangements.
Une salle de bains avec double vasque, baignoire ainsi qu'un WC séparé, assurent le confort familial.
Une terrasse de 8m2, sans vis à vis et entourée de grandes baies vitrées, offre un extérieur agréable.

Atouts et caractéristiques /
Grand appartement récent construit en 2011, sans charges de copropriété.
Chauffage électrique et poêle à bois.
Hauteur sous plafond : de 2,80m à 3,50m.
Sols en parquet massif au premier étage.

Points forts de ce bien de ville /
Façade bien entretenue.
Aucun espace mansardé, optimisant l'utilisation des volumes.
A proximité des commerces, des transports et écoles.
Porte blindée pour une sécurité optimale.
Possibilité de louer une place de parking extérieur collé à la maison.

DPE D / B
Charges / 2430€ à l'année
Taxe foncière / 1245€
Expo/ Sud- Est
Bien présenté par Fabienne HALIMI
Pour plus d'informations ou visiter, contactez moi !

[Coordonnées masquées]
[Coordonnées masquées]
Instagram : fabienne.liwer.immobilier
RSAC/ 904399334 EI Nanterre
Les informations sur les risques auxquels ce bien est exposé sont disponibles sur le site Géorisques : www.georisques.gouv.fr.
Voir plus

Référence: TRIANON2638
DPE
A
B
C
D
E
F
G
GES
A
B
C
D
E
F
G

Prêt immobilier

Vous souhaitez connaître votre capacité d’emprunt et trouver le meilleur crédit immobilier ?
Réaliser une simulation gratuite

Maison à SURESNES
Maison à SURESNES
Maison à SURESNES
Maison à SURESNES
Maison à SURESNES
Maison à SURESNES
Maison à SURESNES
Maison à SURESNES
Maison à SURESNES
Maison à SURESNES
Maison à SURESNES
Maison à SURESNES
Maison à SURESNES
Maison à SURESNES
Maison à SURESNES
Maison à SURESNES
Ce site est protégé par reCAPTCHA la Politique de confidentialité et les Conditions d’utilisation de Google s’appliquent.
Obtenir un prêt immobilier au meilleur taux ?

En poursuivant votre navigation sans modifier vos paramètres, vous acceptez l'utilisation de cookies susceptibles de réaliser des statistiques de visite. Cliquez ici pour plus d'informations