Maison 86m² à villeneuve-les-maguelone

— Villeneuve-Les-Maguelone 34750 —
209 000 €
86 m²
4 pièces

Iad France - Adrien Navarro vous propose : Villeuneuve-les-Maguelone, maison de village !

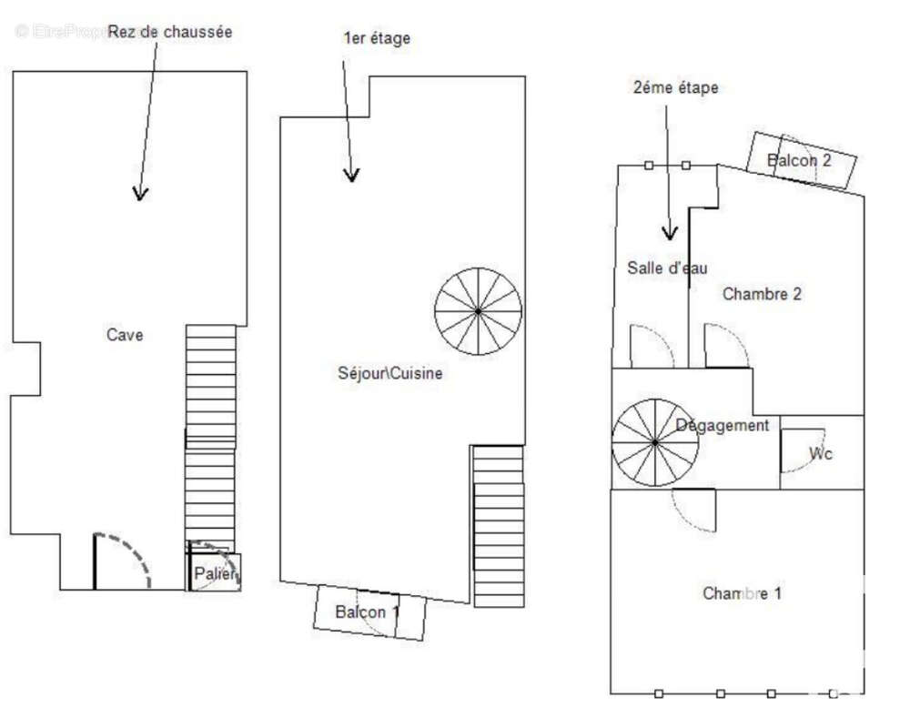
Au coeur du village, à proximité des commerces, des écoles et de la mer, retrouvez cette jolie maison de village de 86 m² sur 3 étages.

En rez-de-chaussée, une grande pièce de 26 m² avec point d'eau et évacuation avec accès indépendant sur l'extérieur. Idéal pour créer un espace indépendant, logement pour de la location, espace professionnel.

Au 1er étage, la pièce de vie de près de 29 m² avec balcon de ville, cuisine et salon avec coin cheminée.

Et enfin au 2ème étage, une grande chambre de presque 14 m² puis une seconde de 9,36 m² donnant sur un balcon de ville ainsi qu'un WC indépendant et une salle d'eau.

La maison est actuellement louée avec un bail courant jusqu'an janvier 2026.


Honoraires d'agence à la charge du vendeur.
Information d'affichage énergétique sur ce bien : classe ENERGIE D indice 181 et classe CLIMAT A indice 5. Les informations sur les risques auxquels ce bien est exposé, y compris l'obligation légale de débroussaillement, sont disponibles sur le site Géorisques : http://www.georisques.gouv.fr.
La présente annonce immobilière a été rédigée sous la responsabilité éditoriale de M Adrien Navarro mandataire indépendant en immobilier (sans détention de fonds), agent commercial de la SAS I@D France immatriculé au RSAC de MONTPELLIER sous le numéro 927590950, titulaire de la carte de démarchage immobilier pour le compte de la société I@D France SAS.
Informations LOI ALUR :
Honoraires charge vendeur. (gedeon_6727_31962096)
Voir plus

Référence: 1839293
Honoraires à la charge du vendeur.
DPE
A
B
C
D
E
F
G
GES
A
B
C
D
E
F
G

Prêt immobilier

Vous souhaitez connaître votre capacité d’emprunt et trouver le meilleur crédit immobilier ?
Réaliser une simulation gratuite

Photo 1 - Maison à VILLENEUVE-LES-MAGUELONE
Photo 1
Photo 2 - Maison à VILLENEUVE-LES-MAGUELONE
Photo 2
Photo 3 - Maison à VILLENEUVE-LES-MAGUELONE
Photo 3
Photo 4 - Maison à VILLENEUVE-LES-MAGUELONE
Photo 4
Photo 5 - Maison à VILLENEUVE-LES-MAGUELONE
Photo 5
Photo 6 - Maison à VILLENEUVE-LES-MAGUELONE
Photo 6
Photo 7 - Maison à VILLENEUVE-LES-MAGUELONE
Photo 7
Ce site est protégé par reCAPTCHA la Politique de confidentialité et les Conditions d’utilisation de Google s’appliquent.
Obtenir un prêt immobilier au meilleur taux ?

En poursuivant votre navigation sans modifier vos paramètres, vous acceptez l'utilisation de cookies susceptibles de réaliser des statistiques de visite. Cliquez ici pour plus d'informations