Bénéficiez des services de nos partenaires locaux soigneusement sélectionnés
pour vous accompagner dans votre parcours d'achat immobilier

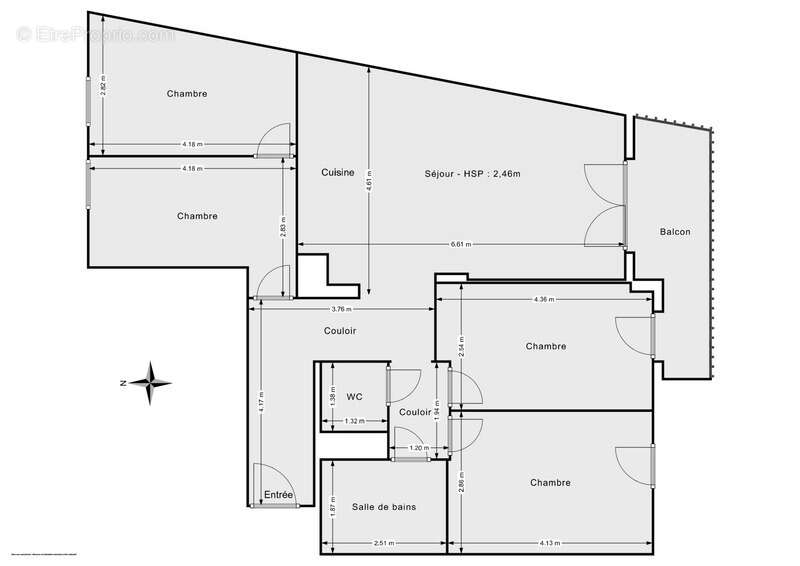
- 95100 argenteuil - square du prunet - immeuble de 2015 - 3eme etage avec ascenseur - balcon plein sud - traversant - parking -

— Argenteuil 95100 —
258 000 €
90 m²
5 pièces
parkingbalcon/terrasseascenseur

Nos partenaires locaux
Optimhome vous présente cet appartement familial de 5 pièces de 85m2 loi carrez idéalement localisé au 3ème étage avec ascenseur d'une résidence récente de 2015.

L'appartement se compose d'une entrée ouvrant sur la belle pièce de vie avec balcon (4m2, vue dégagée et arborée sur le Square du Prunet) et sa cuisine ouverte aménagée et équipée. Exposé plein SUD.
La partie nuit se compose de 4 chambres dont une avec accès balcon, une salle de bains (avec branchement machine) et un wc séparé.
Plan modulable en 2, 3 ou 4 chambres. Logement PMR. Professions libérales acceptées. Bon état. Luminosité grâce à la double exposition.
Deux places de parking en enfilade est disponible en SUS du prix dans le sous-sol de la résidence.

Contactez moi pour plus d'informations ou pour organiser une visite ! Nombre de lots de la copropriété: 47, Montant moyen de la quote-part annuelle de charges (budget prévisionnel) : 3500€ soit 291€ par mois. Les honoraires d'agence sont à la charge de l'acquéreur, soit 4,45% TTC du prix hors honoraires.
Le Diagnostic de Performance Énergétique(DPE) a été réalisé selon une méthode valable mais non fiable et non-opposable.
Les informations sur les risques auxquels ce bien est exposé sont disponibles sur le site Géorisques : www. georisques. gouv. fr.

Contactez David TOUATI Entrepreneur Individuel, Agent commercial OptimHome (RSAC N°805 013 869 Greffe de NANTERRE) [Coordonnées masquées] (réf. 593838 )
Voir plus

Référence: 830034332372
Bien en copropriété. Nombre de lots : 47. Charges de copropriété : 291 €.
DPE
A
B
C
D
E
F
G
GES
A
B
C
D
E
F
G

Prêt immobilier

Vous souhaitez connaître votre capacité d’emprunt et trouver le meilleur crédit immobilier ?
Réaliser une simulation gratuite

Appartement à ARGENTEUIL
Appartement à ARGENTEUIL
Appartement à ARGENTEUIL
Appartement à ARGENTEUIL
Appartement à ARGENTEUIL
Appartement à ARGENTEUIL
Appartement à ARGENTEUIL
Appartement à ARGENTEUIL
Appartement à ARGENTEUIL
Appartement à ARGENTEUIL
Appartement à ARGENTEUIL
Ce site est protégé par reCAPTCHA la Politique de confidentialité et les Conditions d’utilisation de Google s’appliquent.
Obtenir un prêt immobilier au meilleur taux ?

En poursuivant votre navigation sans modifier vos paramètres, vous acceptez l'utilisation de cookies susceptibles de réaliser des statistiques de visite. Cliquez ici pour plus d'informations