Bénéficiez des services de nos partenaires locaux soigneusement sélectionnés
pour vous accompagner dans votre parcours d'achat immobilier

Appartement 131m² à saint-cloud

— Saint-Cloud 92210 —
789 000 €
131 m²
5 pièces
parkingbalcon/terrasseascenseur

Nos partenaires locaux
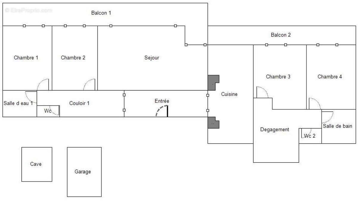
Saint-Cloud (92), au coeur du quartier très recherché du Val d'Or, à proximité immédiate des commerces, des écoles et des transports (transilien ligne L et tramway T2), au 5ème étage d'un immeuble de standing, sécurisé avec ascenseurs et gardien, bel appartement familial de 5 pièces avec une vue exceptionnelle et panoramique sur l'hippodrome de Saint-Cloud.

Ce bien lumineux de 131 m² se compose d'une large entrée, d'un double séjour ouvert sur un grand balcon exposé ouest faisant pleine face à l'hippodrome, d'une cuisine dinatoire équipée et aménagée avec coin buanderie, de 4 belles chambres toutes ouvertes sur balcon, d'une salle de bains, d'une salle d'eau et de deux WC séparés.

Prestations de qualité qui assurent bien-être, sécurité et un niveau de confort supérieur.
En annexes, une cave et une place de stationnement en sous-sol complètent ce bien.
Nous vous informons que conformément à l'article L.561-5 du Code Monétaire et Financier, une pièce d'identité vous sera demandée avant chaque visite.
Voir plus

Référence: 9487-PRAEDIUM92
Bien en copropriété. Nombre de lots : 289.
Honoraires à la charge du vendeur.
Barème des honoraires
DPE
A
B
C
D
E
F
G
GES
A
B
C
D
E
F
G

Prêt immobilier

Vous souhaitez connaître votre capacité d’emprunt et trouver le meilleur crédit immobilier ?
Réaliser une simulation gratuite

Appartement à SAINT-CLOUD
Appartement à SAINT-CLOUD
Appartement à SAINT-CLOUD
Appartement à SAINT-CLOUD
Appartement à SAINT-CLOUD
Appartement à SAINT-CLOUD
Appartement à SAINT-CLOUD
Appartement à SAINT-CLOUD
Appartement à SAINT-CLOUD
Ce site est protégé par reCAPTCHA la Politique de confidentialité et les Conditions d’utilisation de Google s’appliquent.
Obtenir un prêt immobilier au meilleur taux ?

En poursuivant votre navigation sans modifier vos paramètres, vous acceptez l'utilisation de cookies susceptibles de réaliser des statistiques de visite. Cliquez ici pour plus d'informations