Bénéficiez des services de nos partenaires locaux soigneusement sélectionnés
pour vous accompagner dans votre parcours d'achat immobilier

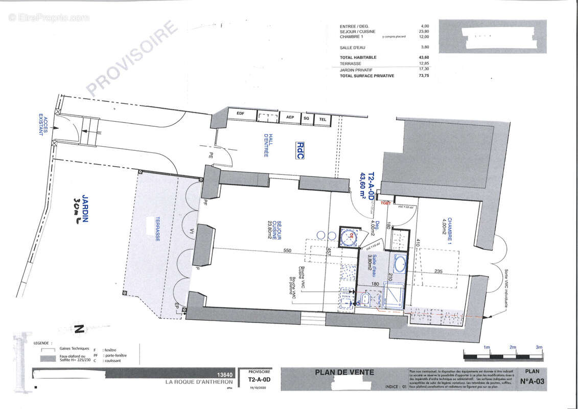
Appartement coup de coeur t2 av jardin

— La Roque-D'antheron 13640 —
176 000 €
44 m²
2 pièces
balcon/terrasse

Nos partenaires locaux
L'agence NATIS Provence Immobilier vous propose à l'achat, en exclusivité, au centre du village, un appartement T2 de 44 m2, avec jardin de 30 m2 sans vis à vis, totalement rénové en 2022, et très bien situé. L'appartement se compose d'une entrée avec dégagement, une chambre, une salle d'eau et wc, un séjour cuisine ouverte lumineux et spacieux, donnant sur la terrasse orientée sud ; les meubles peuvent être inclus dans la vente.
Les informations sur les risques auxquels ce bien est exposé sont disponibles sur le site Géorisques : www.georisques.gouv.fr
Contact Laurence Christophe ayant le statut Agent commercial RSAC 503284333 _Salon de Provence. Tel [Coordonnées masquées]
Voir plus

Référence: 830
Bien en copropriété. Nombre de lots : 8. Charges de copropriété : 248 €.
Honoraires à la charge du vendeur.
Barème des honoraires
DPE
A
B
C
D
E
F
G
GES
A
B
C
D
E
F
G

Prêt immobilier

Vous souhaitez connaître votre capacité d’emprunt et trouver le meilleur crédit immobilier ?
Réaliser une simulation gratuite

Appartement à LA ROQUE-D'ANTHERON
Appartement à LA ROQUE-D'ANTHERON
Appartement à LA ROQUE-D'ANTHERON
Appartement à LA ROQUE-D'ANTHERON
Appartement à LA ROQUE-D'ANTHERON
Appartement à LA ROQUE-D'ANTHERON
Appartement à LA ROQUE-D'ANTHERON
Appartement à LA ROQUE-D'ANTHERON
Appartement à LA ROQUE-D'ANTHERON
Appartement à LA ROQUE-D'ANTHERON
Appartement à LA ROQUE-D'ANTHERON
Appartement à LA ROQUE-D'ANTHERON
Appartement à LA ROQUE-D'ANTHERON
Ce site est protégé par reCAPTCHA la Politique de confidentialité et les Conditions d’utilisation de Google s’appliquent.
Obtenir un prêt immobilier au meilleur taux ?

En poursuivant votre navigation sans modifier vos paramètres, vous acceptez l'utilisation de cookies susceptibles de réaliser des statistiques de visite. Cliquez ici pour plus d'informations