Vente d'une maison f4 (82,7 m2 carrez) à juvignac

— Juvignac 34990 —
275 000 €
85 m²
4 pièces
parkingbalcon/terrasse

PROCHE DE MONTPELLIER
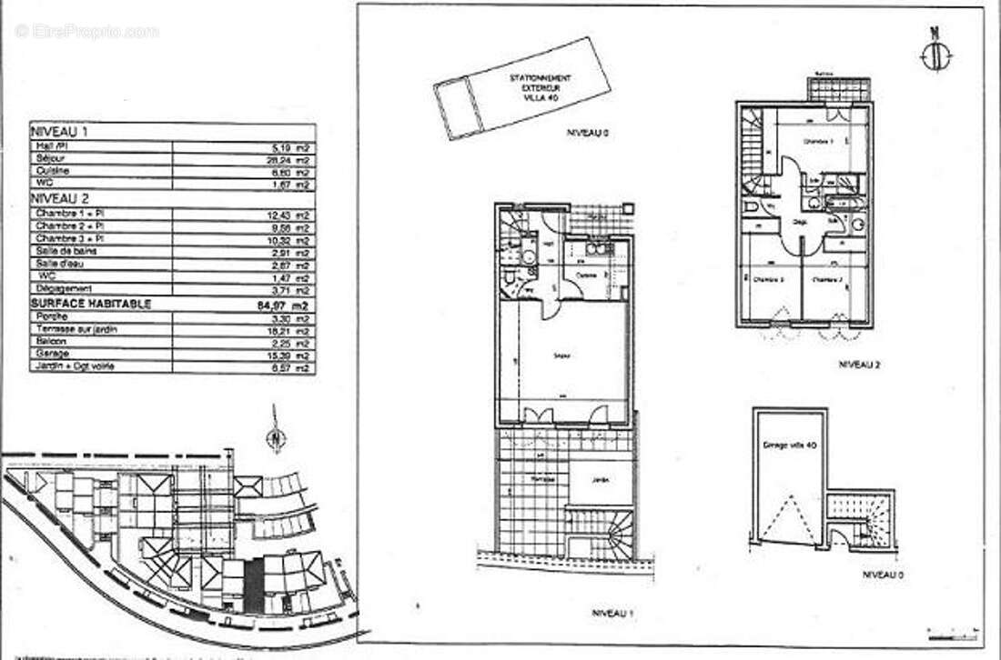
À vendre : découvrez cette maison de 4 pièces de 84,97m2 Carrez à JUVIGNAC (34990). Elle s'agence comme suite : au rez-de-chaussée vous trouverez le garage. Au niveau supérieur, vous accèderez à la cuisine séparée, un wc indépendant, ainsi qu'un grand séjour d'environ 30m2 exposé sud donc très lumineux et qui donne accès à la terrasse et au jardin sans vis-à-vis. À l'étage supérieur, vous accèderez à trois chambres, chacune avec placard, dont une suite parentale avec son balcon privatif et sa salle d'eau, ainsi qu'une salle de bain et un second wc. 
Pour votre véhicule, une place de parking privative est prévue en plus du garage. Plusieurs écoles (maternelle, élémentaire et collège) sont implantées à moins de 10 minutes à pied. Niveau transports, il y a les bus 19 et 25 ainsi que la ligne de tramway 1 (Halles de la Paillade) à proximité. Les autoroutes A750 et A709 et la nationale N109 sont accessibles à moins de 8 km. On trouve des restaurants, des commerces, des boulangeries, un supermarché, des boucheries et des épiceries dans les environs. 
Retrouvez les informations ERP de la commune de ce bien sur : https://www.france-erp.com/etat-des-risques-et-pollutions-par-ville
Envie d'en savoir plus sur cette maison à vendre ? Prenez contact avec votre agence AGN Immobilier MONTPELLIER par téléphone au [Coordonnées masquées] ou par mail [Coordonnées masquées]
N'hésitez pas à aller voir nos autres biens en vente sur notre site internet https://www.agn-immobilier.net/
Voir plus

Référence: 8039.8040
Bien en copropriété. Charges de copropriété : 180 €.
Honoraires d'agence de 3.77% à la charge de l'acquéreur
Barème des honoraires
DPE
A
B
C
D
E
F
G
GES
A
B
C
D
E
F
G

Prêt immobilier

Vous souhaitez connaître votre capacité d’emprunt et trouver le meilleur crédit immobilier ?
Réaliser une simulation gratuite

Maison à JUVIGNAC
Maison à JUVIGNAC
Maison à JUVIGNAC
Maison à JUVIGNAC
Maison à JUVIGNAC
Maison à JUVIGNAC
Maison à JUVIGNAC
Maison à JUVIGNAC
Maison à JUVIGNAC
Maison à JUVIGNAC
Ce site est protégé par reCAPTCHA la Politique de confidentialité et les Conditions d’utilisation de Google s’appliquent.
Obtenir un prêt immobilier au meilleur taux ?

En poursuivant votre navigation sans modifier vos paramètres, vous acceptez l'utilisation de cookies susceptibles de réaliser des statistiques de visite. Cliquez ici pour plus d'informations