Bénéficiez des services de nos partenaires locaux soigneusement sélectionnés
pour vous accompagner dans votre parcours d'achat immobilier

Maison à réhabiliter

— Fontainebleau 77300 —
262 500 €
102 m²

Nos partenaires locaux
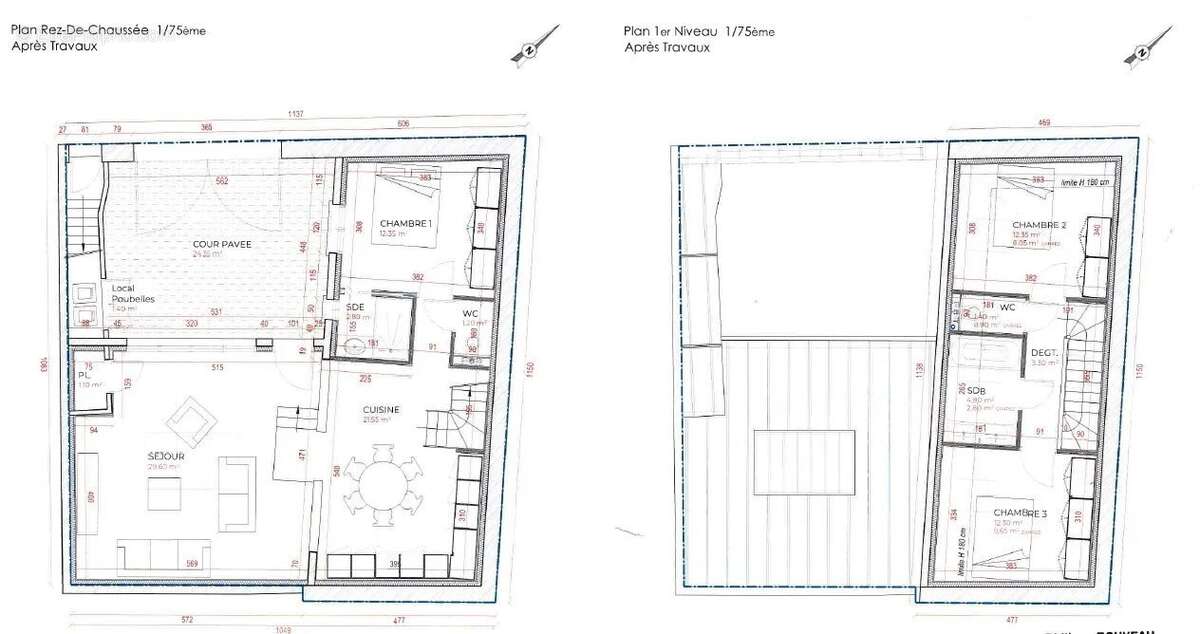
Rare opportunité en plein cœur de Fontainebleau :

Une parcelle de 119 m², ancien hangar à réhabiliter avec permis de construire déjà accordé pour une maison individuelle de 102 m².

Le projet prévoit : trois chambres, un vaste séjour avec salle à manger, une cuisine fonctionnelle et une agréable cour de 24 m².

Un emplacement privilégié pour concrétiser votre projet immobilier au centre-ville ! 250,000 € Honoraires d'agence non inclus - Honoraires agence: 5%TTC Honoraires à la charge de l'acquéreur - Les informations sur les risques auxquels ce bien est exposé sont disponibles sur le site Géorisques : www.georisques.gouv.fr - Arnaud RICHARD - Agent commercial - EI - RSAC MELUN 419 509 856
Voir plus

Référence: 86266502
Honoraires d'agence de 5% à la charge de l'acquéreur

Prêt immobilier

Vous souhaitez connaître votre capacité d’emprunt et trouver le meilleur crédit immobilier ?
Réaliser une simulation gratuite

Maison à FONTAINEBLEAU
Maison à FONTAINEBLEAU
Maison à FONTAINEBLEAU
Maison à FONTAINEBLEAU
Maison à FONTAINEBLEAU
Maison à FONTAINEBLEAU
Maison à FONTAINEBLEAU
Maison à FONTAINEBLEAU
Maison à FONTAINEBLEAU
Maison à FONTAINEBLEAU
Maison à FONTAINEBLEAU
Ce site est protégé par reCAPTCHA la Politique de confidentialité et les Conditions d’utilisation de Google s’appliquent.
Obtenir un prêt immobilier au meilleur taux ?

En poursuivant votre navigation sans modifier vos paramètres, vous acceptez l'utilisation de cookies susceptibles de réaliser des statistiques de visite. Cliquez ici pour plus d'informations