Vente appartement t2 _ alfortville

— Alfortville 94140 —
150 000 €
42 m²
2 pièces

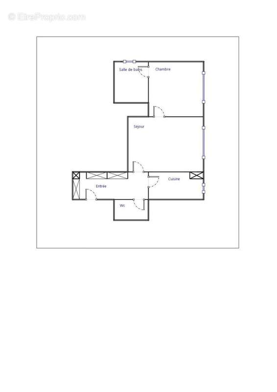
À seulement 10 minutes à pied du RER D – Station Maisons-Alfort – Alfortville, dans une résidence calme et bien entretenue proche du centre-ville, découvrez ce bel appartement T2 de 41,56m², situé au 5e étage avec ascenseur.

Les atouts du bien :

Un séjour lumineux offrant une belle vue dégagée, parfait pour vos moments de détente.

Une chambre confortable avec placards intégrés.

Cuisine séparée et fonctionnelle, à aménager selon vos envies.

Salle de bains + WC séparés pour plus de confort.

Un dégagement avec rangements optimisés.

Une cave en sous-sol, idéale pour stocker vos effets personnels.

Un cadre de vie agréable :

À proximité immédiate des bords de Seine, parfaits pour vos balades ou activités sportives
Commodités, commerces, restaurants à quelques minutes à pied
Accès rapide aux transports en commun (RER D, bus) pour rejoindre Paris en toute simplicité

Idéal pour un premier achat, un investissement locatif ou un pied-à-terre proche de Paris !

Ne tardez pas, ce bien rare sur le secteur n'attendra pas ! Contactez-nous au [Coordonnées masquées].

Quote-part mensuelle des charges courantes prévisionnelles 2025 : 221 €/mois soit 2 652 €/an
Estimation de la taxe foncière 2025 : 1 300 €
DPE : E (265)
Chauffage : Collectif Gaz

Honoraires à la charge du vendeur et Frais de notaire à la charge de l'acquéreur.

MODALITES DE VISITES ET DE REMISE DES OFFRES D’ACHAT Visites sur rendez-vous, renseignements et dépôt des candidatures avec dossier complet.

Conformément à l'article l.561-5 du code monétaire et financier, la copie de la pièce d'identité de tous les visiteurs sera demandée avant la visite. Nous vous remercions de faciliter cette démarche à votre conseiller.

Conformément à l’article R123-237 du code de commerce :

Trans’Actif Immobilier SAS

24 rue de Paradis-75 010 PARIS

N°SIRET 514 367 978 00046 - RCS Paris

Conformément à l’article 94 du décret n°72-678 du 20 juillet 1972 « l’agence ne doit recevoir ni détenir d’autres fonds, effets ou valeurs que ceux représentatifs de sa rémunération ou de ses honoraires ».

Modalités de remise des offres : Par mail, remise en mains propres ou par tout autre moyen.

Les informations sur les risques auxquels ce bien est exposé sont disponibles sur le site Géorisques : www.georisques.gouv.fr
Voir plus

Référence: 5130A1162 - AM
DPE
A
B
C
D
E
F
G
GES
A
B
C
D
E
F
G

Prêt immobilier

Vous souhaitez connaître votre capacité d’emprunt et trouver le meilleur crédit immobilier ?
Réaliser une simulation gratuite

Appartement à ALFORTVILLE
Appartement à ALFORTVILLE
Appartement à ALFORTVILLE
Appartement à ALFORTVILLE
Appartement à ALFORTVILLE
Appartement à ALFORTVILLE
Appartement à ALFORTVILLE
Ce site est protégé par reCAPTCHA la Politique de confidentialité et les Conditions d’utilisation de Google s’appliquent.
Obtenir un prêt immobilier au meilleur taux ?

En poursuivant votre navigation sans modifier vos paramètres, vous acceptez l'utilisation de cookies susceptibles de réaliser des statistiques de visite. Cliquez ici pour plus d'informations