Vente appartement t3 _ alfortville

— Alfortville 94140 —
175 000 €
57 m²
3 pièces

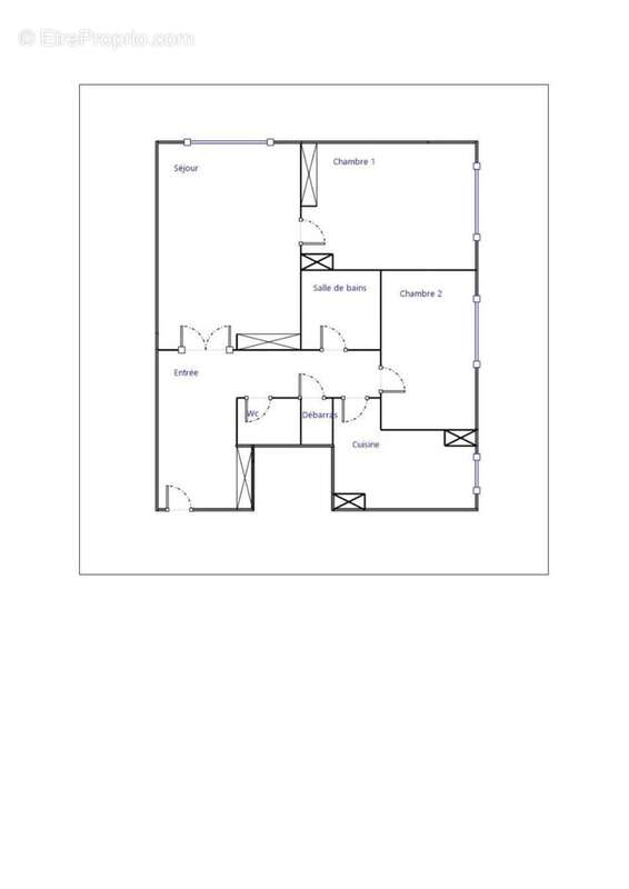
Dans une résidence bien entretenue avec ascenseur proche du centre-ville, à 10 minutes à pied du RER D – Station Maisons-Alfort – Alfortville, venez découvrir ce beau 3 pièces de 57,31 m², situé au 12e étage, offrant une vue dégagée sans vis-à-vis et une luminosité exceptionnelle tout au long de la journée.

Les + de ce bien :

Lumineux, profitez d’une lumière naturelle dans chaque pièce

Séjour spacieux avec grande baie vitrée et vue dégagée

Deux chambres confortables, idéales pour un couple, une famille ou un bureau à domicile

Cuisine indépendante, à personnaliser selon vos goûts

Salle de bains fonctionnelle + WC séparés

Nombreux rangements intégrés pour un espace optimisé

Cave en sous-sol, pour plus de praticité


Un cadre de vie recherché :

À deux pas des bords de Seine pour vos promenades et activités de plein air
Proximité immédiate des commerces, écoles, restaurants et transports
Accès rapide à Paris via le RER D, parfait pour les actifs ou étudiants

Un bien rare avec une vue imprenable, sans vis-à-vis – idéal pour y vivre ou investir sereinement aux portes de Paris.

Contactez-nous dès maintenant pour organiser une visite au [Coordonnées masquées] !

Quote-part mensuelle des charges courantes prévisionnelles 2025 : 310 €/mois soit 3 720 €/an
Estimation de la taxe foncière 2025 : 1 550 €
DPE : E (239)
Chauffage : Collectif Gaz

Honoraires à la charge du vendeur et Frais de notaire à la charge de l'acquéreur.

MODALITES DE VISITES ET DE REMISE DES OFFRES D’ACHAT Visites sur rendez-vous, renseignements et dépôt des candidatures avec dossier complet.

Conformément à l'article l.561-5 du code monétaire et financier, la copie de la pièce d'identité de tous les visiteurs sera demandée avant la visite. Nous vous remercions de faciliter cette démarche à votre conseiller.

Conformément à l’article R123-237 du code de commerce :

Trans’Actif Immobilier SAS

24 rue de Paradis-75 010 PARIS

N°SIRET 514 367 978 00046 - RCS Paris

Conformément à l’article 94 du décret n°72-678 du 20 juillet 1972 « l’agence ne doit recevoir ni détenir d’autres fonds, effets ou valeurs que ceux représentatifs de sa rémunération ou de ses honoraires ».

Modalités de remise des offres : Par mail, remise en mains propres ou par tout autre moyen.

Les informations sur les risques auxquels ce bien est exposé sont disponibles sur le site Géorisques : www.georisques.gouv.fr
Voir plus

Référence: 5130A1169 - AM
DPE
A
B
C
D
E
F
G
GES
A
B
C
D
E
F
G

Prêt immobilier

Vous souhaitez connaître votre capacité d’emprunt et trouver le meilleur crédit immobilier ?
Réaliser une simulation gratuite

Appartement à ALFORTVILLE
Appartement à ALFORTVILLE
Appartement à ALFORTVILLE
Appartement à ALFORTVILLE
Appartement à ALFORTVILLE
Appartement à ALFORTVILLE
Appartement à ALFORTVILLE
Appartement à ALFORTVILLE
Ce site est protégé par reCAPTCHA la Politique de confidentialité et les Conditions d’utilisation de Google s’appliquent.
Obtenir un prêt immobilier au meilleur taux ?

En poursuivant votre navigation sans modifier vos paramètres, vous acceptez l'utilisation de cookies susceptibles de réaliser des statistiques de visite. Cliquez ici pour plus d'informations