Bénéficiez des services de nos partenaires locaux soigneusement sélectionnés
pour vous accompagner dans votre parcours d'achat immobilier

A vendre-appartement 2 pieces avec grand jardin privatif a cabourg

— Cabourg 14390 —
381 000 €
43 m² / 218 m²
2 pièces
parkingbalcon/terrassejardin

Nos partenaires locaux
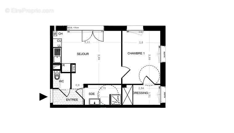
Venez découvrir cet appartement de 2 pièces de 47,79m2 en rez-de-chaussée avec un jardin privatif de 218m2 et d’une terrasse de 10,50m2.

Le bien se compose d’une pièce de vie lumineuse ouverte sur la cuisine de 19m2 avec accès sur la terrasse de 10,50m2 et jardin de 218m2.
D’une chambre de 11,30m2 avec son dressing de 4,23m2.
Une salle d’eau de 4,09m2.
Un Wc séparé de 1,57m2.


La résidence est situé à 60 mètres de la plage, face à la mer ! les écoles sont à seulement 8 minutes en voiture, l’arrêt de bus 111A est accessible en 7 minutes à pied, et vous rejoignez les commerces en moins de 10 minutes à pied.
La livraison est prévue pour le 30 septembre 2026.
La résidence est raccordée à la fibre optique et bénéficie d’un chauffage par pompe à chaleur pour un confort optimal et des économies d’énergie.

Une Visite virtuelle est disponible — n’hésitez pas à nous contacter pour plus d’informations !

Offre exceptionnelle jusqu’au 30/11 : 10 000 € de remise + cave offerte !

Prix :381 000€
Voir plus

Référence: 86342191

Prêt immobilier

Vous souhaitez connaître votre capacité d’emprunt et trouver le meilleur crédit immobilier ?
Réaliser une simulation gratuite

Appartement à CABOURG
Appartement à CABOURG
Appartement à CABOURG
Appartement à CABOURG
Appartement à CABOURG
Appartement à CABOURG
Appartement à CABOURG
Appartement à CABOURG
Appartement à CABOURG
Ce site est protégé par reCAPTCHA la Politique de confidentialité et les Conditions d’utilisation de Google s’appliquent.
Obtenir un prêt immobilier au meilleur taux ?

En poursuivant votre navigation sans modifier vos paramètres, vous acceptez l'utilisation de cookies susceptibles de réaliser des statistiques de visite. Cliquez ici pour plus d'informations