Bénéficiez des services de nos partenaires locaux soigneusement sélectionnés
pour vous accompagner dans votre parcours d'achat immobilier

Appartement 40m² à colomiers

— Colomiers 31770 —
119 350 €
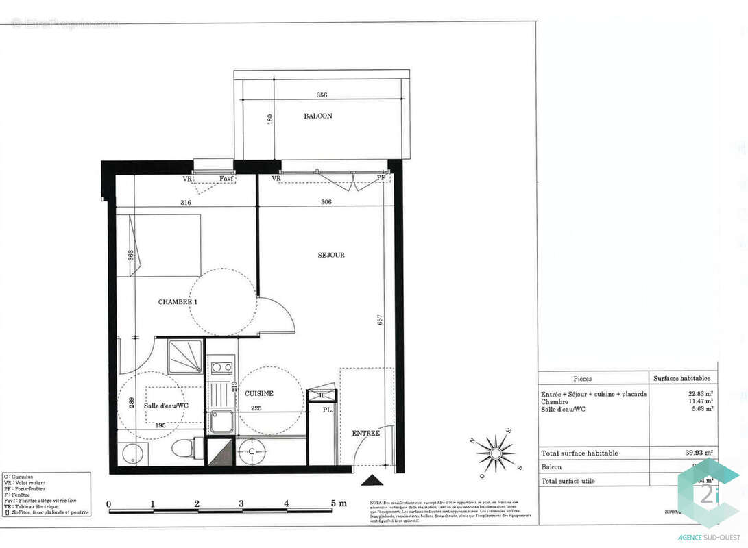
40 m²
2 pièces
parkingbalcon/terrasseascenseur

Nos partenaires locaux
** Colomiers 31770 **T2 loué

Idéal investissement locatif, cet appartement deux pièces de 39,93 m² se situe au 2 ième et dernier étage d'une résidence bien entretenue avec ascenseur.Il se compose d'une entrée avec séjour et cuisine ouverte, d'une chambre avec rangement, ainsi que d'une salle d'eau avec WC. Un balcon de 6,41 m² complète l'ensemble, ainsi qu'une place de stationnement extérieure privative.

Le bien est vendu occupé, avec un bail en cours depuis septembre 2023.
Environnement calme, à proximité des commodités et des transports.
Une opportunité clé en main pour un placement locatif sécurisé.

Éléments financiers:
Loyer : 585,94€ hors charges + 49€ de provisions sur charges du locataire /mois
Charges de copropriété : 70€ /mois
Taxe foncière : 872€ dont 106€ de TOM
Les honoraires sont à la charge du vendeur.

Pour plus d'informations, contactez-nous !

Honoraires à la charge du vendeur. Dans une copropriété de 169 lots. Aucune procédure n'est en cours. Classe énergie C, Classe climat A Montant moyen estimé des dépenses annuelles d'énergie pour un usage standard, établi à partir des prix de l'énergie de l'année 2021 : entre 411.00 et 557.00 €. Les informations sur les risques auxquels ce bien est exposé sont disponibles sur le site Géorisques : georisques.gouv.fr.
Voir plus

Référence: VA3201-C2ISUDOUEST2
Bien en copropriété. Nombre de lots : 169.
Honoraires à la charge du vendeur.
Barème des honoraires
DPE
A
B
C
D
E
F
G
GES
A
B
C
D
E
F
G

Prêt immobilier

Vous souhaitez connaître votre capacité d’emprunt et trouver le meilleur crédit immobilier ?
Réaliser une simulation gratuite

Appartement à COLOMIERS
Appartement à COLOMIERS
Appartement à COLOMIERS
Appartement à COLOMIERS
Appartement à COLOMIERS
Appartement à COLOMIERS
Ce site est protégé par reCAPTCHA la Politique de confidentialité et les Conditions d’utilisation de Google s’appliquent.
Obtenir un prêt immobilier au meilleur taux ?

En poursuivant votre navigation sans modifier vos paramètres, vous acceptez l'utilisation de cookies susceptibles de réaliser des statistiques de visite. Cliquez ici pour plus d'informations