Bénéficiez des services de nos partenaires locaux soigneusement sélectionnés
pour vous accompagner dans votre parcours d'achat immobilier

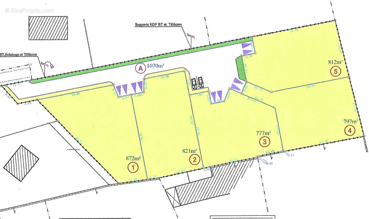
Terrain 821m² à maine-de-boixe

— Maine-De-Boixe 16230 —
25 167 €
821 m²

Nos partenaires locaux
Iad France - Elisa Roquet vous propose : Situé sur la commune de Fontclaireau, un terrain de 821 m² environ s'offre à vous ! Viabilisé, il vous propose une surface constructible au sol de 287 m² environ. D'autres lots sont disponibles. Contactez moi pour plus d'informations!

Honoraires d'agence à la charge du vendeur.
Bien non soumis au DPE. Les informations sur les risques auxquels ce bien est exposé, y compris l'obligation légale de débroussaillement, sont disponibles sur le site Géorisques : http://www.georisques.gouv.fr.
La présente annonce immobilière a été rédigée sous la responsabilité éditoriale de Mme Elisa Roquet mandataire indépendant en immobilier (sans détention de fonds), agent commercial de la SAS I@D France immatriculé au RSAC de NIORT sous le numéro 842412017, titulaire de la carte de démarchage immobilier pour le compte de la société I@D France SAS.
Informations LOI ALUR :
Honoraires charge vendeur. (gedeon_6727_29984210)
Voir plus

Référence: 1621002
Honoraires à la charge du vendeur.

Prêt immobilier

Vous souhaitez connaître votre capacité d’emprunt et trouver le meilleur crédit immobilier ?
Réaliser une simulation gratuite

Photo 1 - Terrain à MAINE-DE-BOIXE
Photo 1
Photo 2 - Terrain à MAINE-DE-BOIXE
Photo 2
Photo 3 - Terrain à MAINE-DE-BOIXE
Photo 3
Ce site est protégé par reCAPTCHA la Politique de confidentialité et les Conditions d’utilisation de Google s’appliquent.
Obtenir un prêt immobilier au meilleur taux ?

En poursuivant votre navigation sans modifier vos paramètres, vous acceptez l'utilisation de cookies susceptibles de réaliser des statistiques de visite. Cliquez ici pour plus d'informations