Bénéficiez des services de nos partenaires locaux soigneusement sélectionnés
pour vous accompagner dans votre parcours d'achat immobilier

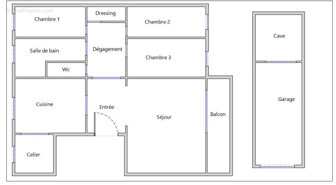
T4 - debourg - garage inclu

— Lyon-7e 69007 —
315 000 €
79 m²
4 pièces
parkingascenseur

Nos partenaires locaux
A deux pas du métro Debourg, rue Jean Vallier, découvrez cet appartement de 78,8 m², situé au 5èmeétage avec ascenseur d'une copropriété bien entretenue avec jardin commun. L'appartement se compose d'un séjour traversant Est/Ouest donnant accès à un balcon de 3,7 m², d'une cuisine indépendante aménagée et équipée, de trois chambres, d'un cellier, d'une salle de bains, de WC séparés et d'un dressing. Grâce à sa configuration et à sa situation, ce bien conviendra parfaitement à une famille en quête de calme, de confort et de luminosité, à seulement 5 minutes à pied du métro Debourg. Un garage en sous-sol et une cave complètent ce bien. Copropriété de 63 lots - dont 63 lots habitation. (Pas de procédure en cours). Charges annuelles : 1800 euros.
Voir plus

Référence: CR2403
Bien en copropriété. Nombre de lots : 63. Charges de copropriété : 1800 €.
Honoraires à la charge du vendeur.
Barème des honoraires
DPE
A
B
C
D
E
F
G
GES
A
B
C
D
E
F
G

Prêt immobilier

Vous souhaitez connaître votre capacité d’emprunt et trouver le meilleur crédit immobilier ?
Réaliser une simulation gratuite

Appartement à LYON-7E
Appartement à LYON-7E
Appartement à LYON-7E
Appartement à LYON-7E
Appartement à LYON-7E
Appartement à LYON-7E
Appartement à LYON-7E
Appartement à LYON-7E
Appartement à LYON-7E
Appartement à LYON-7E
Appartement à LYON-7E
Appartement à LYON-7E
Appartement à LYON-7E
Appartement à LYON-7E
Appartement à LYON-7E
Appartement à LYON-7E
Ce site est protégé par reCAPTCHA la Politique de confidentialité et les Conditions d’utilisation de Google s’appliquent.
Obtenir un prêt immobilier au meilleur taux ?

En poursuivant votre navigation sans modifier vos paramètres, vous acceptez l'utilisation de cookies susceptibles de réaliser des statistiques de visite. Cliquez ici pour plus d'informations