Maison de village à réhabiliter à thiaucourt

— Thiaucourt-Regnieville 54470 —
66 000 €
130 m² / 360 m²
5 pièces
jardin

Au cœur de Thiaucourt, à proximité immédiate des écoles et des commerces, se dévoile une maison de village de près de 160 m² habitables répartis sur deux niveaux, avec jardin privatif à l'arrière. Un bien idéal pour les acquéreurs en quête d'un projet de rénovation complète ou d'un investissement immobilier à fort potentiel.

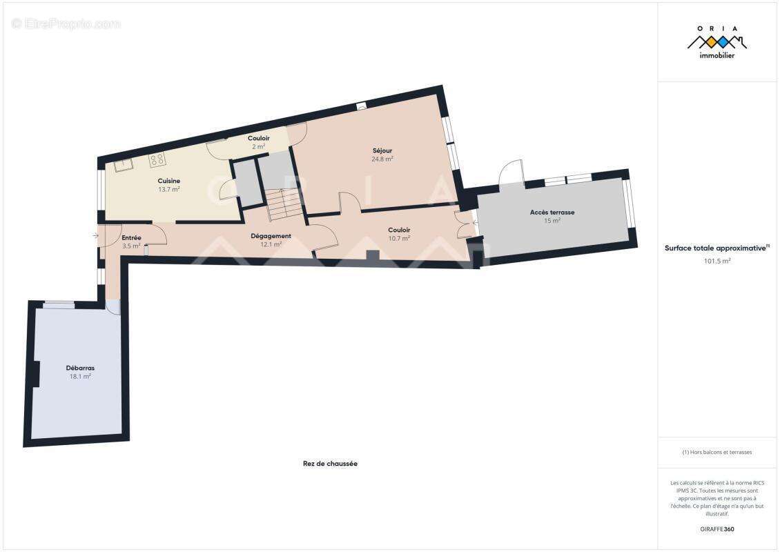
Le rez-de-chaussée s'articule autour d'un séjour lumineux de 25 m², d'une cuisine indépendante de 14 m² et d'un dégagement qui facilite la circulation et l'aménagement. Un atelier de 18 m² complète ce niveau et pourra servir d'espace de stockage ou être transformé selon vos besoins.

À l'étage, deux grandes chambres de plus de 20 m² chacune, une salle de bains de 12 m² et un vaste palier offrent des espaces confortables et modulables. Les combles, accessibles et dotés d'une belle hauteur sous plafond, constituent un atout majeur : ils permettent d'imaginer une extension de l'habitation ou la création de plusieurs logements dans le cadre d'un projet locatif.

À l'arrière, le jardin intime et agréable vient parfaire ce bien. Facile à aménager, il se prête aussi bien à la création d'une terrasse conviviale qu'à l'installation d'un potager ou d'un espace de détente.

La maison n'est pas habitable en l'état et nécessite une réhabilitation complète : électricité, isolation, chauffage, remplacement des menuiseries et finitions intérieures. La toiture, en revanche, est correcte et constitue une base solide pour entamer les travaux.

Thiaucourt séduit par son cadre de vie pratique et agréable. Le village bénéficie de commerces de proximité, d'écoles et de services essentiels. Sa situation centrale permet de rejoindre rapidement Metz, Pont-à-Mousson ou Toul, tout en profitant de la sérénité d'un environnement verdoyant.

Avec ses volumes généreux, ses combles aménageables, son jardin et sa localisation privilégiée au cœur du village, cette maison représente une belle opportunité, que ce soit pour un projet familial ambitieux ou pour un investissement immobilier à valoriser.

Les informations sur les risques auxquels ce bien est exposé sont disponibles sur le site Géorisques : www.georisques.gouv.fr

La présente annonce immobilière est présentée par Jimmy MARQUET EI – Numéro RSAC : NANCY 442051884, agent commercial de la SARL ORIA Immobilier.
Voir plus

Référence: 5722677

Prêt immobilier

Vous souhaitez connaître votre capacité d’emprunt et trouver le meilleur crédit immobilier ?
Réaliser une simulation gratuite

Maison à THIAUCOURT-REGNIEVILLE
Maison à THIAUCOURT-REGNIEVILLE
Maison à THIAUCOURT-REGNIEVILLE
Maison à THIAUCOURT-REGNIEVILLE
Maison à THIAUCOURT-REGNIEVILLE
Maison à THIAUCOURT-REGNIEVILLE
Maison à THIAUCOURT-REGNIEVILLE
Maison à THIAUCOURT-REGNIEVILLE
Maison à THIAUCOURT-REGNIEVILLE
Maison à THIAUCOURT-REGNIEVILLE
Maison à THIAUCOURT-REGNIEVILLE
Maison à THIAUCOURT-REGNIEVILLE
Maison à THIAUCOURT-REGNIEVILLE
Maison à THIAUCOURT-REGNIEVILLE
Maison à THIAUCOURT-REGNIEVILLE
Maison à THIAUCOURT-REGNIEVILLE
Maison à THIAUCOURT-REGNIEVILLE
Maison à THIAUCOURT-REGNIEVILLE
Maison à THIAUCOURT-REGNIEVILLE
Ce site est protégé par reCAPTCHA la Politique de confidentialité et les Conditions d’utilisation de Google s’appliquent.
Obtenir un prêt immobilier au meilleur taux ?

En poursuivant votre navigation sans modifier vos paramètres, vous acceptez l'utilisation de cookies susceptibles de réaliser des statistiques de visite. Cliquez ici pour plus d'informations