Spacieuse maison d'artisan à terminer

— Survilliers 95470 —
345 000 €
168 m² / 388 m²
8 pièces

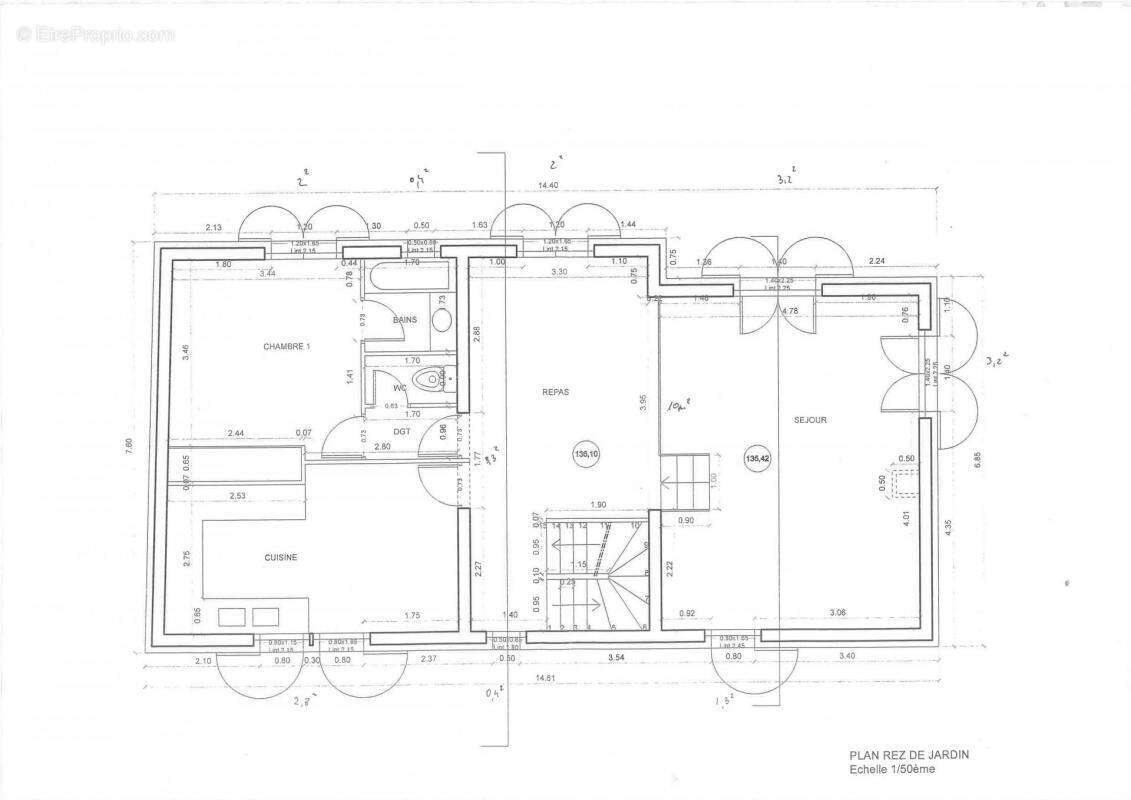
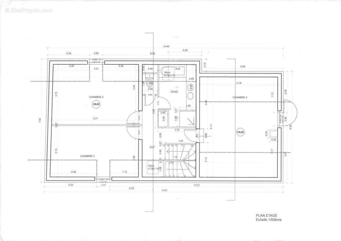
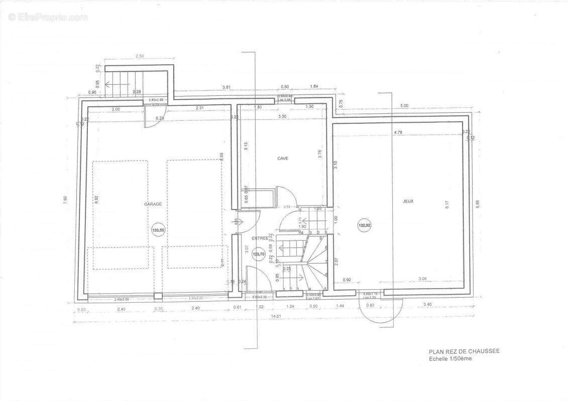
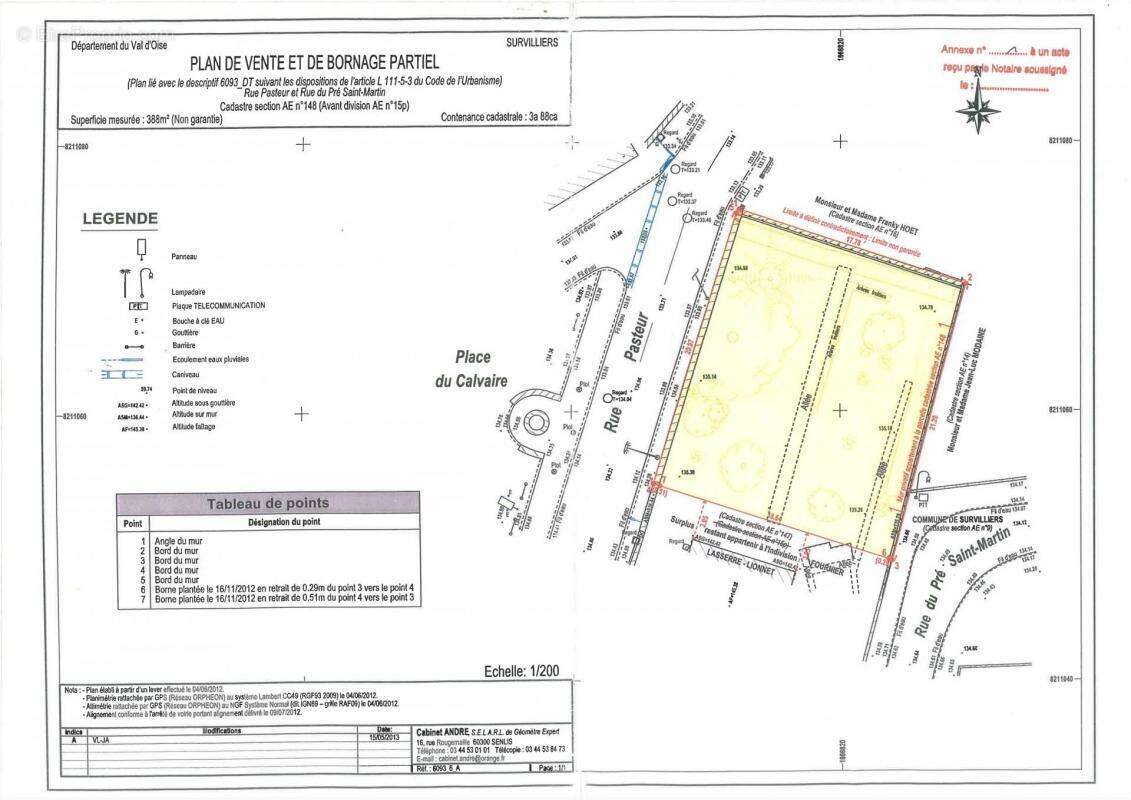
Située au cœur d'un quartier pavillonnaire de Survilliers (Val d'Oise), cette spacieuse maison de 168 m² habitables n'attend plus que d'être terminée à votre goût pour vous y accueillir.Vendue avant son achèvement définitif pour des raisons personnelles, tout le gros œuvre est terminé ainsi que la toiture en tuiles plates (17x27) et les menuiseries en double vitrage bois.Érigée sur un terrain de 388 m², cette maison familiale en devenir dispose d'un rez-de-chaussée comprenant un double garage, une cave et une salle de jeux, un rez-de-jardin offrant un séjour, une salle à manger, cuisine, WC et une chambre avec sa salle de bains et un premier étage avec 3 autres chambres, salle de bains et WC.CETTE MAISON PEUT ÊTRE SCINDÉE EN 2 MAISONS MITOYENNES AUTONOMES.Survilliers est une commune reconnue pour son environnement vert, sa tranquillité et l'âme de village préservée, appréciée des familles et de ceux recherchant un cadre paisible tout en étant proche de Paris et de Roissy.Les informations sur les risques auxquels ce bien est exposé sont disponibles sur le site Géorisques : www.georisques.gouv.fr
Voir plus

Référence: A5996

Prêt immobilier

Vous souhaitez connaître votre capacité d’emprunt et trouver le meilleur crédit immobilier ?
Réaliser une simulation gratuite

Maison à SURVILLIERS
Maison à SURVILLIERS
Maison à SURVILLIERS
Maison à SURVILLIERS
Maison à SURVILLIERS
Maison à SURVILLIERS
Ce site est protégé par reCAPTCHA la Politique de confidentialité et les Conditions d’utilisation de Google s’appliquent.
Obtenir un prêt immobilier au meilleur taux ?

En poursuivant votre navigation sans modifier vos paramètres, vous acceptez l'utilisation de cookies susceptibles de réaliser des statistiques de visite. Cliquez ici pour plus d'informations