Bénéficiez des services de nos partenaires locaux soigneusement sélectionnés
pour vous accompagner dans votre parcours d'achat immobilier

3%.COM - Exclusivité GRIESHEIM-sur-SOUFFEL, Maison de 125m2

— Griesheim-Sur-Souffel 67370 —
399 900 €
125 m² / 538 m²
5 pièces
parkingbalcon/terrassejardin

Nos partenaires locaux
!! VENDU !!
3%.COM - En Exclusivité à GRIESHEIM-sur-SOUFFEL (rue Paul Verlaine), Maison individuelle de 1979 de 125m2 hab/138m2 au sol, le tout sur un terrain de 5,38 ares ---

-- Lumineuse, située très au calme, idéale pour famille.

--- Vous recherchez une maison fonctionnelle, très bien entretenue avec la qualité de vie d'un village situé proche de l'eurometropole, alors n'hésitez pas et venez visiter cette maison.

--- Prévoir rafraîchissement ---

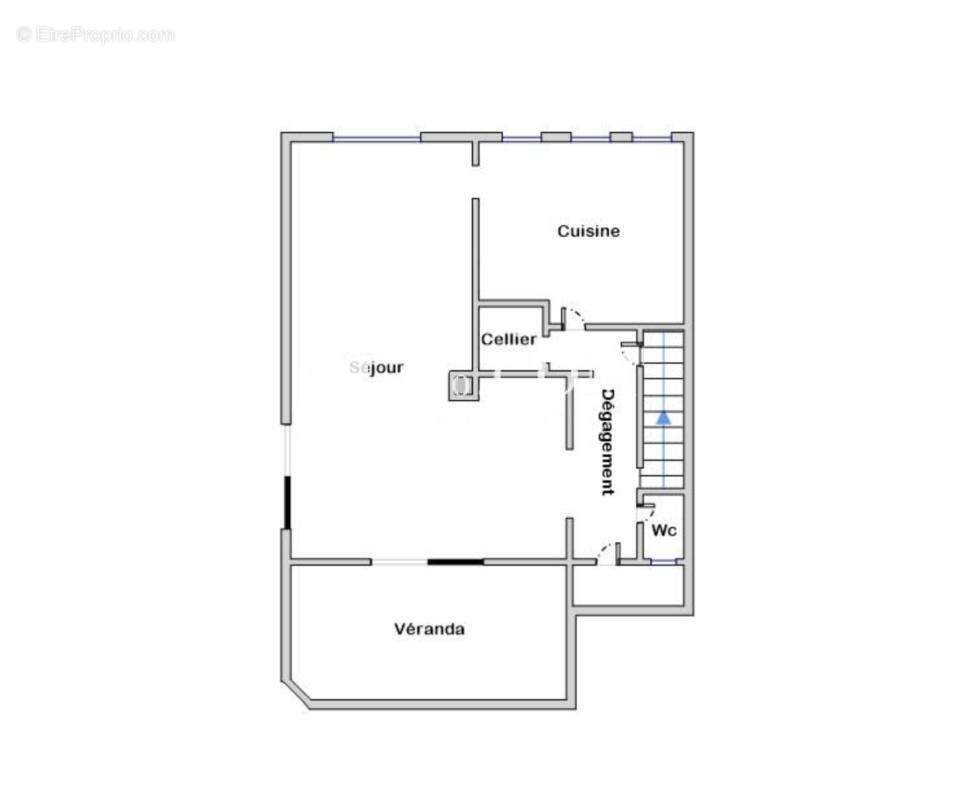
--- Au rez-de-chaussée:
-- 1 Sas.
-- 1 entrée.
-- 1 espace salon/séjour de 41m2 avec accès véranda.
-- 1 véranda (17m2) équipée de stores électriques et d'un double accès au jardin.
-- 1 cuisine équipée (13,5m2).
-- 1 cellier.
-- 1 wc séparé.

--- À l'étage:
-- 1 dégagement (7m2).
-- 1 wc séparé.
-- 1 chambre (13m2) équipée d'un espace dressing.
-- 1 chambre (10,5m2 sol/8m2 hab).
-- 1 chambre (11m2 sol/8m2 hab).
-- 1 salle d'eau (douche, double vasque).

-- 1 comble.

-- Au sous/sol :
-- 1 dégagement.
-- 1 pièce buanderie.
-- 1 pièce de rangement.
-- 1 grand garage double en enfilade avec un espace atelier/rangement.

-- À l'Extérieur:
-- 1 terrasse (côté Est) équipée d'un store.
-- 1 jardin arboré et agrémenté d'un petit bassin à poissons

--- Divers:
-- Proche de toutes commodités (pharmacie, boulangerie, médecin, établissements scolaires de la maternelle au collège).
-- Isolation doubles murs.
-- Construction traditionnelle.
-- Chauffage gaz (chaudière à condensation).
-- Système de VMC double flux.
-- Fenêtres double vitrage pvc, Volets roulants et stores véranda électriques.
-- Beaux volumes, disposition des pièces voir plan dans les photos.
-- GES: D/DPE: D.
-- Taxe Foncière: 967EUR.

-- Principales distances:
Centre commerciale Cora Mundo : 5 min, 2 km
Schilt.Parc Euro Entrep: 11 min, 6 km.
Brumath: 12 min, 12 km.
Strasbourg centre: 12 min, 13 km.
Saverne: 31 min, 43 km.
3%.COM - ROTH IMMOBILIER : réseau national à honoraires réduits, accompagnement complet, expertise du marché local.

Contactez Sébastien BELNY, conseiller immobilier 3%.COM
Du lundi au samedi de 9h00 à 19h00.
[Coordonnées masquées] (appel/SMS/WhatsApp)
Sé[Coordonnées masquées]
Agent Commercial en Immobilier, inscrit au RSAC Strasbourg No 797 569 951.
spécialiste de la vente immobilière à honoraires réduits sur MUNDOLSHEIM, LAMPERTHEIM, VENDENHEIM, DINGSHEIM, GRIESHEIM-sur-Souffel, PFULGRIESHEIM et alentours.

Visites sur rendez-vous réponse rapide.

-- Agence Immobilière ROTH IMMOBILIER Sarl, franchisé 3%.COM, RCS 803 863 638.
-- Agence et vitrines à Hochfelden, siège à Gimbrett-Kochersberg.
-- Réseau national à honoraires réduits: 3% TTC
Les informations sur les risques auxquels ce bien est exposé sont disponibles sur le site Géorisques : www.georisques.gouv.fr - Annonce rédigée et publiée par un Agent Mandataire -
Voir plus

Référence: 55_V1000062059
Honoraires d'agence de 2.54% à la charge de l'acquéreur
DPE
A
B
C
D
E
F
G
GES
A
B
C
D
E
F
G
Maison à GRIESHEIM-SUR-SOUFFEL
Maison à GRIESHEIM-SUR-SOUFFEL
Maison à GRIESHEIM-SUR-SOUFFEL
Maison à GRIESHEIM-SUR-SOUFFEL
Maison à GRIESHEIM-SUR-SOUFFEL
Maison à GRIESHEIM-SUR-SOUFFEL
Maison à GRIESHEIM-SUR-SOUFFEL
Maison à GRIESHEIM-SUR-SOUFFEL
Maison à GRIESHEIM-SUR-SOUFFEL
Maison à GRIESHEIM-SUR-SOUFFEL
Maison à GRIESHEIM-SUR-SOUFFEL
Maison à GRIESHEIM-SUR-SOUFFEL
Maison à GRIESHEIM-SUR-SOUFFEL
Maison à GRIESHEIM-SUR-SOUFFEL
Maison à GRIESHEIM-SUR-SOUFFEL
Maison à GRIESHEIM-SUR-SOUFFEL
Maison à GRIESHEIM-SUR-SOUFFEL
Maison à GRIESHEIM-SUR-SOUFFEL
Maison à GRIESHEIM-SUR-SOUFFEL
Maison à GRIESHEIM-SUR-SOUFFEL
Maison à GRIESHEIM-SUR-SOUFFEL
Maison à GRIESHEIM-SUR-SOUFFEL
Maison à GRIESHEIM-SUR-SOUFFEL
Maison à GRIESHEIM-SUR-SOUFFEL
Maison à GRIESHEIM-SUR-SOUFFEL
Maison à GRIESHEIM-SUR-SOUFFEL
Maison à GRIESHEIM-SUR-SOUFFEL
Maison à GRIESHEIM-SUR-SOUFFEL
Maison à GRIESHEIM-SUR-SOUFFEL
Maison à GRIESHEIM-SUR-SOUFFEL
Géorisques

Les informations sur les risques auxquels ce bien est exposé sont disponibles sur le site Géorisques : www.georisques.gouv.fr

Ce site est protégé par hCaptcha Politique de confidentialité et Conditions d’utilisation s’appliquent.