Bénéficiez des services de nos partenaires locaux soigneusement sélectionnés
pour vous accompagner dans votre parcours d'achat immobilier

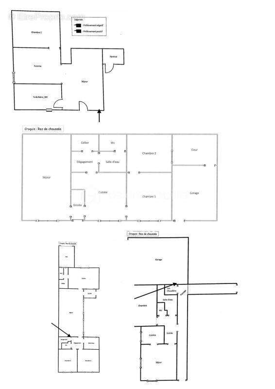
Ensemble de 4 maisons

— Bethune 62400 —
269 000 €
219 m²
10 pièces
parking

Nos partenaires locaux
IDÉAL INVESTISSEUR (rentabilité mini de 2000 euros)
Je vous propose un ensemble immobilier à Bethune (proche du centre ville et de la gare qui se compose de 4 maisons
- une maison de 88m2 avec 2 chambres + laverie + place de parking classée E (libre de toute occupation)
- une maison de 33m2 avec une chambre et garage + place de parking classée F (libre de toute occupation )
- une maison de 36m2 avec une chambre + place de parking classée E (libre de toute occupation )
- une maison de 62m2 loué avec place de parking classée F
Rentabilité : mini 2000 euros
Cette annonce référence 274064 vous est présentée par votre agent commercial BSK Immobilier FLORENCE LEFRANCQ (EI) immatriculé au RSAC de ARRAS (62000) sous le numéro 81455732800014.

Prix du bien : 269 000,00 €
Les honoraires d'agence sont à la charge du vendeur.
Cette annonce référence 290805 vous est présentée par votre agent commercial BSK Immobilier FLORENCE LEFRANCQ (EI) immatriculé au RSAC de ARRAS (62000) sous le numéro 81455732800014.

Prix du bien : 269 000,00 €
Les honoraires d'agence sont à la charge du vendeur.

Les informations sur les risques auxquels ce bien est exposé sont disponibles sur le site Géorisques : www.georisques.gouv.fr

Cette annonce référence 305934 vous est présentée par votre agent commercial BSK Immobilier FLORENCE LEFRANCQ (EI) immatriculé au RSAC de ARRAS (62000) sous le numéro 81455732800014.

Prix du bien : 269 000,00 €
Les honoraires d'agence sont à la charge du vendeur.

Les informations sur les risques auxquels ce bien est exposé sont disponibles sur le site Géorisques : www.georisques.gouv.fr
Voir plus

Référence: 305934
Honoraires à la charge du vendeur.

Prêt immobilier

Vous souhaitez connaître votre capacité d’emprunt et trouver le meilleur crédit immobilier ?
Réaliser une simulation gratuite

Maison à BETHUNE
Maison à BETHUNE
Maison à BETHUNE
Maison à BETHUNE
Maison à BETHUNE
Maison à BETHUNE
Maison à BETHUNE
Maison à BETHUNE
Maison à BETHUNE
Maison à BETHUNE
Maison à BETHUNE
Maison à BETHUNE
Maison à BETHUNE
Maison à BETHUNE
Maison à BETHUNE
Maison à BETHUNE
Maison à BETHUNE
Maison à BETHUNE
Maison à BETHUNE
Maison à BETHUNE
Maison à BETHUNE
Maison à BETHUNE
Maison à BETHUNE
Maison à BETHUNE
Ce site est protégé par reCAPTCHA la Politique de confidentialité et les Conditions d’utilisation de Google s’appliquent.
Obtenir un prêt immobilier au meilleur taux ?

En poursuivant votre navigation sans modifier vos paramètres, vous acceptez l'utilisation de cookies susceptibles de réaliser des statistiques de visite. Cliquez ici pour plus d'informations