Bénéficiez des services de nos partenaires locaux soigneusement sélectionnés
pour vous accompagner dans votre parcours d'achat immobilier

Maison à vendre 3 pièces proche de clamecy (58)

— Clamecy 58500 —
35 000 €
50 m² / 1 000 m²
3 pièces

Nos partenaires locaux
Grenois, en bordure de forêt sur un terrain de 1 000 m² une adorable maison de campagne vous attend.

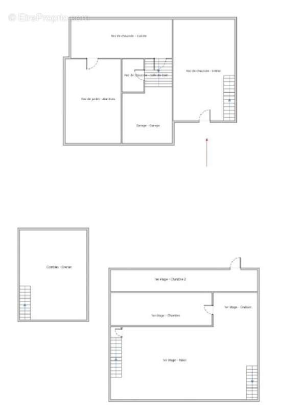
Elle se compose ainsi : entrée sur une belle pièce de vie de 32 m² suffisament spacieuse pour accueillir vos invités (conduit de cheminée, poutres, et escalier pour accès au 1er étage sont présents). Une cuisine et arrière-cuisine.
A l'étage : grand-palier-couloir desservant une chambre de 10,59 m² et une autre chambre de 7 m² pouvant servir de bureau par exemple.
Grenier à aménager selon vos besoins.
Grande cave voûtée. Garage, grande remise.

Si vous avez besoin d'une école élémentaire, vous la trouverez à 7 minutes en voiture sur la commune de Brinon-sur-Beuvron. Village qui propose également une boulangerie, une pharmacie, un informaticien, une charcuterie avec plats à emporter, une banque.

Amateurs de calme et de commodités pour la vie de tous les jours, cette maison peut vous convenir. Idéalement située, n'hésitez pas à téléphoner pour prendre rendez-vous et visiter au plus vite !

Les honoraires sont à la charge du vendeur.
Les informations sur les risques auxquels ce bien est exposé sont disponibles sur le site Géorisques : www. georisques. gouv. fr.

Réseau Immobilier CAPIFRANCE - Votre agent commercial (RSAC N°449 588 516 - Greffe de NEVERS) Martine ROUSSELET Entrepreneur Individuel [Coordonnées masquées] - Réf.922352
Voir plus

Référence: 340934637713
Honoraires à la charge du vendeur.

Prêt immobilier

Vous souhaitez connaître votre capacité d’emprunt et trouver le meilleur crédit immobilier ?
Réaliser une simulation gratuite

Maison à CLAMECY
Maison à CLAMECY
Maison à CLAMECY
Maison à CLAMECY
Maison à CLAMECY
Maison à CLAMECY
Maison à CLAMECY
Maison à CLAMECY
Maison à CLAMECY
Ce site est protégé par reCAPTCHA la Politique de confidentialité et les Conditions d’utilisation de Google s’appliquent.
Obtenir un prêt immobilier au meilleur taux ?

En poursuivant votre navigation sans modifier vos paramètres, vous acceptez l'utilisation de cookies susceptibles de réaliser des statistiques de visite. Cliquez ici pour plus d'informations