Bénéficiez des services de nos partenaires locaux soigneusement sélectionnés
pour vous accompagner dans votre parcours d'achat immobilier

Appartement 38 m² à Brest

— Brest 29200 —
89 500 €
38 m²
1 pièce
balcon/terrasseascenseur

Nos partenaires locaux
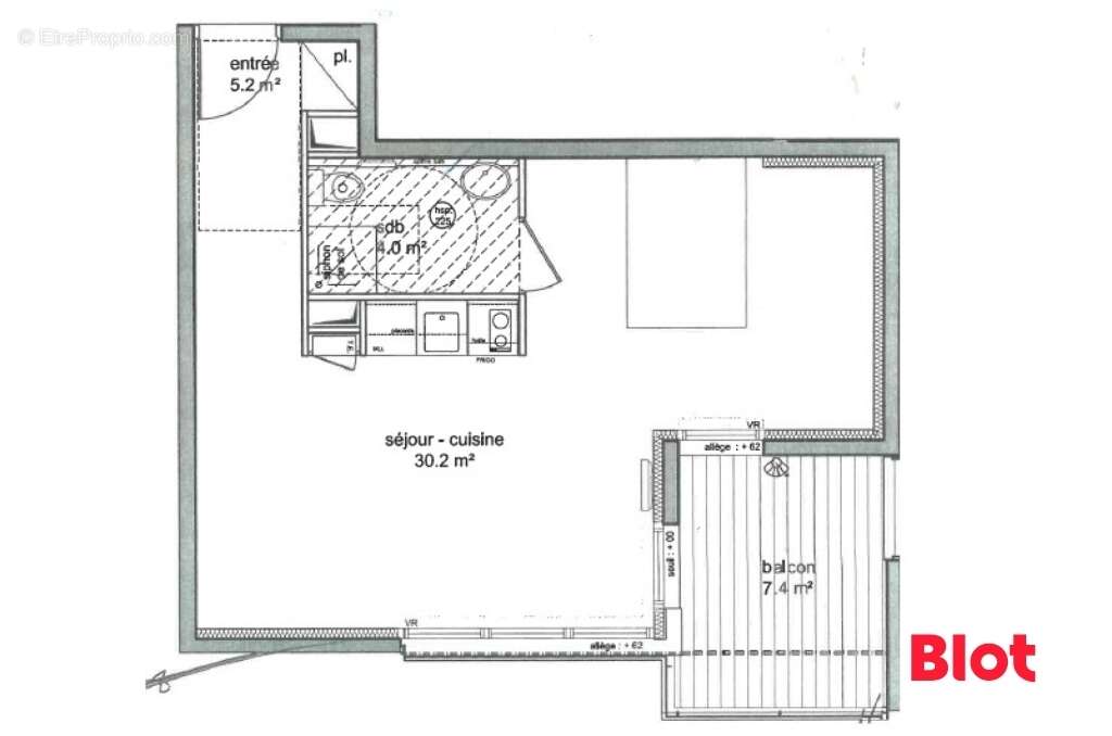
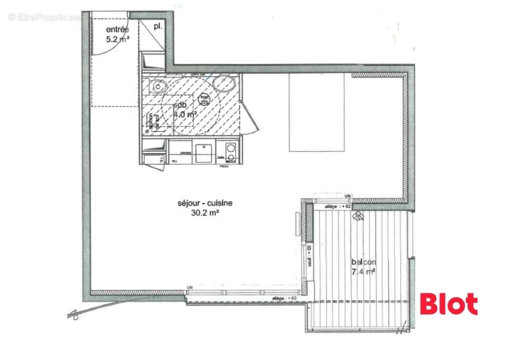
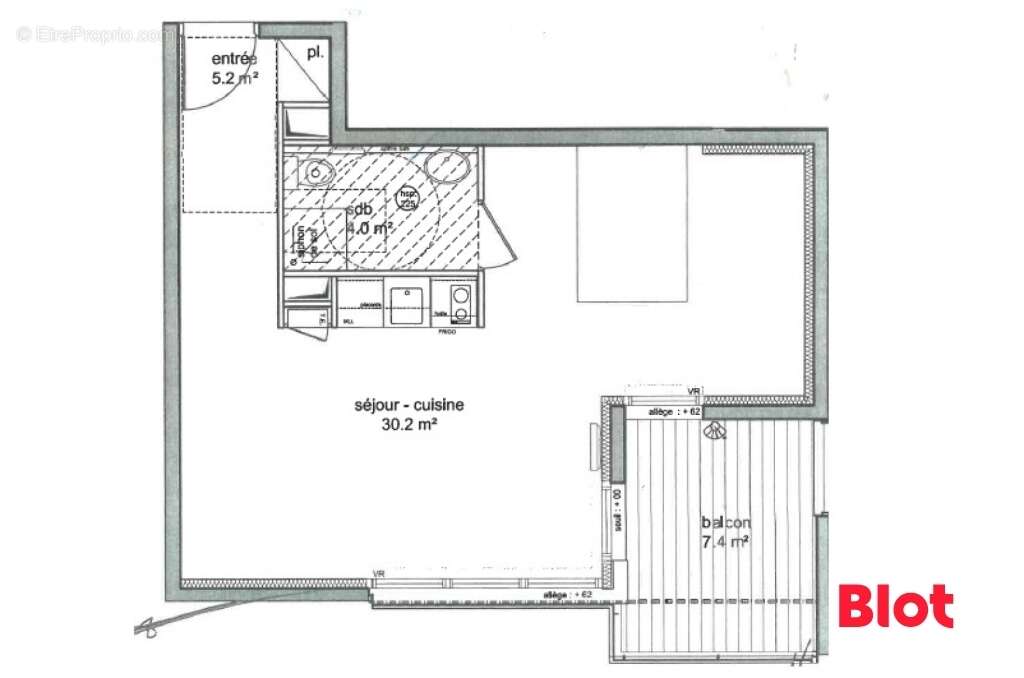
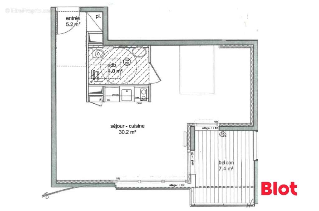
Appartement T1 bis de 39 m² SPECIAL INVESTISSEMENT LOCATIF Logement vendu loué, au sein d'une Résidence Séniors avec services (uniquement investissement : pas de possibilité d'y habiter ou d'y loger un proche) L'appartement est situé dans la résidence « Le Petit Jardin », rue Anatole France, dans le quartier historique de Recouvrance à BREST. La résidence, livrée en 2014, jouit d'un emplacement idéal, à quelques encablures de la base navale et du centre-ville de Brest, dans un environnement calme et verdoyant, proche des transports en commun et commerces. Loyer annuel : 4 960EUR HT / an garanti. Les loyers sont réglés que l'appartement soit loué ou non, grâce au bail commercial qui lie le propriétaire au gestionnaire / locataire. Gestionnaire/Locataire : Groupe LAMOTTE (bail commercial) Possibilité de défiscalisation (LMNP) CLASSE ENERGIE : D - 165 kWh/m²/an CLASSE CLIMAT : D - 34 kgCO2/m²/an Référence : 607IR Nombre de lots : 132 dont 93 à usage d'habitation. Les informations sur les risques naturels, miniers, ou technologiques, auxquels ces biens sont exposés, sont disponibles sur le site www.georisques.gouv.fr * Cet appartement vous est présenté par l'agence BLOT IMMOBILIER Brest - 26 rue Algésiras : [Coordonnées masquées] Au prix de 89 500 EUR FAI dont 9,15% TTC d'honoraires à la charge de l'acquéreur - Prix net vendeur : 82 000 EUR
Voir plus

Référence: 607IR
Bien en copropriété. Nombre de lots : 132. Charges de copropriété : 2160 €.
Honoraires d'agence de 9.15% à la charge de l'acquéreur
Barème des honoraires
DPE
A
B
C
D
E
F
G
GES
A
B
C
D
E
F
G
Appartement à BREST
Appartement à BREST
Appartement à BREST
Appartement à BREST
Appartement à BREST
Appartement à BREST
Appartement à BREST
Appartement à BREST
Appartement à BREST
Appartement à BREST
Appartement à BREST
Appartement à BREST
Appartement à BREST
Appartement à BREST
Appartement à BREST
Appartement à BREST
Appartement à BREST
Appartement à BREST
Appartement à BREST
Appartement à BREST
Appartement à BREST
Appartement à BREST
Appartement à BREST
Appartement à BREST
Appartement à BREST
Appartement à BREST
Appartement à BREST
Appartement à BREST
Appartement à BREST
Appartement à BREST
Appartement à BREST
Appartement à BREST
Appartement à BREST
Appartement à BREST
Appartement à BREST
Appartement à BREST
Appartement à BREST
Appartement à BREST
Appartement à BREST
Appartement à BREST
Appartement à BREST
Appartement à BREST
Géorisques

Les informations sur les risques auxquels ce bien est exposé sont disponibles sur le site Géorisques : www.georisques.gouv.fr

Ce site est protégé par hCaptcha Politique de confidentialité et Conditions d’utilisation s’appliquent.

En poursuivant votre navigation sans modifier vos paramètres, vous acceptez l'utilisation de cookies susceptibles de réaliser des statistiques de visite. Cliquez ici pour plus d'informations