Flayosc - maison hors d'eau avec piscine et garage, vue sur les vignes

— Flayosc 83780 —
315 000 €
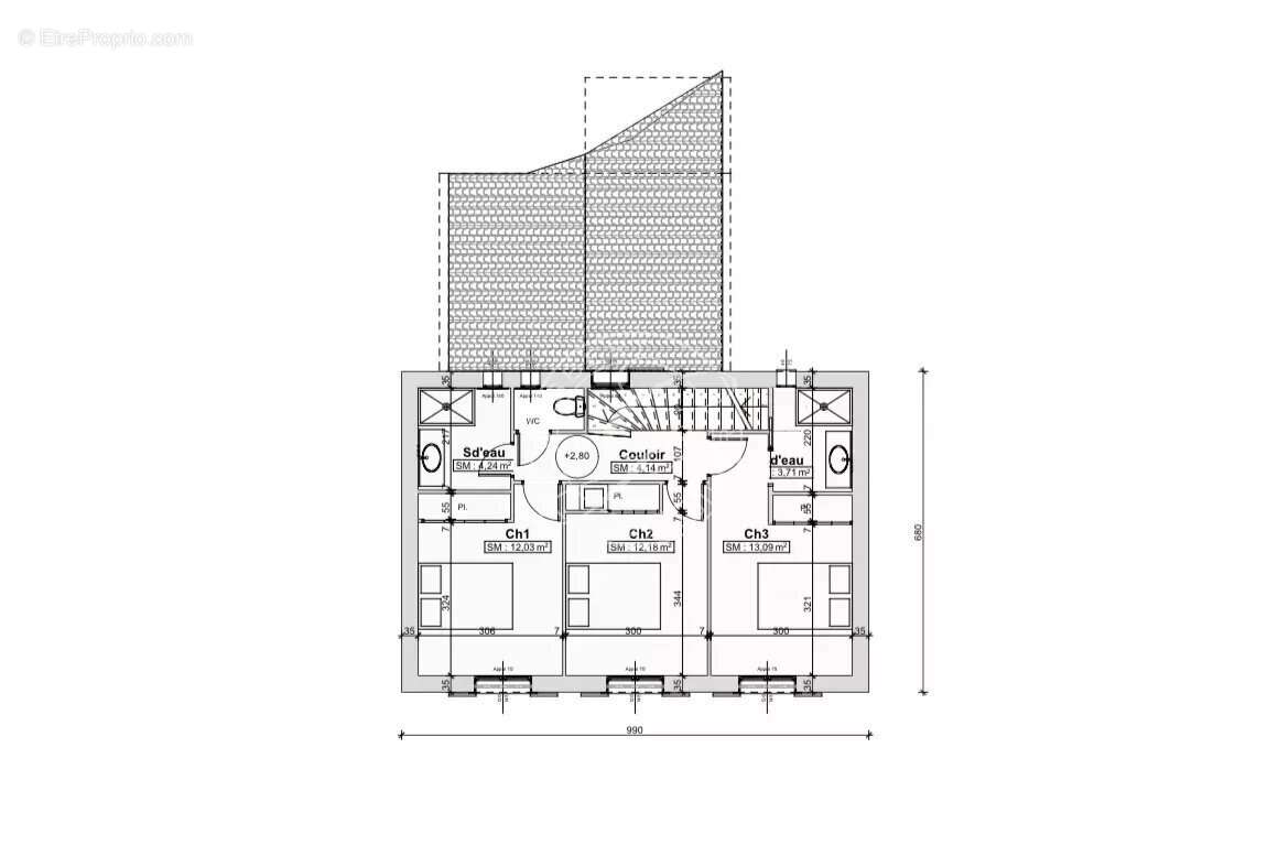
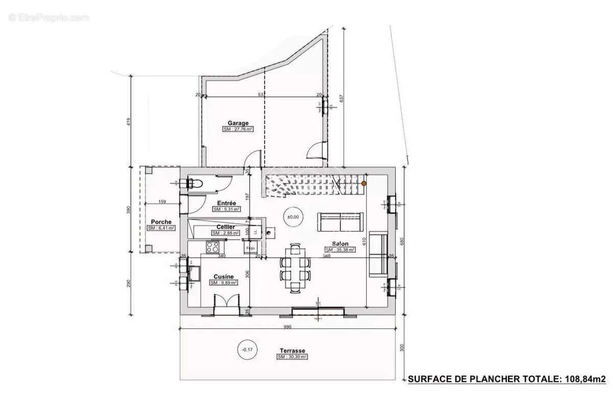
108 m² / 794 m²
4 pièces
parkingbalcon/terrassejardinpiscine

À vendre chez Gesbert Immobilier, une maison hors d’eau à usage d’habitation sur terrain de 794m2 => Projet personnalisable.
Dans un cadre paisible surplombant les vignes, découvrez cette maison hors d’eau, dotée d’un grand potentiel d’aménagement.
Maison à usage d’habitation hors d’eau (toiture et enveloppe extérieure terminées). Bassin existant et terrasse plein sud : parfaite pour profiter de l’extérieur et de la vue sur les vignes. Garage attenant.
Travaux hors d’air et second œuvre estimés à 100 000 €, devis établi pour preuve.
Aménagement des pièces, finitions, isolation, plomberie, électricité, revêtements intérieurs… à votre convenance, vous avez la liberté de choisir les matériaux, les finitions, l’agencement intérieur selon vos goûts.
Possibilité de travailler avec la société ayant créé la maison ou de faire appel à l’entreprise de votre choix.
Possibilité de commencer immédiatement les travaux avec l’entreprise initiale ou une autre choisie par l’acquéreur.
Pour plus de renseignements, visites, devis ou détails techniques, merci de contacter Carla RIVERON au [Coordonnées masquées].
Voir plus

Référence: CR2391

Prêt immobilier

Vous souhaitez connaître votre capacité d’emprunt et trouver le meilleur crédit immobilier ?
Réaliser une simulation gratuite

Maison à FLAYOSC
Maison à FLAYOSC
Maison à FLAYOSC
Maison à FLAYOSC
Maison à FLAYOSC
Maison à FLAYOSC
Maison à FLAYOSC
Maison à FLAYOSC
Maison à FLAYOSC
Maison à FLAYOSC
Maison à FLAYOSC
Maison à FLAYOSC
Maison à FLAYOSC
Ce site est protégé par reCAPTCHA la Politique de confidentialité et les Conditions d’utilisation de Google s’appliquent.
Obtenir un prêt immobilier au meilleur taux ?

En poursuivant votre navigation sans modifier vos paramètres, vous acceptez l'utilisation de cookies susceptibles de réaliser des statistiques de visite. Cliquez ici pour plus d'informations