Bénéficiez des services de nos partenaires locaux soigneusement sélectionnés
pour vous accompagner dans votre parcours d'achat immobilier

Terrain 400m² à magny-le-hongre

— Magny-Le-Hongre 77700 —
163 300 €
400 m²

Nos partenaires locaux
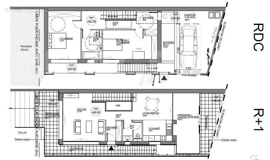
Nouveau, à 5 min de Magny le Hongre, beau terrain à bâtir de 400m² env. avec projet accordé pour une maison d'architecte de 152m² env.,
Orientation idéale plein SUD.
Quartier résidentiel privilégié.
Viabilités sur rue : EU, Epot, Elec, Fibre, Gaz).
Etude de sol G1 réalisée.
Permis de Construire accordé: démarrez vos travaux dans 3 mois !

-----------------------------------------------------------------
Les informations sur les risques auxquels ce bien est exposé sont disponibles sur le site Géorisques : www.georisques.gouv.fr
------------------------------------------------------------------
Cette annonce immobilière est rédigée sous la responsabilité de votre agent commercial.
------------------------------------------------------------------
Envie de changer de carrière professionnelle, BL AGENTS recrute partout en France, parlons-en ou découvrez notre concept sur www.bl-agents-recrutement.fr Contactez Cyril SAVRY au [Coordonnées masquées]. N° RSAC : 815 096 227 MEAUX
Voir plus

Référence: 38492
Honoraires à la charge du vendeur.
Barème des honoraires

Prêt immobilier

Vous souhaitez connaître votre capacité d’emprunt et trouver le meilleur crédit immobilier ?
Réaliser une simulation gratuite

Photo champs terrain - Terrain à MAGNY-LE-HONGRE
Photo champs terrain
Plans RDC et R+1 - Terrain à MAGNY-LE-HONGRE
Plans RDC et R+1
Photo 3D maison architecte 152m² terrain 400m² - Terrain à MAGNY-LE-HONGRE
Photo 3D maison architecte 152m² terrain 400m²
Vue 3D rue - Terrain à MAGNY-LE-HONGRE
Vue 3D rue
Ce site est protégé par reCAPTCHA la Politique de confidentialité et les Conditions d’utilisation de Google s’appliquent.
Obtenir un prêt immobilier au meilleur taux ?

En poursuivant votre navigation sans modifier vos paramètres, vous acceptez l'utilisation de cookies susceptibles de réaliser des statistiques de visite. Cliquez ici pour plus d'informations