Bénéficiez des services de nos partenaires locaux soigneusement sélectionnés
pour vous accompagner dans votre parcours d'achat immobilier

Voir tous les partenaires locaux

Paris 16 - village d'auteuil

— Paris-16e 75016 —
1 215 000 €
115 m²
4 pièces
parkingascenseur

Nos partenaires locaux
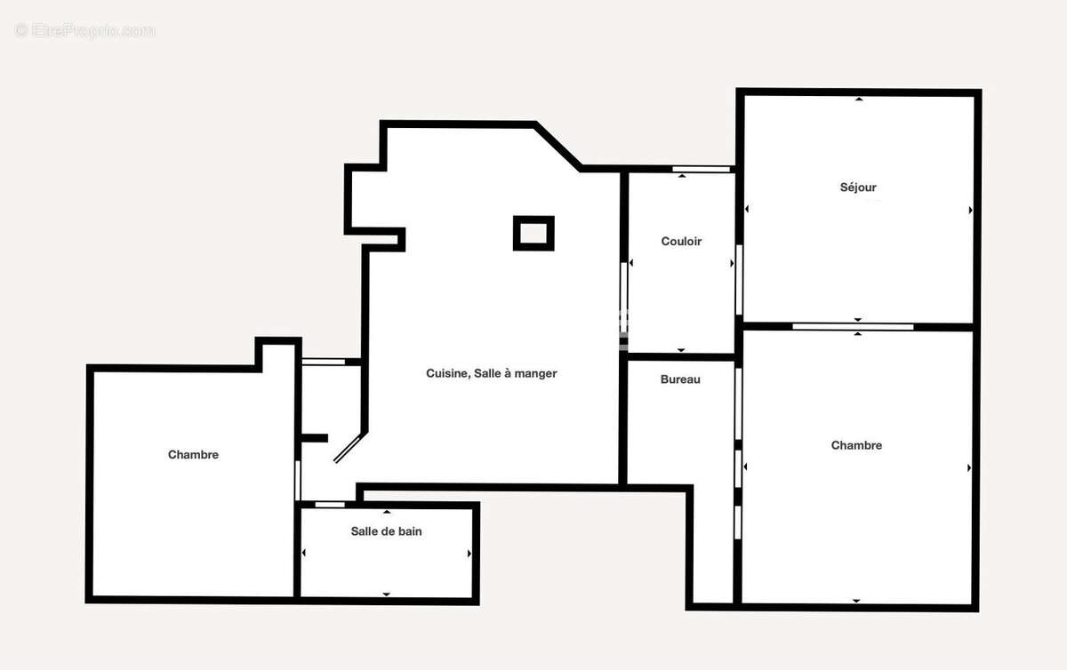
A immédiate proximité des transports et des commerces du Village d'Auteuil, dans une copropriété de standing tenue par un gardien à demeure, un appartement situé au 1er étage par ascenseur donnant sur trois cours arborées. Ce bien qui bénéficie d'une triple exposition est distribué comme suit : une entrée desservant un salon et une salle à manger avec cuisine semi-ouverte, deux grandes chambres, un bureau, une salle de bains avec toilettes, une salle de douche, des toilettes séparées. Une cave complète ce bien. Un emplacement de parking est disponible en sus dans la copropriété. LOCALISATION RECHERCHÉE - CALME - BEAUX VOLUMES - CHARME (4.74 % honoraires TTC à la charge de l'acquéreur.) Copropriété de 56 lots. Charges annuelles : 5374 euros.
Voir plus

Référence: 5384
Bien en copropriété. Nombre de lots : 56. Charges de copropriété : 5374 €. Procédure en cours : Procédure en cours.
Honoraires d'agence de 4.74% à la charge de l'acquéreur
Barème des honoraires
DPE
A
B
C
D
E
F
G
GES
A
B
C
D
E
F
G

Prêt immobilier

Vous souhaitez connaître votre capacité d’emprunt et trouver le meilleur crédit immobilier ?
Réaliser une simulation gratuite

Appartement à PARIS-16E
Appartement à PARIS-16E
Appartement à PARIS-16E
Appartement à PARIS-16E
Appartement à PARIS-16E
Appartement à PARIS-16E
Appartement à PARIS-16E
Appartement à PARIS-16E
Appartement à PARIS-16E
Ce site est protégé par reCAPTCHA la Politique de confidentialité et les Conditions d’utilisation de Google s’appliquent.
Obtenir un prêt immobilier au meilleur taux ?

En poursuivant votre navigation sans modifier vos paramètres, vous acceptez l'utilisation de cookies susceptibles de réaliser des statistiques de visite. Cliquez ici pour plus d'informations