Nice ouest ste marguerite caucade 4p balcon parking collectif

— Nice 06200 —
299 000 €
75 m²
4 pièces

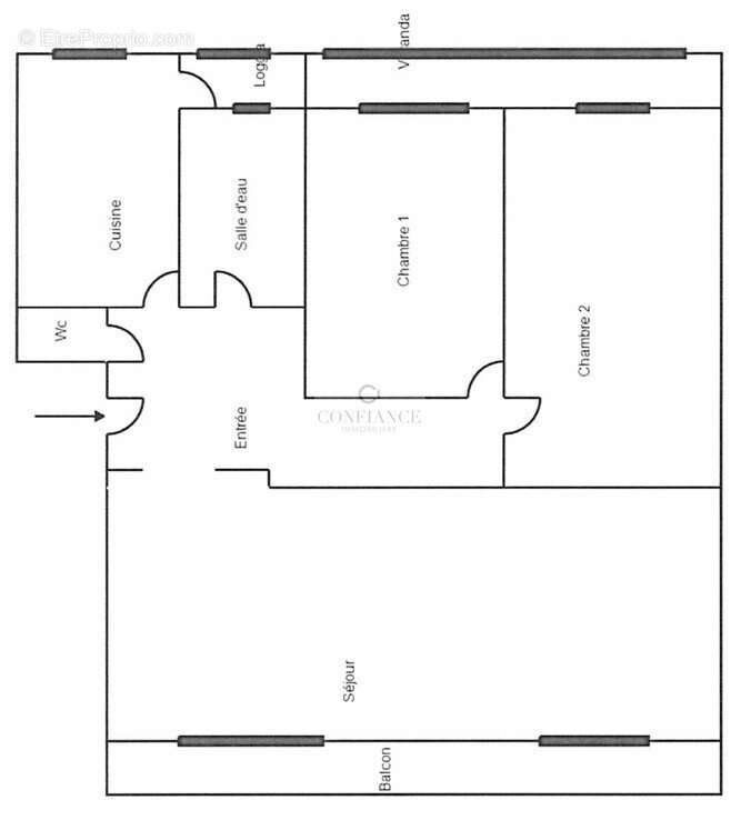
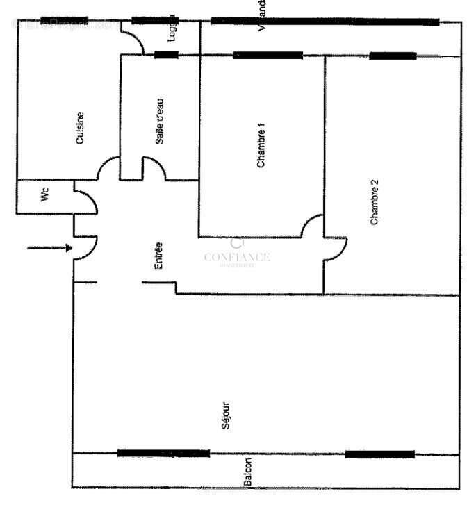
NICE OUEST STE MARGUERITE ECOLE DE CAUCADE // 4 P 75M² // BALCON // PARKING COLLECTIF // Au sein d'un environnement paisible sur l'avenue Sainte-Marguerite, découvrez ce magnifique appartement 4 pièces repensé en 3 pièces, offrant ainsi un vaste espace de vie de plus de 27 m². Baigné de lumière, ce séjour s'ouvre sur un large balcon d'environ 12 m², exposé Sud-Ouest, idéal pour accueillir une table et profiter des beaux jours. La cuisine, indépendante et entièrement équipée, allie fonctionnalité et confort. L'espace nuit comprend deux chambres 11.30 et 15.02 m² , une élégante salle d'eau avec douche à l'italienne ainsi qu'un WC indépendant. L'appartement a été complètement rénové en plomberie, électricité, doubles vitrages, stores électriques, climatisation dans le séjour permettant un rafraichissement dans toutes les pièces... Il sera très facile de recréer la troisième chambre, vendu avec une cave de 6.25m², local pour vélos et scooters au sous sol de l'immeuble. Résidence avec jardin d'infants et terrain de boules. Les informations sur les risques auxquels ce bien est exposé sont disponibles sur le site Géorisques http://www.georisques.gouv.fr Toute l'équipe Confiance Immobilière vous remercie. Plaquette de présentation complète Visite virtuelle commentée sur demande. .... lots de copropriété - Taxe F 1036....€ - Charges ..179..€ /mois - Surface CARREZ : 70.17 m² / Hab .75.24... m² - Dpe .C.. / .C Honoraires à la charge du vendeur. Aucune connaissance de procédures en cours dans la copropriété.
Voir plus

Référence: 32330610
Honoraires à la charge du vendeur.
Barème des honoraires
DPE
A
B
C
D
E
F
G
GES
A
B
C
D
E
F
G

Prêt immobilier

Vous souhaitez connaître votre capacité d’emprunt et trouver le meilleur crédit immobilier ?
Réaliser une simulation gratuite

Appartement à NICE
Appartement à NICE
Appartement à NICE
Appartement à NICE
Appartement à NICE
Appartement à NICE
Appartement à NICE
Appartement à NICE
Appartement à NICE
Appartement à NICE
Appartement à NICE
Appartement à NICE
Appartement à NICE
Appartement à NICE
Appartement à NICE
Appartement à NICE
Appartement à NICE
Appartement à NICE
Appartement à NICE
Appartement à NICE
Appartement à NICE
Appartement à NICE
Ce site est protégé par reCAPTCHA la Politique de confidentialité et les Conditions d’utilisation de Google s’appliquent.
Obtenir un prêt immobilier au meilleur taux ?

En poursuivant votre navigation sans modifier vos paramètres, vous acceptez l'utilisation de cookies susceptibles de réaliser des statistiques de visite. Cliquez ici pour plus d'informations