Appartement suresnes 5 pièces 102 m2

— Suresnes 92150 —
480 000 €
102 m²
5 pièces
parkingbalcon/terrasse

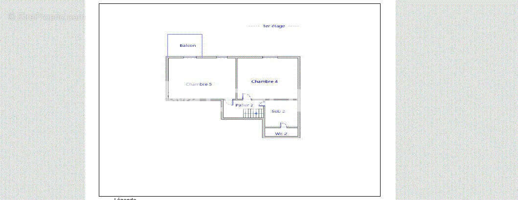
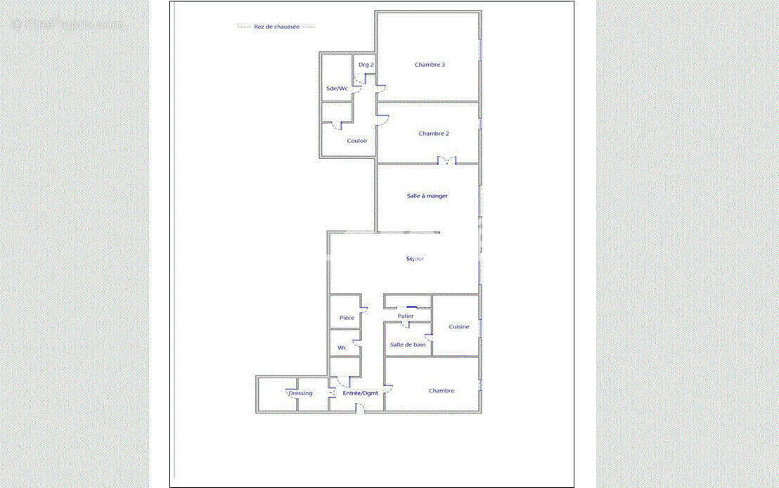
SURESNES = RAGUIDELLES = DOMAINE DES HOCQUETTES Dans une copropriété CALME avec un parc intérieur, à 7 min à pied du tramway (Suresnes Longchamps), de la gare SNCF et des commerces rue Edouard Vaillant, de l'école Raguidelles. Un DUPLEX familial au Rez-de-chaussée de5 pièces de 102m², Lumineux. Un double SEJOUR de 35 m² , une CUISINE DINATOIRE équipée, 3 chambres, deux salles de bains et une salle d'eau. Deux CAVES et la jouissance d'une place de parking extérieur complètent ce bien. A visiter avec LAFORET SURESNES MONT-VALERIEN (4.35 % honoraires TTC à la charge de l'acquéreur.) Copropriété de 180 lots (Pas de procédure en cours). Charges annuelles : 3916 euros.
Voir plus

Bien en copropriété. Nombre de lots : 180. Charges de copropriété : 3916 €.
Honoraires d'agence de 4.35% à la charge de l'acquéreur
Barème des honoraires
DPE
A
B
C
D
E
F
G
GES
A
B
C
D
E
F
G

Prêt immobilier

Vous souhaitez connaître votre capacité d’emprunt et trouver le meilleur crédit immobilier ?
Réaliser une simulation gratuite

Appartement à SURESNES
Appartement à SURESNES
Appartement à SURESNES
Appartement à SURESNES
Appartement à SURESNES
Appartement à SURESNES
Appartement à SURESNES
Appartement à SURESNES
Appartement à SURESNES
Appartement à SURESNES
Ce site est protégé par reCAPTCHA la Politique de confidentialité et les Conditions d’utilisation de Google s’appliquent.
Obtenir un prêt immobilier au meilleur taux ?

En poursuivant votre navigation sans modifier vos paramètres, vous acceptez l'utilisation de cookies susceptibles de réaliser des statistiques de visite. Cliquez ici pour plus d'informations