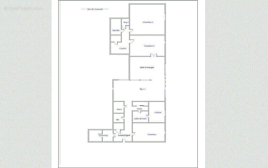
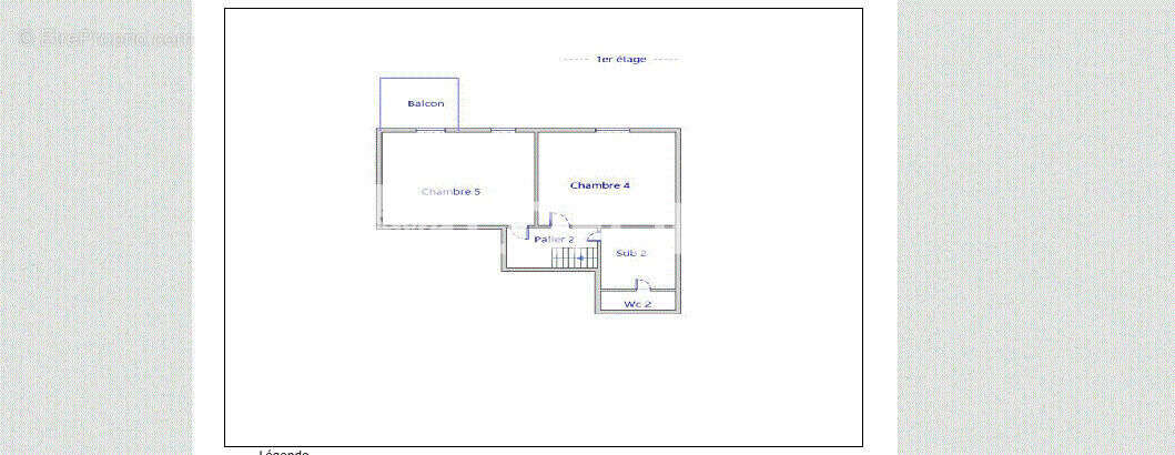
Appartement suresnes 6 pièces 145m2

— Suresnes 92150 —
650 000 €
144 m²
7 pièces
parkingbalcon/terrasse

SURESNES = RAGUIDELLES = DOMAINE DES HOCQUETTES Dans une copropriété CALME avec un parc intérieur, à 7 min à pied du tramway (Suresnes Longchamps), de la gare SNCF et des commerces rue Edouard Vaillant, de l'école Raguidelles. Un DUPLEX familial au Rez-de-chaussée de 6/7 pièces de 145m², Lumineux. Un double SEJOUR de 35 m² , une CUISINE DINATOIRE équipée, 5 chambres, deux salles de bains et une salle d'eau. Deux CAVES et la jouissance d'une place de parking extérieur complètent ce bien. Possibilité de DIVISON, (Duplex et deux pièces), environs 101m2 et 43 m2. A visiter avec LAFORET SURESNES MONT-VALERIEN (5.01 % honoraires TTC à la charge de l'acquéreur.) Copropriété de 180 lots (Pas de procédure en cours). Charges annuelles : 5424 euros.
Voir plus

Référence: 502
Bien en copropriété. Nombre de lots : 180. Charges de copropriété : 5424 €.
Honoraires d'agence de 5.01% à la charge de l'acquéreur
Barème des honoraires
DPE
A
B
C
D
E
F
G
GES
A
B
C
D
E
F
G

Prêt immobilier

Vous souhaitez connaître votre capacité d’emprunt et trouver le meilleur crédit immobilier ?
Réaliser une simulation gratuite

Appartement à SURESNES
Appartement à SURESNES
Appartement à SURESNES
Appartement à SURESNES
Appartement à SURESNES
Appartement à SURESNES
Appartement à SURESNES
Appartement à SURESNES
Appartement à SURESNES
Appartement à SURESNES
Ce site est protégé par reCAPTCHA la Politique de confidentialité et les Conditions d’utilisation de Google s’appliquent.
Obtenir un prêt immobilier au meilleur taux ?

En poursuivant votre navigation sans modifier vos paramètres, vous acceptez l'utilisation de cookies susceptibles de réaliser des statistiques de visite. Cliquez ici pour plus d'informations