Bénéficiez des services de nos partenaires locaux soigneusement sélectionnés
pour vous accompagner dans votre parcours d'achat immobilier

Lille - t4 avec jardin et place de parkin

— Lille 59800 —
367 000 €
117 m²
4 pièces
parkingbalcon/terrasse

Nos partenaires locaux
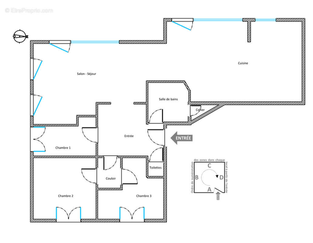
Charmant T4 de 117m2 - Construction de 1988
Découvrez ce T4 rez-de-jardin, idéalement situé, à proximité immediate des gares (Gare Lille Europe & Gare Lille Flandre), des écoles, commerces et transports en commun (métro & bus).
Ce bien, d'une superficie de 117 m2, se compose de :
- Un salon/séjour lumineux avec cuisine de 60m2 avec accès sur le jardin privatif, parfait pour vos moments de détente et de convivialité.
- De 3 chambres de 10 / 13 et 13m2, offrant un espace confortable pour se reposer.
- Une salle de bains avec douche et baignoire, ainsi qu'un WC séparé pour plus de praticité.
- Une buanderie, facilitant vos tâches ménagères au quotidien.
En plus de ces atouts, l'appartement dispose d'un jardin privatif d'environs 250m2 sans vis-à-vis, idéal pour profiter des beaux jours, ainsi qu'une place de stationnement privative.
Informations complémentaires :
- Mandat EXCLUSIVE No2002. - Copropriété : Oui
- Charges annuelles : 3 400 € (soit 283€ par mois, l'entretien des communs, l'ascenseur et les poubelles) Pas de procédure en cours
- Prix : 367 000 € (4,86% d'honoraires inclus à la charge de l'acquéreur)
Pour plus d'informations sur les risques auxquels ce bien est exposé, veuillez consulter le site Géorisques : georisques.gouv.fr. Retrouvez l'ensemble de nos biens sur www.expert-immo-lille.fr
Voir plus

Référence: 2002
Bien en copropriété. Nombre de lots : 78. Charges de copropriété : 3400 €.
Honoraires d'agence de 4.86% à la charge de l'acquéreur
Barème des honoraires
DPE
A
B
C
D
E
F
G
GES
A
B
C
D
E
F
G

Prêt immobilier

Vous souhaitez connaître votre capacité d’emprunt et trouver le meilleur crédit immobilier ?
Réaliser une simulation gratuite

Appartement à LILLE
Appartement à LILLE
Appartement à LILLE
Appartement à LILLE
Appartement à LILLE
Appartement à LILLE
Appartement à LILLE
Appartement à LILLE
Appartement à LILLE
Ce site est protégé par reCAPTCHA la Politique de confidentialité et les Conditions d’utilisation de Google s’appliquent.
Obtenir un prêt immobilier au meilleur taux ?

En poursuivant votre navigation sans modifier vos paramètres, vous acceptez l'utilisation de cookies susceptibles de réaliser des statistiques de visite. Cliquez ici pour plus d'informations