Maison type t3 bis

— Cologne 32430 —
78 000 €
93 m²
4 pièces

INVESTISSEURS EN QUÊTE DE DÉFICIT FONCIER, CETTE OPPORTUNITÉ EST POUR VOUS !
Permis accordé pour changement de destination en habitation: saisissez l’occasion de finaliser la rénovation et donner vie à cette maison de ville. Les travaux suivants ont déjà été réalisés :


Toiture


Dalle et plancher


Raccordements aux réseaux effectués (viabilisation)


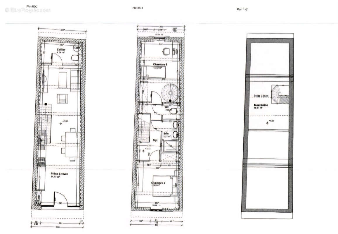
Il ne reste plus qu’à aménager l’intérieur selon vos envies ou le projet déjà envisagé : une maison T3 bis d’environ 92,79 m2. Devis disponibles et étude locative à l’appui pour vous accompagner dans votre projection.
Bien entendu, ce bien peut également convenir à un projet de résidence principale pour les passionnés de rénovation.
Voir plus
DPE
A
B
C
D
E
F
G
GES
A
B
C
D
E
F
G

Prêt immobilier

Vous souhaitez connaître votre capacité d’emprunt et trouver le meilleur crédit immobilier ?
Réaliser une simulation gratuite

Maison à COLOGNE
Maison à COLOGNE
Maison à COLOGNE
Maison à COLOGNE
Maison à COLOGNE
Ce site est protégé par reCAPTCHA la Politique de confidentialité et les Conditions d’utilisation de Google s’appliquent.
Obtenir un prêt immobilier au meilleur taux ?

En poursuivant votre navigation sans modifier vos paramètres, vous acceptez l'utilisation de cookies susceptibles de réaliser des statistiques de visite. Cliquez ici pour plus d'informations