Bénéficiez des services de nos partenaires locaux soigneusement sélectionnés
pour vous accompagner dans votre parcours d'achat immobilier

immeuble de rapport de 980 m² – hyper-centre de tarbes – double façade, commerce + potentiel résidentiel

— Tarbes 65000 —
480 000 €
980 m²
15 pièces

Nos partenaires locaux
EMPLACEMENT EXCEPTIONNEL en plein centre de Tarbes, cet immeuble traversant de 910 m² développe de très beaux volumes sur 3 niveaux, avec accès direct sur deux rues (double façade) – un atout rare sur le marché local.

REZ-DE-CHAUSSÉE : 450 m²
Actuellement exploité à usage commercial, avec grande visibilité, vitrines et plusieurs accès. Idéal pour commerces, bureaux, ou reconversion partielle en habitat selon les projets.

1er ÉTAGE : 220 m²
Plateau lumineux avec terrasses offrant une possibilité de création de 4 appartements, dont :
- 1 T3 d'environ 70 m²
- 1 T2/T3 de 60 m²
- 1 grand appartement d'environ 90 m²
- 1 vaste logement de 130 m² avec terrasse privative

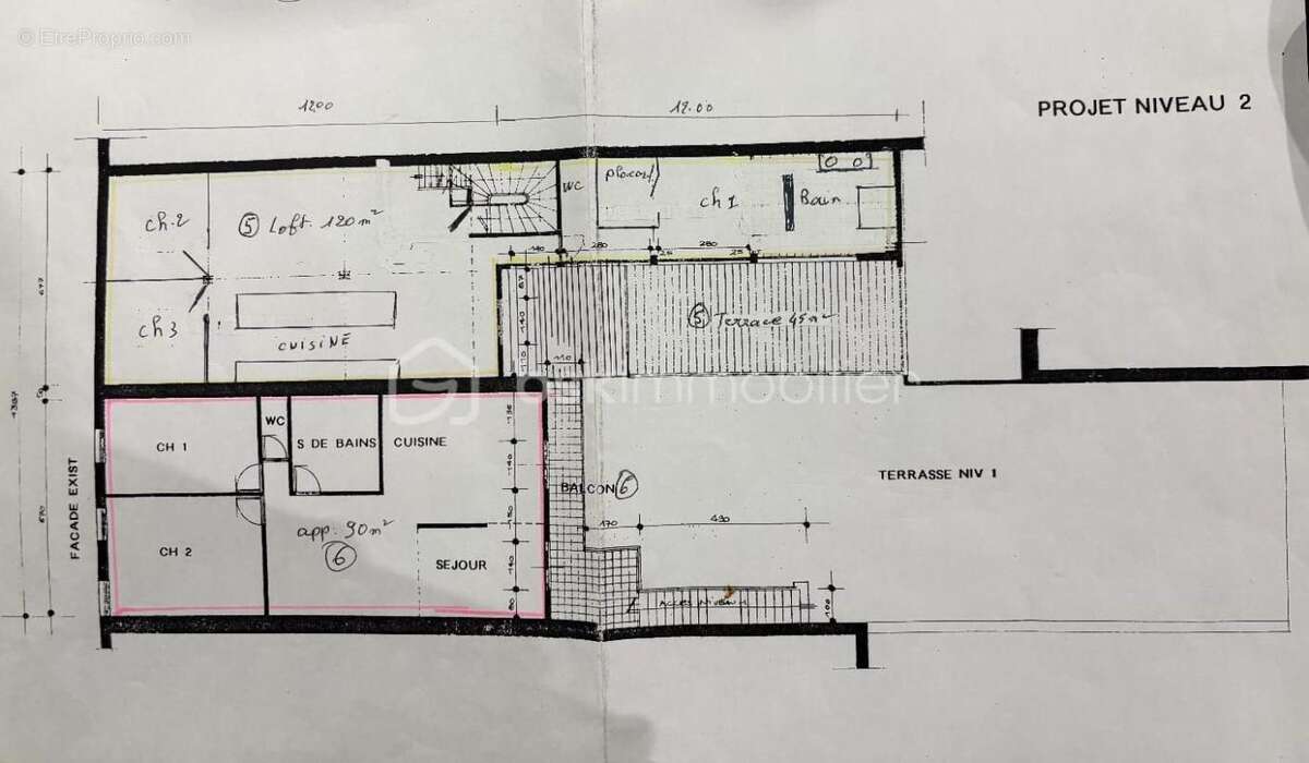
2e ÉTAGE : 240 m²
Possibilité de diviser en deux ou trois logements :
- Un loft de 120 m² avec belle hauteur sous plafond, possibilité de créer une mezzanine pour les chambres ou de faire deux appartements
- Un T3/T4 de 90 m² avec balcon

3e ÉTAGE : 65 m² à 1.80m
Possibilité de crée un appartement sous combles ou de faire un duplex avec le 2e étage.

État général très bon : les structures sont saines, les volumes généreux, les accès multiples déjà existants facilitent la division.
Un bien à très fort potentiel, idéal pour :
Un projet de division en appartements
Un investissement locatif mixte (commerce + habitation)
Un projet de résidence principale avec activité professionnelle
Double accès, terrasses, balcons, multiples possibilités de valorisation : ce bien rare offre une opportunité unique de mixer rentabilité et patrimoine.

Pour plus d'informations ou une visite sur site, contactez-moi dès maintenant. Opportunité à ne pas manquer !

Cette annonce référence 296836 vous est présentée par votre agent commercial BSK Immobilier LAURENT SCHAFER (EI) immatriculé au RSAC de PAU (64000) sous le numéro 89365200800028.

Prix du bien : 480 000,00 €
Les honoraires d'agence sont à la charge du vendeur.

A propos des performances énergétiques :
Date de réalisation du diagnostic énergétique : 11/05/2022
Score DPE : 67 kWhEP/m²/an
Score GES : 13 kgepCO2/m²/an
Montant estimé des dépenses annuelles d'énergie pour un usage standard : entre 10550.00 € et 19550.00 € par an. Prix moyens des énergies indexés sur l'année 2021 (abonnements compris).

Les informations sur les risques auxquels ce bien est exposé sont disponibles sur le site Géorisques : www.georisques.gouv.fr
Voir plus

Référence: 296836
Honoraires à la charge du vendeur.
DPE
A
B
C
D
E
F
G
GES
A
B
C
D
E
F
G

Prêt immobilier

Vous souhaitez connaître votre capacité d’emprunt et trouver le meilleur crédit immobilier ?
Réaliser une simulation gratuite

Appartement à TARBES
Appartement à TARBES
Appartement à TARBES
Appartement à TARBES
Appartement à TARBES
Appartement à TARBES
Appartement à TARBES
Appartement à TARBES
Appartement à TARBES
Appartement à TARBES
Ce site est protégé par reCAPTCHA la Politique de confidentialité et les Conditions d’utilisation de Google s’appliquent.
Obtenir un prêt immobilier au meilleur taux ?

En poursuivant votre navigation sans modifier vos paramètres, vous acceptez l'utilisation de cookies susceptibles de réaliser des statistiques de visite. Cliquez ici pour plus d'informations