Appartement t2 orvault - cholière

— Orvault 44700 —
185 000 €
42 m²
2 pièces

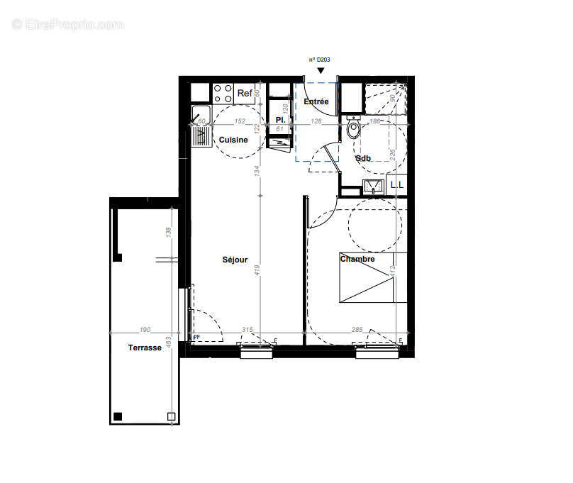
L'Agence Locale vous propose à la vente ce T2 de 42 m². Un appartement type 2 récent au 2e étage, avec séjour ouvert sur une cuisine équipée, chambre spacieuse et une terrasse . Situé à Orvault quartier de la Cholière, emplacement stratégique à proximité immédiate des transports en commun, des écoles, commerces et du centre-ville de Nantes.

Prêt immobilier

Vous souhaitez connaître votre capacité d’emprunt et trouver le meilleur crédit immobilier ?
Réaliser une simulation gratuite

Appartement à ORVAULT
Appartement à ORVAULT
Ce site est protégé par reCAPTCHA la Politique de confidentialité et les Conditions d’utilisation de Google s’appliquent.
Obtenir un prêt immobilier au meilleur taux ?

En poursuivant votre navigation sans modifier vos paramètres, vous acceptez l'utilisation de cookies susceptibles de réaliser des statistiques de visite. Cliquez ici pour plus d'informations