Bénéficiez des services de nos partenaires locaux soigneusement sélectionnés
pour vous accompagner dans votre parcours d'achat immobilier

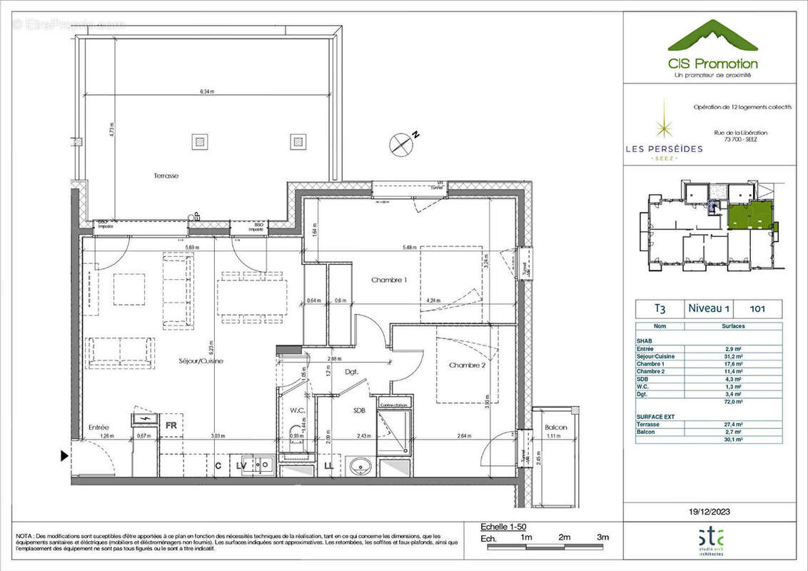
Appartement t3, 72.0 m² - spacieux et offrant une belle terrasse de 27.0 m² , à séez (centre village)

— Seez 73700 —
417 000 €
72 m²
3 pièces
balcon/terrasseascenseur

Nos partenaires locaux
Appartement 3pièces, bénéficiant d'une magnifique terrasse de 27,4 m² Résidence intimiste - seulement 12 logements pour un cadre privilégié. Cet appartement familial de 72,0 m² au séjour spacieux dispose d'une belle terrasse ainsi qu'un balcon exposés Ouest et Est. Il se compose de : - Entrée (2,9 m²) avec placards de rangement intégrés ; - Séjour / cuisine ouverte de 31,2 m², lumineux grâce à sa double ouverture sur une grande terrasse (27,4 m²) exposé à l'Ouest ; - D'une première chambre, Suite parentale lumineuse (17,6 m²) avec placards de rangement intégrés et une double exposition ; - D'une seconde chambre (11,4 m²) avec Balcon (2,7 m²) - D'une salle de douche familiale (4,3 m²) ; - D'un WC indépendant ; - Dégagement (3,4 m²) optimisant la distribution des pièces ; - Cave privative ; - Garages en option. Les atouts de la résidence : - Performance énergétique et confort optimal ; - Ascenseur pour plus de confort au quotidien ; - Garages, parkings, caves et local à vélos ; - Pompe à chaleur et chauffage au sol dans les pièces de vie et chambres ; - Parcelles de jardin potager offertes aux résidents. La résidence est idéalement situé, à quelques minutes de Bourg Saint Maurice et des stations de la Haute Tarentaise. Idéal pour un acquéreur en résidence principale à la recherche d'un cadre de vie agréable, moderne et durable, en plein centre de Séez. Copropriété de 12 lots - dont 12 lots habitation. (Pas de procédure en cours). Charges annuelles : 1 euros.
Voir plus

Bien en copropriété. Nombre de lots : 12. Charges de copropriété : 1 €.
Honoraires à la charge du vendeur.

Prêt immobilier

Vous souhaitez connaître votre capacité d’emprunt et trouver le meilleur crédit immobilier ?
Réaliser une simulation gratuite

Appartement à SEEZ
Appartement à SEEZ
Appartement à SEEZ
Appartement à SEEZ
Ce site est protégé par reCAPTCHA la Politique de confidentialité et les Conditions d’utilisation de Google s’appliquent.
Obtenir un prêt immobilier au meilleur taux ?

En poursuivant votre navigation sans modifier vos paramètres, vous acceptez l'utilisation de cookies susceptibles de réaliser des statistiques de visite. Cliquez ici pour plus d'informations