Opportunité murs- restaurant 175 m2

— Guecelard 72230 —
378 000 €
175 m² / 1 071 m²
4 pièces
jardin

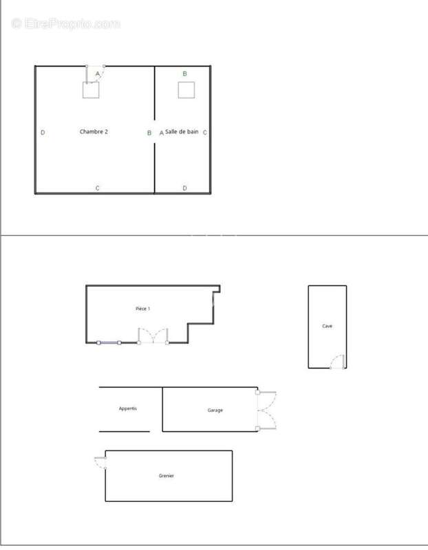
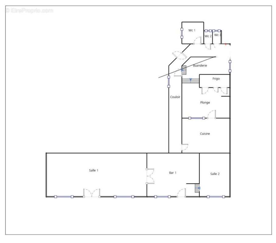
A vendre Murs , Une opportunité rare pour allier qualité de vie et réussite professionnelle ou investisseurs . 378 000 euros Murs ou 455 000 euros fonds de commerce et murs (même propriétaire) Estimation du fond de commerce 77 000 euros FAI . Murs Restaurant traditionnel, maison attenante, terrain 1071m2 situé sur un axe stratégique entre Le Mans et La Flèche. Attenante au restaurant, une maison d'environ 70 m² comprenant au rez-de-chaussée un séjour, une cuisine, un WC et une chambre, et à l'étage une chambre supplémentaire avec salle de bain. A l'extérieur, un terrain 1071m2 agréable accueille une dépendance à aménager, ainsi que deux carports et deux caves. Le fond de commerce : L'établissement, d'une superficie d'environ 175 m², dispose de deux salles accueillant 56 couverts. Le restaurant est ouvert tous les jours sauf le lundi et le dimanche soir (jours fériés ouverts). L'ensemble est vendu clé en main, incluant le fonds de commerce, le mobilier, la cuisine entièrement équipée et la licence IV. Aucun salarié n'est à reprendre : les deux gérants actuels assurent eux-mêmes le service. L'établissement bénéficie d'une excellente réputation.
Voir plus

Honoraires d'agence de 5% à la charge de l'acquéreur
Barème des honoraires
DPE
A
B
C
D
E
F
G
GES
A
B
C
D
E
F
G

Prêt immobilier

Vous souhaitez connaître votre capacité d’emprunt et trouver le meilleur crédit immobilier ?
Réaliser une simulation gratuite

Commerce à GUECELARD
Commerce à GUECELARD
Commerce à GUECELARD
Commerce à GUECELARD
Commerce à GUECELARD
Commerce à GUECELARD
Commerce à GUECELARD
Commerce à GUECELARD
Commerce à GUECELARD
Commerce à GUECELARD
Commerce à GUECELARD
Commerce à GUECELARD
Ce site est protégé par reCAPTCHA la Politique de confidentialité et les Conditions d’utilisation de Google s’appliquent.
Obtenir un prêt immobilier au meilleur taux ?

En poursuivant votre navigation sans modifier vos paramètres, vous acceptez l'utilisation de cookies susceptibles de réaliser des statistiques de visite. Cliquez ici pour plus d'informations