Bénéficiez des services de nos partenaires locaux soigneusement sélectionnés
pour vous accompagner dans votre parcours d'achat immobilier

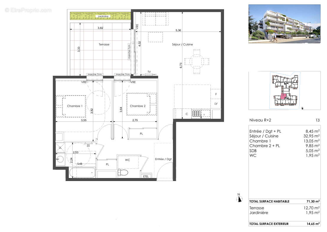
Terrasse plein ouest. élégant t3 dans résidence haut de gamme. quartier de la corniche

— Sete 34200 —
399 900 €
71 m²
3 pièces
parkingbalcon/terrasseascenseur

Nos partenaires locaux
En bord de mer, au sud du Mont Saint-Clair. Dans une résidence haut de gamme à deux pas des plages. Cela répond-il à vos attentes ?
Découvrons le. T3 de plus de 71 m² avec terrasse exposée Ouest. La pièce de vie conviviale se compose d'un salon spacieux et d'une cuisine ouverte, formant un espace harmonieux et chaleureux. La terrasse, exposée plein ouest, constitue un véritable prolongement de l'intérieur : un lieu idéal pour lire, déjeuner ou simplement profiter de l'air marin. Côté nuit, vous trouverez deux chambres confortables et une salle d'eau bien agencée, alliant praticité et modernité. En plus de ses atouts intérieurs, cet appartement bénéficie de deux places de parkings en sous-sol. A proximité de toutes les commodités et des lignes de bus qui vous permettront de rejoindre rapidement le centre-ville.
Cet appartement répond-il à vos attentes en termes de superficie et de style ? N'hésitez pas à prendre contact avec moi, je serai ravi de vous accompagner dans votre projet. Prix de vente : 399 900 euros (honoraires à la charge du vendeur).
Me contacter pour plus d'informations, plans (parkings, plan de masse ) et notice descriptive complète sur demande. Photos non contractuelles, DPE non requis. Selon l'article L.561.5 du Code Monétaire et Financier, pour l'organisation de la visite, la présentation d'une pièce d'identité vous sera demandée. Pour visiter et vous accompagner dans votre projet, contactez Michel HORNECKER, au [Coordonnées masquées] ou par courriel à [Coordonnées masquées] Cette présente annonce a été rédigée sous la responsabilité éditoriale de Michel HORNECKER agissant sous le statut d'agent commercial immatriculé au RSAC BEZIERS 824 253 710 spécialisé en vente du neuf , auprès de la SAS PROPRIETES PRIVEES, Réseau national immobilier, au capital de 40000 euros, 44 ALLÉE DES CINQ CONTINENTS - ZAC LE CHÊNE FERRÉ, 44120 VERTOU, RCS Nantes n° 487 624 777 00040, Carte professionnelle T et G n° CPI 44[Coordonnées masquées]10 388 CCI Nantes-Saint Nazaire. Garantie GALIAN - 89 rue de la Boétie, 75008 Paris Mandat réf : 374607 - Le professionnel garantit et sécurise votre projet immobilier. Michel HORNECKER (EI) Agent Commercial - Numéro RSAC : BEZIERS 824 253 710 Les informations sur les risques auxquels ce bien est exposé sont disponibles sur le site Géorisques : www.georisques.gouv.fr
Copropriété de 255 lots - dont 108 lots habitation. ().

Charges annuelles : 1 euros.
Michel HORNECKER (EI) Agent Commercial - Numéro RSAC : BEZIERS 493044283 - .
Voir plus

Référence: 424456HKM
Bien en copropriété. Nombre de lots : 255.
Honoraires à la charge du vendeur.

Prêt immobilier

Vous souhaitez connaître votre capacité d’emprunt et trouver le meilleur crédit immobilier ?
Réaliser une simulation gratuite

Appartement à SETE
Appartement à SETE
Appartement à SETE
Appartement à SETE
Appartement à SETE
Appartement à SETE
Appartement à SETE
Ce site est protégé par reCAPTCHA la Politique de confidentialité et les Conditions d’utilisation de Google s’appliquent.
Obtenir un prêt immobilier au meilleur taux ?

En poursuivant votre navigation sans modifier vos paramètres, vous acceptez l'utilisation de cookies susceptibles de réaliser des statistiques de visite. Cliquez ici pour plus d'informations