Bénéficiez des services de nos partenaires locaux soigneusement sélectionnés
pour vous accompagner dans votre parcours d'achat immobilier

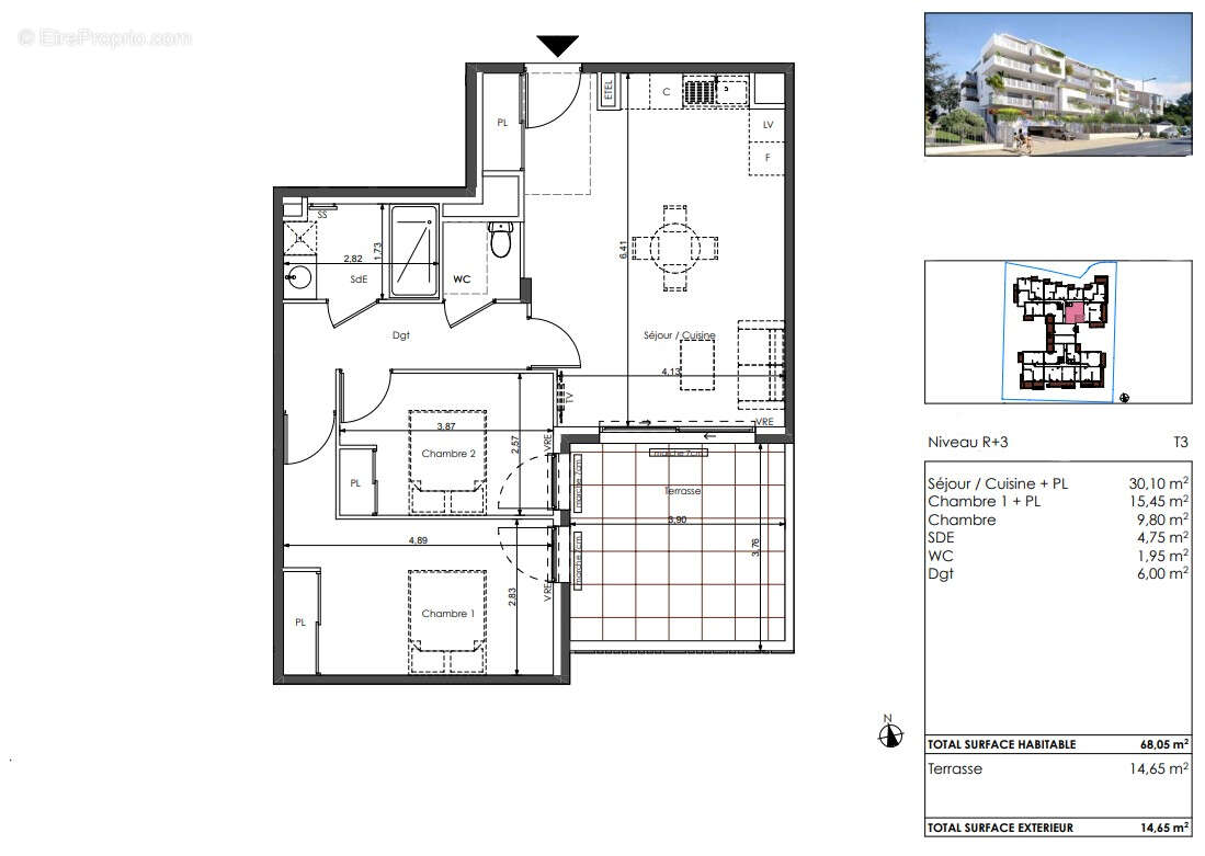
Corniche mer. appartement t3, terrasse exposition sud

— Sete 34200 —
409 900 €
68 m²
3 pièces
parkingbalcon/terrasseascenseur

Nos partenaires locaux
Résidence située au sud en aval du Mont Saint Clair en face de la Méditerranée. T3 lumineux de 68 m², et prolongé sur une terrasse exposée Sud. Un agencement agréable de plain pied pour la partie habitable avec un spacieux séjour, et un espace nuit composé de 2 chambres avec rangement ainsi qu'une salle d'eau équipée. Accès entièrement sécurisé. 1 place de parking privative en sous-sol.
A quelques mètres de la plage dans le quartier prisé de la Corniche. Proche du théâtre de la mer et de l'Espace Georges BRASSENS. Ne tardez pas à prendre des renseignements.
Prix de vente : 409 900 euros (honoraires à la charge du vendeur).
Me contacter pour plus d'informations, plans (parkings, plan de masse ) et notice descriptive complète sur demande. Photos non contractuelles, DPE non requis.
Selon l'article L.561.5 du Code Monétaire et Financier, pour l'organisation de la visite, la présentation d'une pièce d'identité vous sera demandée.
Pour visiter et vous accompagner dans votre projet, contactez Michel HORNECKER, au [Coordonnées masquées] ou par courriel à [Coordonnées masquées]
Cette présente annonce a été rédigée sous la responsabilité éditoriale de Michel HORNECKER agissant sous le statut d'agent commercial immatriculé au RSAC BEZIERS 824 253 710 spécialisé en cession de fonds de commerces , auprès de la SAS PROPRIETES PRIVEES, Réseau national immobilier, au capital de 40000 euros, 44 ALLÉE DES CINQ CONTINENTS - ZAC LE CHÊNE FERRÉ, 44120 VERTOU, RCS Nantes n° 487 624 777 00040, Carte professionnelle T et G n° CPI 44[Coordonnées masquées]10 388 CCI Nantes-Saint Nazaire. Garantie GALIAN - 89 rue de la Boétie, 75008 Paris
Mandat réf : 365530 - Le professionnel garantit et sécurise votre projet immobilier.
Michel HORNECKER (EI) Agent Commercial - Numéro RSAC : BEZIERS 824 253 710
Les informations sur les risques auxquels ce bien est exposé sont disponibles sur le site Géorisques : www.georisques.gouv.fr
Copropriété de 255 lots - dont 108 lots habitation. ().

Charges annuelles : 1 euros.
Michel HORNECKER (EI) Agent Commercial - Numéro RSAC : BEZIERS 493044283 - .
Voir plus

Référence: 424463HKM
Bien en copropriété. Nombre de lots : 255.
Honoraires à la charge du vendeur.

Prêt immobilier

Vous souhaitez connaître votre capacité d’emprunt et trouver le meilleur crédit immobilier ?
Réaliser une simulation gratuite

Appartement à SETE
Appartement à SETE
Appartement à SETE
Appartement à SETE
Appartement à SETE
Appartement à SETE
Appartement à SETE
Ce site est protégé par reCAPTCHA la Politique de confidentialité et les Conditions d’utilisation de Google s’appliquent.
Obtenir un prêt immobilier au meilleur taux ?

En poursuivant votre navigation sans modifier vos paramètres, vous acceptez l'utilisation de cookies susceptibles de réaliser des statistiques de visite. Cliquez ici pour plus d'informations