Bénéficiez des services de nos partenaires locaux soigneusement sélectionnés
pour vous accompagner dans votre parcours d'achat immobilier

Exclusivité proche négresco et promenade des anglais

— Nice 06000 —
1 335 000 €
145 m²
4 pièces
balcon/terrasse

Nos partenaires locaux
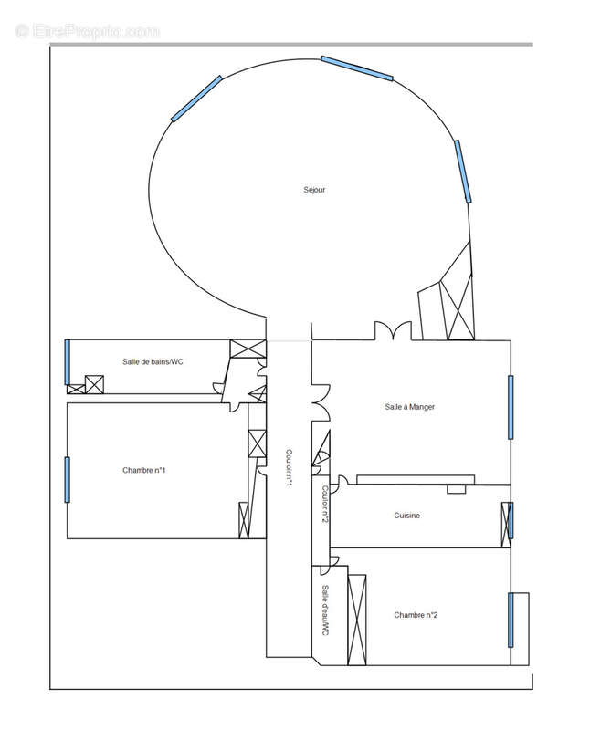
Carré d’or, rare dans un immeuble Haussmannien, appartement d’exception en étage élevé avec parquet en chêne massif, boiseries et cheminées d’origine. Très lumineux, ce vaste 4 pièces de 130 M2 Carrez dispose d’un salon en rotonde avec salle à manger attenante, d’une cuisine indépendante équipée et de deux chambres avec salle de bain et balcon, dont une suite parentale.

PHOTOS DU PROJET D'AMÉNAGEMENT / NON CONTRACTUELLE / CHIFFRAGE DES TRAVAUX EFFECTUÉS / (Appartement en bon état général)

Vendu avec 1 caves

Possibilité d’acquérir en sus 1 ou 2 box fermés

Coup de coeur assuré AURUS IMMO
Voir plus

Référence: 11
Barème des honoraires
DPE
A
B
C
D
E
F
G
GES
A
B
C
D
E
F
G

Prêt immobilier

Vous souhaitez connaître votre capacité d’emprunt et trouver le meilleur crédit immobilier ?
Réaliser une simulation gratuite

Appartement à NICE
Appartement à NICE
Appartement à NICE
Appartement à NICE
Appartement à NICE
Appartement à NICE
Appartement à NICE
Appartement à NICE
Appartement à NICE
Appartement à NICE
Appartement à NICE
Appartement à NICE
Appartement à NICE
Appartement à NICE
Appartement à NICE
Appartement à NICE
Appartement à NICE
Appartement à NICE
Appartement à NICE
Appartement à NICE
Appartement à NICE
Appartement à NICE
Appartement à NICE
Appartement à NICE
Appartement à NICE
Appartement à NICE
Appartement à NICE
Appartement à NICE
Appartement à NICE
Appartement à NICE
Appartement à NICE
Appartement à NICE
Ce site est protégé par reCAPTCHA la Politique de confidentialité et les Conditions d’utilisation de Google s’appliquent.
Obtenir un prêt immobilier au meilleur taux ?

En poursuivant votre navigation sans modifier vos paramètres, vous acceptez l'utilisation de cookies susceptibles de réaliser des statistiques de visite. Cliquez ici pour plus d'informations