Bénéficiez des services de nos partenaires locaux soigneusement sélectionnés
pour vous accompagner dans votre parcours d'achat immobilier

Appartement f4 99,29 m2 toul 54200

— Toul 54200 —
130 000 €
100 m²
4 pièces

Nos partenaires locaux
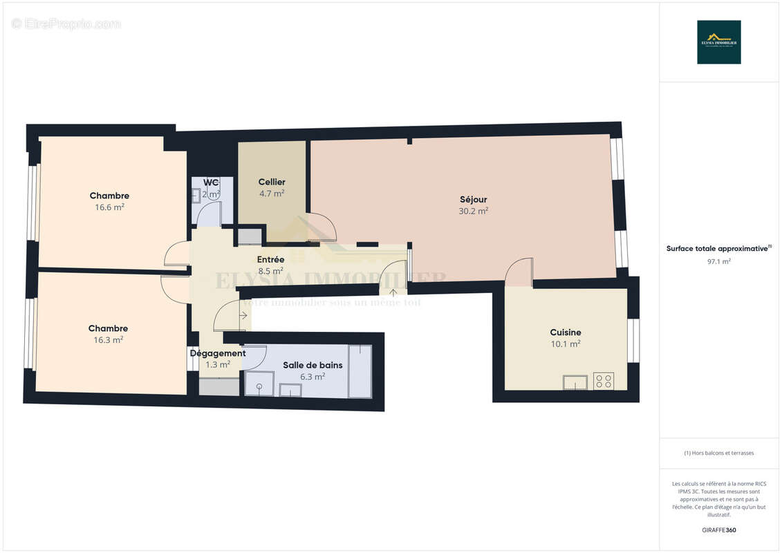
Elysia Immobilier vous présente, dans le centre historique de la commune de Toul, à proximité immédiate de toutes commodités, cet appartement F4 de 99,29 m2 carrez.

Situé au 1er étage d'une petite copropriété bien entretenue de 4 lots principaux, il se compose d'une entrée desservant un lumineux salon-séjour de 30,31 m2, une cuisine indépendante ainsi qu'un cellier. Sur ce même niveau, vous découvrirez deux chambres spacieuses de 16,44 m2 et 17,08 m2, une salle de bains et un toilette séparé. De nombreux espaces de rangement complètent l'ensemble.

Une cave privative est à votre disposition en sous-sol.

Syndic bénévole, faibles charges de copropriété.

Bien que quelques travaux de rafraîchissement soient prévoir, cet appartement offre de joli volume et un potentiel intéressant qui ne demande qu'à être exploité !

Belle opportunité pour une première acquisition ou un investissement locatif.

Devis cuisine disponible sur demande - Un projet réalisé par CUISINELLA à Dommartin-lès-Toul.

Pour plus d'informations, contactez votre agence Elysia Immobilier.

Les informations sur les risques auxquels ce bien est exposé sont disponibles sur le site Géorisques : 'www.georisques.gouv.fr'.
Voir plus

Référence: 37
Bien en copropriété. Nombre de lots : 4. Charges de copropriété : 492 €.
Honoraires à la charge du vendeur.
Barème des honoraires
DPE
A
B
C
D
E
F
G
GES
A
B
C
D
E
F
G

Prêt immobilier

Vous souhaitez connaître votre capacité d’emprunt et trouver le meilleur crédit immobilier ?
Réaliser une simulation gratuite

Appartement à TOUL
Appartement à TOUL
Appartement à TOUL
Appartement à TOUL
Appartement à TOUL
Appartement à TOUL
Appartement à TOUL
Appartement à TOUL
Appartement à TOUL
Appartement à TOUL
Appartement à TOUL
Appartement à TOUL
Appartement à TOUL
Appartement à TOUL
Appartement à TOUL
Appartement à TOUL
Ce site est protégé par reCAPTCHA la Politique de confidentialité et les Conditions d’utilisation de Google s’appliquent.
Obtenir un prêt immobilier au meilleur taux ?

En poursuivant votre navigation sans modifier vos paramètres, vous acceptez l'utilisation de cookies susceptibles de réaliser des statistiques de visite. Cliquez ici pour plus d'informations