Bénéficiez des services de nos partenaires locaux soigneusement sélectionnés
pour vous accompagner dans votre parcours d'achat immobilier

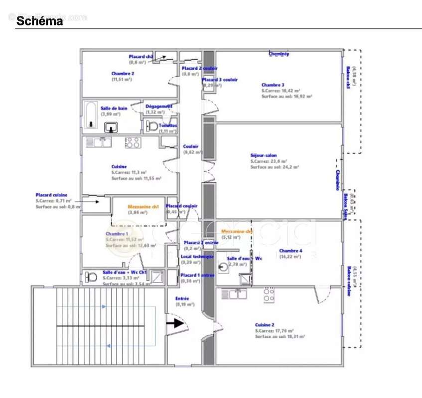
Plateau de 140 m2, cannes centre

— Cannes 06400 —
645 000 €
140 m²
6 pièces
balcon/terrasse

Nos partenaires locaux
Venez découvrir cet appartement situé rue Georges Clemenceau à Cannes.

La vente vise 1 lot. Plateau de 140 m2 au 3e étage divisé en 3 appartements. L'assemblée générale à autorisé la division officielle.

Un couloir d'environ 5 m2
Un studio loué (bientôt libre)
Un deux pièces libre avec balcon
Un trois pièces libres avec aperçu mer et balcon

Les appartements étaient loués depuis plusieurs années, aucun mur n'a été cassé.

Le ravalement est déjà voté et payé.

Possibilité de faire voter favorablement l'ascenseur en assemblée générale.

Les informations sur les risques auxquels ce bien est exposé sont disponibles sur le site Géorisques : georisques.gouv.fr
Voir plus

Référence: 85128893
DPE
A
B
C
D
E
F
G
GES
A
B
C
D
E
F
G

Prêt immobilier

Vous souhaitez connaître votre capacité d’emprunt et trouver le meilleur crédit immobilier ?
Réaliser une simulation gratuite

Appartement à CANNES
Appartement à CANNES
Appartement à CANNES
Appartement à CANNES
Appartement à CANNES
Appartement à CANNES
Appartement à CANNES
Appartement à CANNES
Appartement à CANNES
Appartement à CANNES
Appartement à CANNES
Appartement à CANNES
Appartement à CANNES
Appartement à CANNES
Ce site est protégé par reCAPTCHA la Politique de confidentialité et les Conditions d’utilisation de Google s’appliquent.
Obtenir un prêt immobilier au meilleur taux ?

En poursuivant votre navigation sans modifier vos paramètres, vous acceptez l'utilisation de cookies susceptibles de réaliser des statistiques de visite. Cliquez ici pour plus d'informations