Bénéficiez des services de nos partenaires locaux soigneusement sélectionnés
pour vous accompagner dans votre parcours d'achat immobilier

Maison 120m² à la murette

— La Murette 38140 —
145 000 €
120 m² / 600 m²
4 pièces
jardin

Nos partenaires locaux
Vous recherchez une maison située sur La Murette à aménager et rénover totalement, ERA L'IMMOBILIERE DU LAC vous la propose à la vente en Exclusivité.
Après rénovation, vous aurez un petit bijou avec une vue entièrement dégagée. Nous avons des partenaires sérieux à vous proposer si besoin.
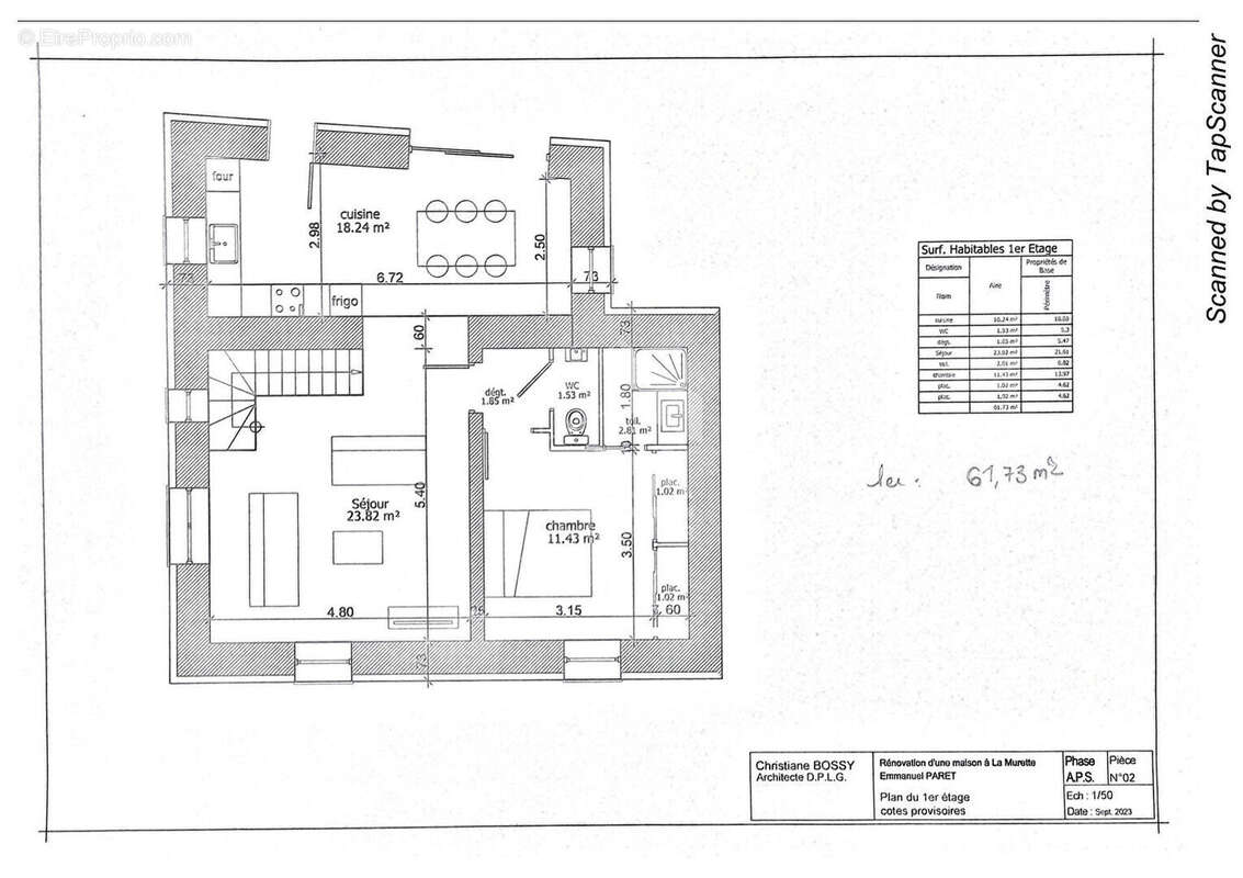
Vous pourrez l'aménager suivant vos goûts et vos besoins pour une surface habitable de 120m², sur une jolie parcelle de 600m² avec une source partagée.

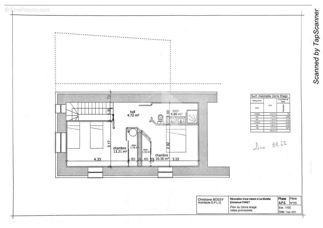
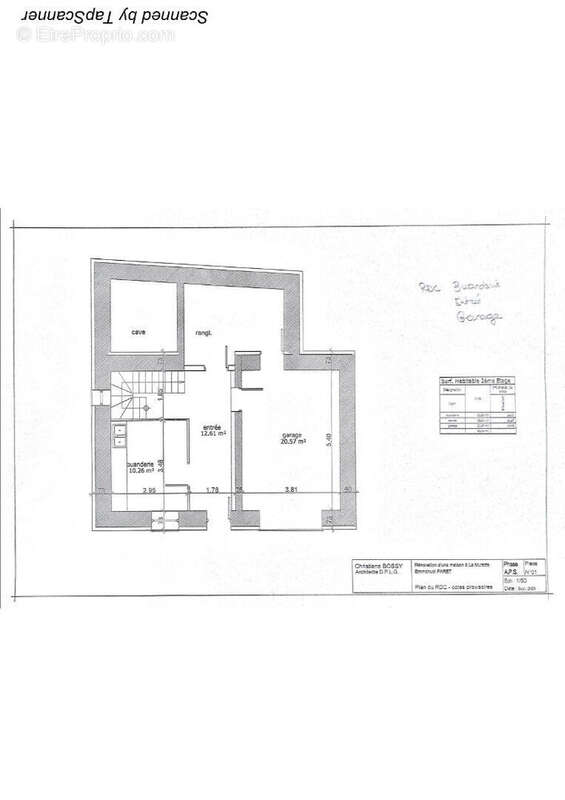
Découvrez un exemple d'aménagement (en photo) : au rez-de-chaussée une entrée, un garage, une buanderie, une cave, au 1 étage l'espace de vie avec suite parentale et w-c, au 2ème étage 2 autres chambres avec leur salle d'eau ou salle de bains et un w-c.
Assainissement : tout à l'égout, source à partager sur le terrain.
Pour vous accompagner dans ce beau projet contactez moi au [Coordonnées masquées] Romain PETRIGNET
Voir plus

Référence: 366

Prêt immobilier

Vous souhaitez connaître votre capacité d’emprunt et trouver le meilleur crédit immobilier ?
Réaliser une simulation gratuite

Maison à LA MURETTE
Maison à LA MURETTE
Maison à LA MURETTE
Maison à LA MURETTE
Maison à LA MURETTE
Maison à LA MURETTE
Maison à LA MURETTE
Maison à LA MURETTE
Maison à LA MURETTE
Maison à LA MURETTE
Maison à LA MURETTE
Maison à LA MURETTE
Maison à LA MURETTE
Maison à LA MURETTE
Maison à LA MURETTE
Maison à LA MURETTE
Maison à LA MURETTE
Maison à LA MURETTE
Ce site est protégé par reCAPTCHA la Politique de confidentialité et les Conditions d’utilisation de Google s’appliquent.
Obtenir un prêt immobilier au meilleur taux ?

En poursuivant votre navigation sans modifier vos paramètres, vous acceptez l'utilisation de cookies susceptibles de réaliser des statistiques de visite. Cliquez ici pour plus d'informations