Bénéficiez des services de nos partenaires locaux soigneusement sélectionnés
pour vous accompagner dans votre parcours d'achat immobilier

Appartement 52m² à luce

— Luce 28110 —
119 500 €
52 m²
2 pièces
parkingbalcon/terrasseascenseur

Nos partenaires locaux
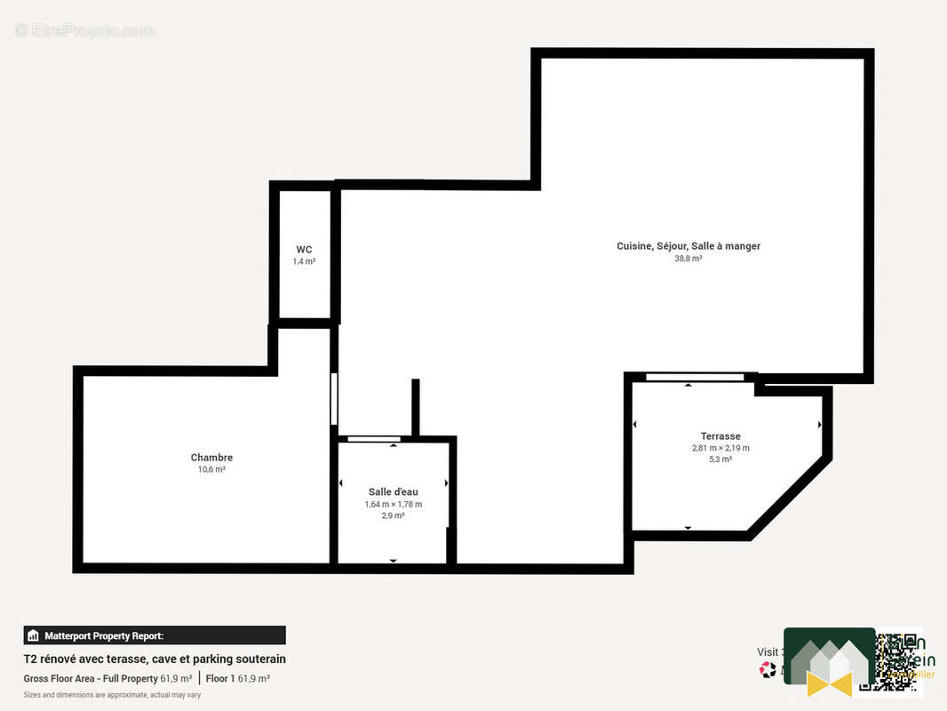
T2 SANS TRAVAUX AVEC CAVE ET PARKING SOUTERRAIN - LUCE (28220)

Bienvenue dans votre futur chez vous ! À 1km de la place des épars, nous avons le plaisir de vous présenter un appartement entièrement rafraichit avec une vue belle terasse, cave et stationnement en sous terrain.


Situé au RDC, cet appartement est décomposé comme suit :

- Une belle entrée avec placard
- Séjour cuisine de 38m²
- Chambre
- Salle d'eau
- WC indépendant

Côté confort

- Terrasse couverte
- Place de parking privative en souterrain.
- Cave privative
- Aucun travaux à prévoir

À propos de la copropriété

Résidence bien tenue, avec parties communes en bon état. Les charges mensuelles de 190€ intègrent les services suivants :
- Chauffage collectif
- Eau chaude et froide de l'appartement
- Entretien des parties communes intérieures et extérieures
- Ascenseur

L'emplacement :

Vous pourrez bénéficier de tout les commerces et loisirs de la ville ainsi que le réseau filibus au pied de l'appartement. La place des épars sera à 1km (15 minutes à pieds et 5 minutes à vélo) et la gare à seulement 1,5km (20 minutes à pied 7 minutes à vélo)


N'hésitez pas à contacter votre agent au Noeud Pap' pour obtenir plus d'informations et visiter cet appartement ! ?

Honoraires à la charge du vendeur. Dans une copropriété de 177 lots. Quote-part moyenne du budget prévisionnel 2 265 €/an. Aucune procédure n'est en cours. Classe énergie D, Classe climat D Montant moyen estimé des dépenses annuelles d'énergie pour un usage standard, établi à partir des prix de l'énergie de l'année 2021 : entre 520.00 et 790.00 €. Les informations sur les risques auxquels ce bien est exposé sont disponibles sur le site Géorisques : georisques.gouv.fr.

Votre conseiller Bien Serein immobilier : Charly CHESNEAU
Agent commercial (Entreprise individuelle)
RSAC 990 102 493
Voir plus

Référence: 732-BIENSEREIN28
Bien en copropriété. Nombre de lots : 177. Charges de copropriété : 2265 €.
Honoraires à la charge du vendeur.
Barème des honoraires
DPE
A
B
C
D
E
F
G
GES
A
B
C
D
E
F
G

Prêt immobilier

Vous souhaitez connaître votre capacité d’emprunt et trouver le meilleur crédit immobilier ?
Réaliser une simulation gratuite

Séjour  - Appartement à LUCE
Séjour
Appartement à LUCE
Appartement à LUCE
Cuisine ouverte - Appartement à LUCE
Cuisine ouverte
Chambre  - Appartement à LUCE
Chambre
Salle d'eau - Appartement à LUCE
Salle d'eau
Appartement à LUCE
Appartement à LUCE
Ce site est protégé par reCAPTCHA la Politique de confidentialité et les Conditions d’utilisation de Google s’appliquent.
Obtenir un prêt immobilier au meilleur taux ?

En poursuivant votre navigation sans modifier vos paramètres, vous acceptez l'utilisation de cookies susceptibles de réaliser des statistiques de visite. Cliquez ici pour plus d'informations