Bénéficiez des services de nos partenaires locaux soigneusement sélectionnés
pour vous accompagner dans votre parcours d'achat immobilier

Commerce 121m² à courbevoie

— Courbevoie 92400 —
195 000 €
121 m²

Nos partenaires locaux
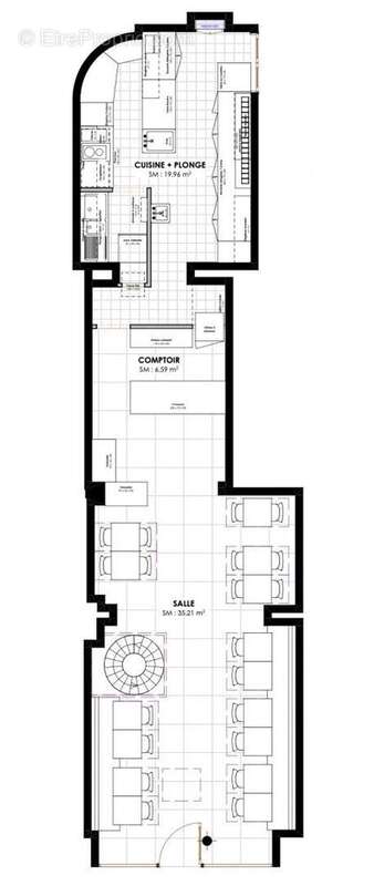
Iad France - Julien Bernardini ([Coordonnées masquées]) vous propose : Fonds de commerce / Droit au bail d'un local commercial pour restauration / restauration rapide de 120 m² environ à Courbevoie :

Top emplacement, Zone commerçante
Tram 2 - Ligne L : Faubourg de l'Arche - Courbevoie. / .

Bail jusqu'en 2032
Destination : Restauration sur place, à emporter et en livraison.
- Surface : 121 m² environ,
- RDC : 61 m² environ, S / SOL : 60 m² environ
- Loyer : 37 648 ¤ / an soit 3 137 ¤ / mois,
- Charges : 7 600 ¤ / an soit 633 ¤ / mois. / .

Emplacement N°1, rue très commerçante. Animée midi et soir
Local entièrement refait à neuf en 2023 (aménagements et équipements),
IDEAL Tous types de restauration rapide. / .
AFFAIRE CLE EN MAIN - A NE PAS MANQUER ! . / . Photos non contractuelles. / .

Information d'affichage énergétique sur le bien associé à cette annonce : DPE NS indice 0 et GES NS indice 0. La présente annonce immobilière a été rédigée sous la responsabilité éditoriale de M. Julien Bernardini (ID 79749), Agent Commercial mandataire en immobilier immatriculé au Registre Spécial des Agents Commerciaux (RSAC) du Tribunal de Commerce de VERSAILLES sous le numéro 499641314
Retrouvez tous nos biens sur notre site internet. www.iadfrance.fr.
Informations LOI ALUR :
Honoraires charge vendeur. (gedeon_6727_31378052)
Voir plus

Référence: 1780987
Honoraires à la charge du vendeur.

Prêt immobilier

Vous souhaitez connaître votre capacité d’emprunt et trouver le meilleur crédit immobilier ?
Réaliser une simulation gratuite

Photo 1 - Commerce à COURBEVOIE
Photo 1
Photo 2 - Commerce à COURBEVOIE
Photo 2
Photo 3 - Commerce à COURBEVOIE
Photo 3
Ce site est protégé par reCAPTCHA la Politique de confidentialité et les Conditions d’utilisation de Google s’appliquent.
Obtenir un prêt immobilier au meilleur taux ?

En poursuivant votre navigation sans modifier vos paramètres, vous acceptez l'utilisation de cookies susceptibles de réaliser des statistiques de visite. Cliquez ici pour plus d'informations