Bénéficiez des services de nos partenaires locaux soigneusement sélectionnés
pour vous accompagner dans votre parcours d'achat immobilier

Appartement 310m² à salignac

— Salignac 33240 —
286 000 €
310 m²
parking

Nos partenaires locaux
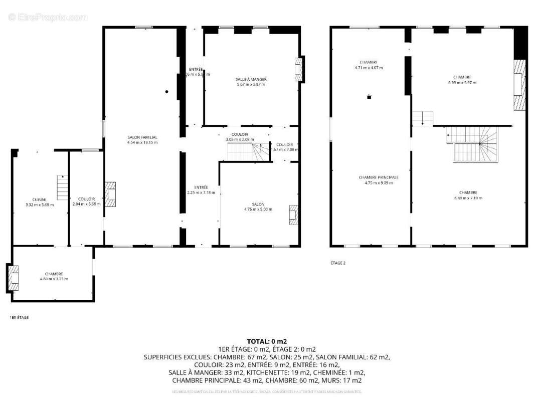
Iad France - Cedric Blanchard vous propose : Idéal investisseurs ! À seulement 3 minutes de Saint-André-de-Cubzac, à proximité du centre commercial La Garosse, des commerces et de l'accès N10, découvrez cet immeuble en pierre en R + 1 à rénover offrant un excellent potentiel locatif.

Le chantier est propre et un plan d'aménagement complet est disponible, prévoyant la création de quatre logements indépendants : un T4 de 101 m², un T3 de 75 m² ainsi que deux T2 de 65 m² et 50 m².

Chaque logement dispose d'une place de stationnement privative (non attenante).

Ce bien représente une réelle opportunité d'investissement avec un fort potentiel de valorisation après travaux.

Honoraires d'agence à la charge du vendeur.
Bien non soumis au DPE. Les informations sur les risques auxquels ce bien est exposé, y compris l'obligation légale de débroussaillement, sont disponibles sur le site Géorisques : http://www.georisques.gouv.fr.
La présente annonce immobilière a été rédigée sous la responsabilité éditoriale de M Cedric Blanchard mandataire indépendant en immobilier (sans détention de fonds), agent commercial de la SAS I@D France immatriculé au RSAC de Bordeaux sous le numéro 899053334, titulaire de la carte de démarchage immobilier pour le compte de la société I@D France SAS.
Informations LOI ALUR :
Honoraires charge vendeur. (gedeon_6727_31994305)
Voir plus

Référence: 1862356
Honoraires à la charge du vendeur.

Prêt immobilier

Vous souhaitez connaître votre capacité d’emprunt et trouver le meilleur crédit immobilier ?
Réaliser une simulation gratuite

Photo 1 - Appartement à SALIGNAC
Photo 1
Photo 2 - Appartement à SALIGNAC
Photo 2
Photo 3 - Appartement à SALIGNAC
Photo 3
Photo 4 - Appartement à SALIGNAC
Photo 4
Photo 5 - Appartement à SALIGNAC
Photo 5
Photo 6 - Appartement à SALIGNAC
Photo 6
Photo 7 - Appartement à SALIGNAC
Photo 7
Photo 8 - Appartement à SALIGNAC
Photo 8
Photo 9 - Appartement à SALIGNAC
Photo 9
Ce site est protégé par reCAPTCHA la Politique de confidentialité et les Conditions d’utilisation de Google s’appliquent.
Obtenir un prêt immobilier au meilleur taux ?

En poursuivant votre navigation sans modifier vos paramètres, vous acceptez l'utilisation de cookies susceptibles de réaliser des statistiques de visite. Cliquez ici pour plus d'informations