Bénéficiez des services de nos partenaires locaux soigneusement sélectionnés
pour vous accompagner dans votre parcours d'achat immobilier

Saumur, quartier gare - université, appartement t2 avec stationnement, terrasse et jardin privatif de 130m²

— Saumur 49400 —
88 800 €
40 m²
2 pièces
parkingjardin

Nos partenaires locaux
A 50m de l'Université de Saumur, 300m de la Gare, proche des commerces, dans une rue calme.

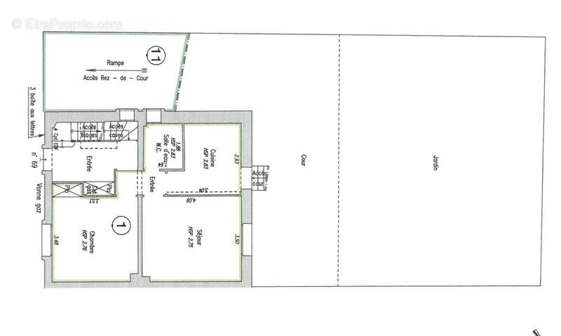
RARE, Appartement T2 avec travaux d'environ 40m² en rez de chaussée avec jardin privatif clos de murs d'environ 130m² se compose:

Entrée avec porte sécurisée 5 points accessible par le hall de l'immeuble, dégagement, cuisine aménagée ouverte sur séjour avec accès direct sur jardin, salle d'eau avec w.c, chambre avec placard de rangement.

En sous-sol (HSP 2,06m), accessible par le jardin et par les parties communes de l'immeuble espace aménagé (surface utile) de 26m² en 2 pièces, avec buanderie et évier.

Possibilité de développement de la surface habitable à 66m² en intégrant le sous-sol.

Défiscalisation possible par travaux d'isolation, de modernisation, et de décoration.
Double vitrage et électricité correcte.

Faibles charges de copro. (syndic bénévole): 17,75€/mois.

Idéal grand âge ou invest. locatif à double rentabilité: étudiante (Septembre-Juin) et meublé de tourisme (Juillet-Août). Nombre de lots de la copropriété : 7, Montant moyen annuel de la quote-part de charges (budget prévisionnel)(Ass. immeuble + électricité PC) : 213€ soit 17€ par mois, avec Syndic Bénévole. Les honoraires d'agence sont à la charge de l'acquéreur, soit 11,00% TTC du prix hors honoraires.
Logement à consommation énergétique excessive : classe F
Les informations sur les risques auxquels ce bien est exposé sont disponibles sur le site Géorisques : www. georisques. gouv. fr.

Réseau Immobilier CAPIFRANCE - Votre agent commercial (RSAC N°813 784 451 - Greffe de ANGERS) Alexandre BRUNEAU Entrepreneur Individuel [Coordonnées masquées] - Réf.924295
Voir plus

Référence: 340937559043
Bien en copropriété. Nombre de lots : 7. Charges de copropriété : 17 €.
DPE
A
B
C
D
E
F
G
GES
A
B
C
D
E
F
G

Prêt immobilier

Vous souhaitez connaître votre capacité d’emprunt et trouver le meilleur crédit immobilier ?
Réaliser une simulation gratuite

Appartement à SAUMUR
Appartement à SAUMUR
Appartement à SAUMUR
Appartement à SAUMUR
Appartement à SAUMUR
Appartement à SAUMUR
Appartement à SAUMUR
Appartement à SAUMUR
Appartement à SAUMUR
Ce site est protégé par reCAPTCHA la Politique de confidentialité et les Conditions d’utilisation de Google s’appliquent.
Obtenir un prêt immobilier au meilleur taux ?

En poursuivant votre navigation sans modifier vos paramètres, vous acceptez l'utilisation de cookies susceptibles de réaliser des statistiques de visite. Cliquez ici pour plus d'informations