Bénéficiez des services de nos partenaires locaux soigneusement sélectionnés
pour vous accompagner dans votre parcours d'achat immobilier

Villa d'architecte 205 m² 5 chambres possibilités 6

— Coutras 33230 —
312 000 €
205 m² / 1 100 m²
7 pièces
piscine

Nos partenaires locaux
Revenue à la vente, à ne plus rater .

À 8 km de Coutras, découvrez cette propriété avec de belles prestations. Implantée sur 1 100 m² de terrain clos, accessible par un chemin privé avec portail automatique, elle offre un cadre de vie au calme et résidentiel, proche commodités et accès Bordeaux/Libourne ( A89 ).

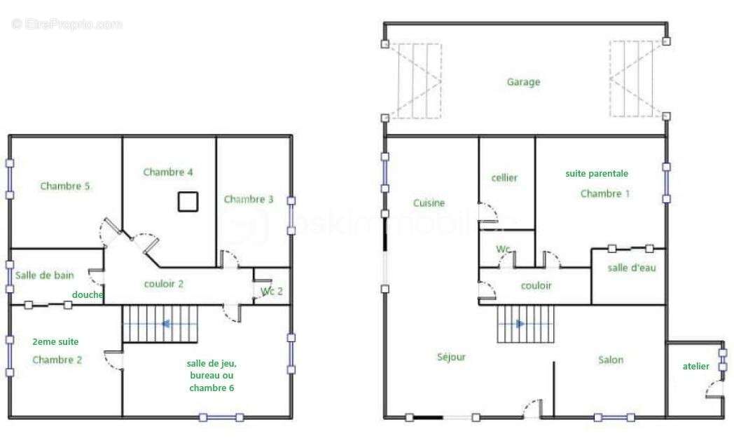
Rez-de-chaussée
Pièce de vie traversante 62 m² avec cuisine ouverte équipée
Suite parentale avec dressing + salle d'eau privative
Buanderie, WC séparé, atelier 10 m²

Étage
Suite parentale 19 m² avec salle de bain (baignoire + douche à l'italienne)
4 autres chambres, chacune avec accès à la salle d'eau commune
Grande pièce 35 m² (jeux, bureau, sport ou chambres sup.)
WC séparé

Extérieurs
Piscine 10 × 5 m avec plage en teck
2 belles terrasses dont 1 semi-couverte avec spots intégrés
Jardin paysagé, barbecue maçonné, bar en bois, éclairages extérieurs
Garage traversant 33 m²

Confort / performance Classe énergétique B

PAC air/air + 2 splits, poêle à pellets, chauffage au sol (thermostats par pièce)
Volets roulants alu, électricité aux normes, assainissement conforme, construction traditionnelle

Intérieur prêt à vivre ; une mise en peinture permettra simplement de personnaliser les ambiances selon vos goûts.

Saint-Médard-de-Guizières (33230)
205 m² habitables + garage 33 m²
5 chambres dont 2 suites parentales
Arnold LIEVAL – BSK Immobilier –

Cette annonce référence 306475 vous est présentée par votre agent commercial BSK Immobilier ARNOLD LIEVAL (EI) immatriculé au RSAC de NEVERS (58000) sous le numéro 33986885300054.

Prix du bien : 312 000,00 €
Les honoraires d'agence sont à la charge du vendeur.

A propos des performances énergétiques :
Date de réalisation du diagnostic énergétique : 21/11/2024
Score DPE : 98 kWhEP/m²/an
Score GES : 3 kgepCO2/m²/an
Montant estimé des dépenses annuelles d'énergie pour un usage standard : entre 1240.00 € et 1730.00 € par an. Prix moyens des énergies indexés sur l'année 2023 (abonnements compris).

Les informations sur les risques auxquels ce bien est exposé sont disponibles sur le site Géorisques : www.georisques.gouv.fr
Voir plus

Référence: 306475
Honoraires à la charge du vendeur.
DPE
A
B
C
D
E
F
G
GES
A
B
C
D
E
F
G

Prêt immobilier

Vous souhaitez connaître votre capacité d’emprunt et trouver le meilleur crédit immobilier ?
Réaliser une simulation gratuite

Maison à COUTRAS
Maison à COUTRAS
Maison à COUTRAS
Maison à COUTRAS
Maison à COUTRAS
Maison à COUTRAS
Maison à COUTRAS
Maison à COUTRAS
Maison à COUTRAS
Maison à COUTRAS
Maison à COUTRAS
Maison à COUTRAS
Maison à COUTRAS
Maison à COUTRAS
Maison à COUTRAS
Maison à COUTRAS
Maison à COUTRAS
Maison à COUTRAS
Maison à COUTRAS
Maison à COUTRAS
Ce site est protégé par reCAPTCHA la Politique de confidentialité et les Conditions d’utilisation de Google s’appliquent.
Obtenir un prêt immobilier au meilleur taux ?

En poursuivant votre navigation sans modifier vos paramètres, vous acceptez l'utilisation de cookies susceptibles de réaliser des statistiques de visite. Cliquez ici pour plus d'informations