Tarentaise (42660) maison de 2017 de130 m2, quatre chambres sur un terrain de 567 m²

— Tarentaise 42660 —
385 000 €
130 m² / 567 m²
5 pièces
parkingbalcon/terrassejardin

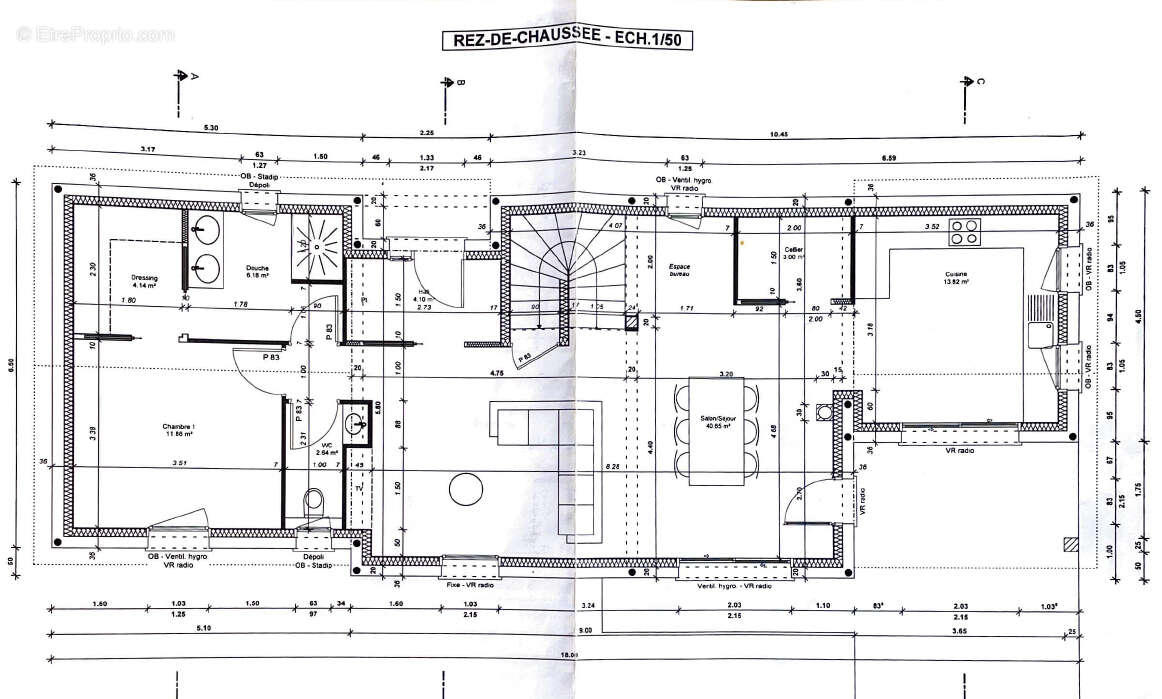
En exclusivité sur le village de Tarentaise (42600) au coeur du Parc naturel du Pilat, cette maison de 130 m² construite en 2017, offre un cadre de vie idéal alliant confort, modernité et praticité. Elle dispose également d'un vaste sous-sol de 110 m² et d'un terrain clos et arboré de 567 m². Le prix de vente HAI est de 385 000 euros.
Au rez-de-chaussée vous trouverez un hall d'entrée avec rangements, une suite parentale avec un dressing et une salle d'eau avec une douche à l'italienne. WC indépendant. La pièce de vie de 41 m² avec un coin bureau ouverte sur une cuisine entièrement équipée et aménagée avec son cellier avec un accès sur la terrasse.
L'étage est composé de trois chambres avec placards intégrés, d'une salle d'eau avec meuble double vasque et WC , idéal pour les enfants.
Le sous-sol de 110 m² peut stationner deux véhicules, il dispose d'un local technique pour la chaudière et une pièce buanderie carrelée avec douche et de nombreux rangements.
Extérieurs et équipements: Terrasse aménagée avec store électrique.
Fenêtres PVC double vitrage oscillo-battantes avec volets roulants électriques.
Chauffage au sol avec pompe à chaleur .
Poêle à bois dans la pièce de vie apportant chaleur et convivialité.
Taxe foncière 1 300 euros.
Ses atouts: Cette maison récente, conçue avec goût, se distingue par sa fonctionnalité et la qualité de ses prestations. Elle offre un cadre de vie idéal pour une famille recherchant confort, modernité et tranquillité, à proximité des commodités de Tarentaise et des espaces naturels du Pilat.
DPE : 102 Wh/m²/an B, GES : 3 kgCO2/m²/an B.
Montant estimé des dépenses annuelles d'énergie établi à partir des prix de l'énergie des années 2021, 2022, 2023 entre 900 euros et 1 280 euros par an.
Date de réalisation du diagnostic: 03/10/2025.
Les informations sur les risques auxquels ce bien est exposé sont disponibles sur le site Géorisques:
www.georisques.gouv.fr
Les honoraires sont à la charge du vendeur.
Veuillez noter que toutes les mesures sont approximatives, les informations sont fournies à titre indicatif seulement.
Pour visiter et vous accompagner dans votre projet contactez Patricia VEYRE o6 o5 26 o5 69 ou par courriel à [Coordonnées masquées] agissant sous le statut d'agent commercial indépendant inscrite au RSAC 379 954 423 SAINT ETIENNE Mandat réf: 3699PATY . Le professionnel garantit et sécurise votre projet immobilier. Achat, vente, estimation, valorisation immobilière, contactez Patricia VEYRE o6 o5 26 o5 69 votre Conseillère Immobilier à BOURG ARGENTAL et les villages alentours, ESTIMATION OFFERTE
SAS Agence immobilière de Saint-Genest-Malifaux au [Coordonnées masquées] concession PROPRIETES PRIVEES 4 rue du Velay 42660 St-Genest-Malifaux. Carte professionnelle CPI 42[Coordonnées masquées]10 412 CCI Lyon Métropole St Etienne Roanne RCS 450 309 422

Patricia VEYRE (EI) Agent Commercial - Numéro RSAC : 379954423 - .
Voir plus

Référence: 3700PATY
Honoraires à la charge du vendeur.
DPE
A
B
C
D
E
F
G
GES
A
B
C
D
E
F
G

Prêt immobilier

Vous souhaitez connaître votre capacité d’emprunt et trouver le meilleur crédit immobilier ?
Réaliser une simulation gratuite

Maison à TARENTAISE
Maison à TARENTAISE
Maison à TARENTAISE
Maison à TARENTAISE
Maison à TARENTAISE
Maison à TARENTAISE
Maison à TARENTAISE
Maison à TARENTAISE
Maison à TARENTAISE
Maison à TARENTAISE
Maison à TARENTAISE
Maison à TARENTAISE
Maison à TARENTAISE
Ce site est protégé par reCAPTCHA la Politique de confidentialité et les Conditions d’utilisation de Google s’appliquent.
Obtenir un prêt immobilier au meilleur taux ?

En poursuivant votre navigation sans modifier vos paramètres, vous acceptez l'utilisation de cookies susceptibles de réaliser des statistiques de visite. Cliquez ici pour plus d'informations