Bénéficiez des services de nos partenaires locaux soigneusement sélectionnés
pour vous accompagner dans votre parcours d'achat immobilier

Maison 9 pièces de 198 m2 en vente à douvaine

— Douvaine 74140 —
695 000 €
290 m² / 800 m²
9 pièces
parkingbalcon/terrassejardin

Nos partenaires locaux
Zefir vous propose à la vente cette charmante maison 9 pièces de 198m2 et 240m2 habitables, située à Douvaine.

Ce bien aménagé de la manière suivante :

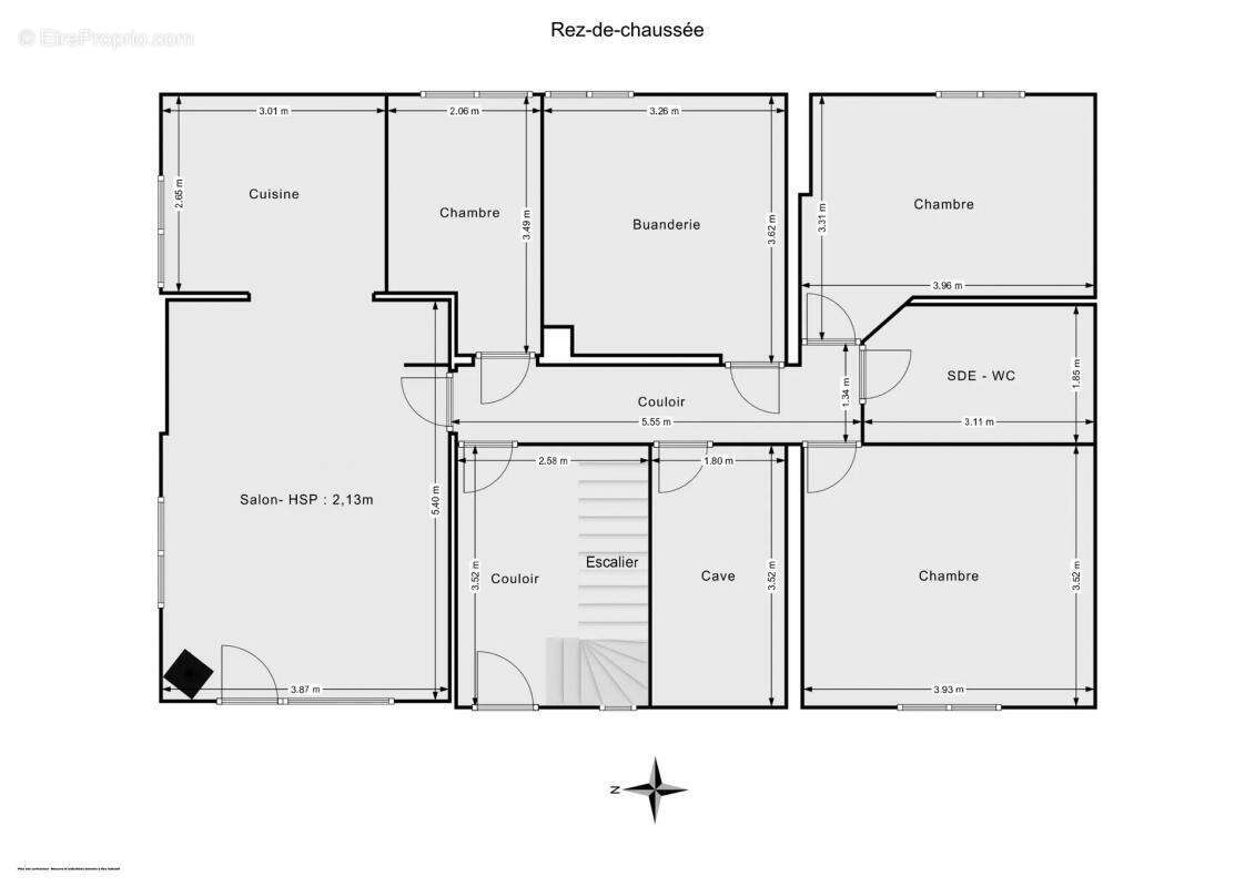
Au rez-de-chaussée :
- Un séjour spacieux,
- Deux chambres spacieuses
- Un bureau pouvant être aménagé en petite chambre,
- Une cuisine fermée et équipée,
- Une salle d'eau avec WC intégrée.

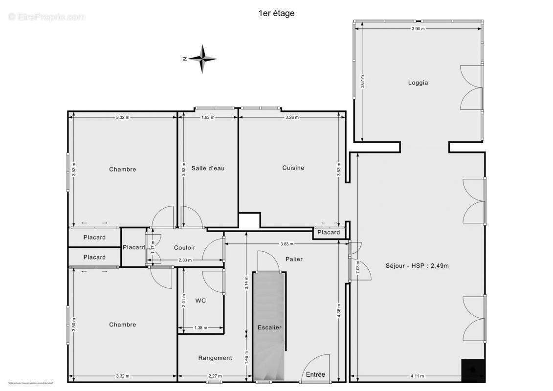
Au 1er étage :
- Un séjour spacieux,
- Une cuisine séparée et équipée,
- Deux chambres de taille confortable,
- Une salle d'eau,
- Un WC séparé.

Au 2ème étage :
- Une chambre spacieuse,
- Un grenier avec une grande capacité de rangement.

Atouts:

- Une cave pour vos stockages,
- Un espace vestiaire,
- Une véranda spacieuse,
- Des placards intégrés pour vos rangements,
- Calme et tranquillité,
- Possibilité de personnaliser l'aménagement intérieur,
- Potentiel d'extension,
- Bonne accessibilité.

Parce que la localisation ça compte aussi :

- Arrêt de bus Douvaine Mairie à 8 min à pied,
- École primaire et collège du Bas-Chablais à moins de 12 min à pied,
- Boulangerie, pharmacie, opticien et petite supérette à 7 min à pied,
- Parc communal et équipements sportifs à 9 min à pied,
- Zone commerçante du centre-ville de Douvaine à 6 min à pied.

Caractéristiques techniques :

- DPE : C,
- Taxe foncière : 1269€,
- Mode de chauffage : Électrique et Bois,
- Distribution eau : Électrique.

Les informations sur les risques auxquels ce bien est exposé sont disponibles sur le site Géorisques : (http://www.georisques.gouv.fr/)

Intéressés ? Contactez Zefir pour visiter ce bien.
Voir plus

Référence: b678c685-7f3d-4b73-9fa6-b5e113
Honoraires à la charge du vendeur.
DPE
A
B
C
D
E
F
G
GES
A
B
C
D
E
F
G

Prêt immobilier

Vous souhaitez connaître votre capacité d’emprunt et trouver le meilleur crédit immobilier ?
Réaliser une simulation gratuite

Maison à DOUVAINE
Maison à DOUVAINE
Maison à DOUVAINE
Maison à DOUVAINE
Maison à DOUVAINE
Maison à DOUVAINE
Maison à DOUVAINE
Maison à DOUVAINE
Maison à DOUVAINE
Maison à DOUVAINE
Maison à DOUVAINE
Maison à DOUVAINE
Maison à DOUVAINE
Maison à DOUVAINE
Maison à DOUVAINE
Maison à DOUVAINE
Ce site est protégé par reCAPTCHA la Politique de confidentialité et les Conditions d’utilisation de Google s’appliquent.
Obtenir un prêt immobilier au meilleur taux ?

En poursuivant votre navigation sans modifier vos paramètres, vous acceptez l'utilisation de cookies susceptibles de réaliser des statistiques de visite. Cliquez ici pour plus d'informations