Bénéficiez des services de nos partenaires locaux soigneusement sélectionnés
pour vous accompagner dans votre parcours d'achat immobilier

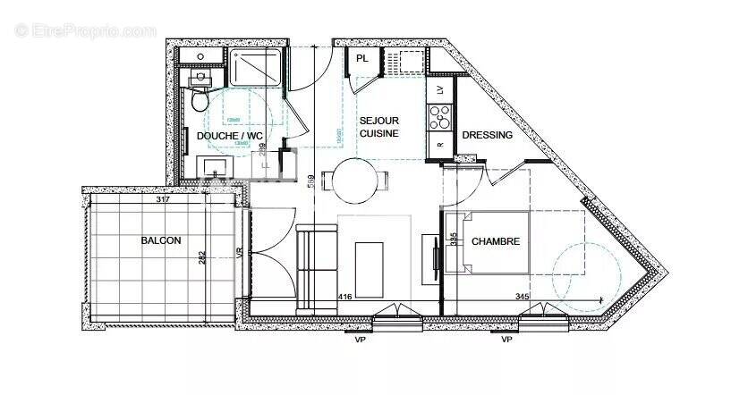
Appartement neuf 42 m² avec balcon

— Tarare 69170 —
150 000 €
42 m²
2 pièces
balcon/terrasse

Nos partenaires locaux
Uniquement chez Campagn'Immo !
Venez découvrir, en plein centre-ville à proximités de toutes commodités et transports en communs, votre futur appartement tout confort!
Dans une résidence neuve et lumineuse, cet appartement de 42 m², sera composé d'une chambre avec dressing, d'un séjour avec cuisine ouverte, d'une salle d'eau ainsi que d'un balcon.
Possibilité d'acquérir en sus une place de stationnement.
De nombreux autres lots sont disponibles. Contactez nous pour trouver votre bonheur!
Voir plus

Référence: 5379- A24
Barème des honoraires
Appartement à TARARE
Appartement à TARARE
Appartement à TARARE
Appartement à TARARE
Appartement à TARARE
Appartement à TARARE
Appartement à TARARE
Appartement à TARARE
Appartement à TARARE
Appartement à TARARE
Appartement à TARARE
Appartement à TARARE
Géorisques

Les informations sur les risques auxquels ce bien est exposé sont disponibles sur le site Géorisques : www.georisques.gouv.fr

Ce site est protégé par hCaptcha Politique de confidentialité et Conditions d’utilisation s’appliquent.

En poursuivant votre navigation sans modifier vos paramètres, vous acceptez l'utilisation de cookies susceptibles de réaliser des statistiques de visite. Cliquez ici pour plus d'informations