Bénéficiez des services de nos partenaires locaux soigneusement sélectionnés
pour vous accompagner dans votre parcours d'achat immobilier

Terrain 1269 m² à Dremil-Lafage

— Dremil-Lafage 31280 —
150 000 €
1 269 m²

Nos partenaires locaux
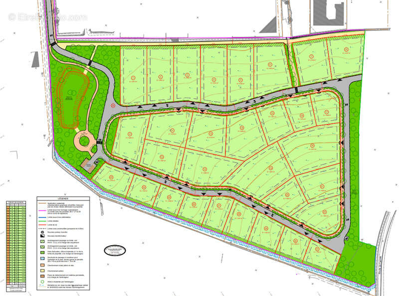
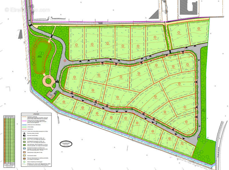
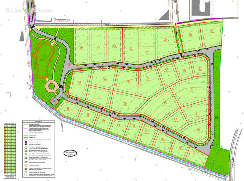
A VENDRE ! Terrains allant d’environ 1269m² à 2570 m² environ DREMIL LAFAGE Accès A68 à environ 18mn et A61 à environ 20mn ! Descriptif: A Drémil-Lafage, dans une zone d'activités, nous vous proposons plusieurs terrains industriels à vendre allant d’environ 1269m² à 2570 m² environ, avec possibilité de construction en VEFA (Vente en Etat Futur Achèvement) : nous consulter pour voir les conditions - Permis déposé et purgé de tous recours des tiers en date du 15/08/2023 - Régime : Locaux d’activité, Bureaux (pas d'usine ni d'entrepôt logistique) - Hauteur construction 12 m - Construction en limite 4 m min – Espace Vert 25% de l’unité foncière - surface de plancher maximale 60% de l’unité foncière D'autres terrains sont disponibles sur ce site! Nous consulter. Prix de vente net vendeur à partir de 150 000 EUR HT Honoraires d'agence 4% HT du prix net vendeur sus à la charge de l'acquéreur Honoraires d'agence 2% HT du prix net vendeur sus à la charge du vendeur Disponible Immédiatement !!! A visiter Absolument ! REF T-19197 Pour visiter contacter Cédric GONZALEZ au [Coordonnées masquées] ou [Coordonnées masquées] VUDENHAUT IMMO - Agences TOULOUSE SUD & SUD-EST www.vdh-immo.com
Voir plus

Référence: T-19197
Terrain à DREMIL-LAFAGE
Terrain à DREMIL-LAFAGE
Terrain à DREMIL-LAFAGE
Terrain à DREMIL-LAFAGE
Terrain à DREMIL-LAFAGE
Terrain à DREMIL-LAFAGE
Terrain à DREMIL-LAFAGE
Terrain à DREMIL-LAFAGE
Terrain à DREMIL-LAFAGE
Terrain à DREMIL-LAFAGE
Terrain à DREMIL-LAFAGE
Terrain à DREMIL-LAFAGE
Terrain à DREMIL-LAFAGE
Terrain à DREMIL-LAFAGE
Terrain à DREMIL-LAFAGE
Terrain à DREMIL-LAFAGE
Géorisques

Les informations sur les risques auxquels ce bien est exposé sont disponibles sur le site Géorisques : www.georisques.gouv.fr

Ce site est protégé par hCaptcha Politique de confidentialité et Conditions d’utilisation s’appliquent.